埼玉県川越市大字藤間(上福岡駅)の一戸建て:物件詳細
交通 所在地 |
駅徒歩 |
価格 |
間取り 建物面積 |
土地面積 私道負担面積 |
物件種目 築年月 |
|
東武東上線/上福岡
埼玉県川越市大字藤間
|
12分
|
4,190万円
|
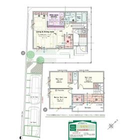
3LDK
96.68m²
|
123.90m²
なし
|
新築一戸建て
2026年3月
|
|
駐車場2台分、天井高2.5M以上、バス1坪以上、整形地
|
|
間取図
1号棟 間取り
|
その他
【街並み完成予想図】※図面を基に描き起こしたもので実際とは多少異なります
|
その他の画像
|
| 交通 | 東武東上線 上福岡駅 徒歩12分 |
| 所在地 |
埼玉県川越市大字藤間
|
| 物件種目 |
新築一戸建て |
| 価格 |
4,190万円 |
借地期間・地代(月額) |
- |
| 権利金 |
- |
敷金または保証金 |
- / - |
| 維持費等 |
- |
その他一時金 |
- |
| 間取り |
3LDK |
建物面積 |
96.68m² |
| 土地権利 |
所有権 |
建物構造 |
木造 |
| 土地面積 |
123.90m²(公簿) |
私道負担面積 |
なし |
| 築年月 |
2026年3月
|
都市計画 |
市街化区域 |
| 建物名 |
フレーベスト上福岡 コモレナ |
建築確認番号 |
第SJK-KX255622090号 |
| 用途地域 |
1種中高、1種低層 |
駐車場 |
有 無料 |
| 建ぺい率 |
60% |
容積率 |
200% |
| 階建 |
2階建 |
接道状況 |
南東 5.4m 公道
|
| 地目 |
宅地 |
地勢 |
- |
| 国土法届出 |
- |
セットバック |
- |
| アピールポイント |
◆あたたかな場所がある新しい住まいのカタチ
・2階バルコニーとホールをシームレスにつないだバルコニー空間『コモレナ』
・効率的なランドリー動線
・服や物、趣味が多くても安心の大容量収納
・外時間を快適にするバルコニーアイテムが充実
◆潤いあふれる川越街道周辺に広がる暮らしやすい生活舞台 |
| リフォーム履歴 |
- |
| リノベーション履歴 |
- |
| 瑕疵保証 |
- |
| 瑕疵保険 |
- |
| 評価・証明書 |
- |
| 備考 |
主要採光面:南東向き
総戸数:6戸
施工会社:ポラテック
■物件名/フレーベスト上福岡■道路/5.45m公道(アスファルト舗装)■総戸数/6戸■販売戸数/4戸■販売価格帯/4190万円~4690万円(税込)■土地面積/100.04㎡~127.84㎡■建物面積/95.22㎡~100.05㎡■設備/公営水道、東京電力・他、都市ガス、本下水、カースペース、外構、植栽その他付帯設備一式■構造/木造2階建(在来工法)■売主名/(株)中央住宅
|
| エネルギー消費性能 |
★★★(削減率20%達成) |
| 断熱性能 |
5段階/7段階中 |
| 目安光熱費 |
約18.9万円/年 |
| バス・トイレ |
浴室乾燥機、シャワー付洗面化粧台、温水洗浄便座、トイレ2ヶ所、浴室に窓あり |
| キッチン |
カウンターキッチン、システムキッチン、食器洗浄乾燥機、浄水器 |
| 設備・サービス |
全居室収納、ウォークインクローゼット、床暖房、床下収納、モニター付インターホン、省エネ給湯器、上水道、下水道、都市ガス |
| その他 |
- |
| 現況 |
建築中 |
引渡可能時期 |
2026年4月上旬予定 |
| 物件番号 |
1188135710 |
|
|
| 情報公開日 |
2025年10月12日 |
次回更新予定日 |
2025年11月2日 |
| ケータイ用バーコード |
- スマートフォンでこの物件を見る
- スマートフォンからもこの物件をご覧になれます。
|
※「-」と表示されている項目については、情報提供会社にご確認ください。
| 周辺施設 |
川越市立高階西小学校 |
| 距離 |
1040m |
写真を見る |
| 周辺施設 |
川越市立高階西中学校 |
| 距離 |
1350m |
写真を見る |
| 周辺施設 |
ヤオコー川越藤間店 |
| 距離 |
1090m |
写真を見る |
| 周辺施設 |
スーパービバホーム埼玉大井店 |
| 距離 |
1140m |
写真を見る |
| 周辺施設 |
ココネ上福岡 |
| 距離 |
830m |
写真を見る |
ここから簡単にお問い合わせをすることができます。
(SSLでの暗号化での送信を希望されるお客さまは
こちら
よりお問い合わせください)
お問い合わせを行う前に
「個人情報の取り扱いについて」を必ずお読みください。
「個人情報の取り扱いについて」に同意いただいた場合は「上記にご同意の上 確認画面へ進む」のボタンをクリックしてください。
個人情報の取り扱いについて
皆さまが送付された個人情報はアットホーム(株)のサーバを経由し、お問い合わせ先の不動産会社にメールまたはFAXにて転送されるためアットホーム(株)にも保管されます。アットホーム(株)で保管された個人情報の取り扱いについては、【こちら】をご覧ください。
また、本画面でご記入いただいた個人情報は、お問い合わせ先の不動産会社でも保管します。 お問い合わせ先の不動産会社が保管する個人情報の取り扱いについては、不動産会社に直接お問い合わせください。
国土交通大臣免許(13)第2401号 |
|---|
- 交通:
- 東武東上線/朝霞台駅 徒歩1分
- 埼玉県朝霞市東弁財1丁目5-8 K・ステージ4F
- TEL:
- 048-235-8711
- FAX:
- 048-235-8712
- 所属団体:
- (公社)埼玉県宅地建物取引業協会会員(公社)首都圏不動産公正取引協議会加盟
取引態様:売主  - 00984575
|
- スマートフォンで
この不動産会社を見る

|
- 提携サイト等より掲載されている物件情報につきましては、不動産会社詳細情報にリンクされていないものがあります。
- 物件に関するお問合せは、物件詳細ページの「情報提供会社」に表示されている不動産会社へ直接お願いいたします。
- 間取図は、現況を優先させていただきます。
- 映像は物件の一部を撮影したものです。物件の契約にあたっての最終判断はご自身の判断に基づいて行ってください。
- 仲介手数料について

アットホームは物件情報の適正化に努めております。
内容に誤りがある場合にはこちらへご連絡ください。