埼玉県草加市青柳6丁目(新田駅)の一戸建て:物件詳細
交通 所在地 |
駅徒歩 |
価格 |
間取り 建物面積 |
土地面積 私道負担面積 |
物件種目 築年月 |
|
東武伊勢崎線/新田 【バス】23分 川柳中学校入口 停歩5分
埼玉県草加市青柳6丁目
|
-
|
2,699万円
|
4LDK
91.49m²
|
100.54m²
なし
|
中古一戸建て
1996年8月(築29年4ヶ月)
|
|
2面採光
|
|
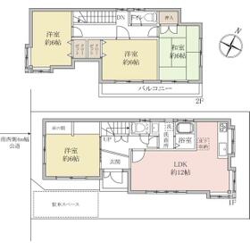
間取図
土地面積100.54平米、4LDK
|
外観
リフォーム渡し!1月頃完工予定!室内キレイにお使いです!居室豊富な4LDK!
|
その他の画像
|
| 交通 | 東武伊勢崎線 新田駅 【バス】 23分 川柳中学校入口 停歩5分 |
|---|
| その他の交通 | 東武伊勢崎線 獨協大学前駅 【バス】 26分 川柳中学校入口 停歩5分 |
| 所在地 |
埼玉県草加市青柳6丁目
|
| 物件種目 |
中古一戸建て |
| 価格 |
2,699万円 |
借地期間・地代(月額) |
- |
| 権利金 |
- |
敷金または保証金 |
- / - |
| 維持費等 |
- |
その他一時金 |
- |
| 間取り |
4LDK |
建物面積 |
91.49m² |
| 土地権利 |
所有権 |
建物構造 |
木造 |
| 土地面積 |
100.54m²(公簿) |
私道負担面積 |
なし |
| 築年月 |
1996年8月(築29年4ヶ月)
|
都市計画 |
市街化区域 |
| 建物名 |
草加市青柳六丁目 |
建築確認番号 |
- |
| 用途地域 |
1種中高 |
駐車場 |
有 無料 |
| 建ぺい率 |
60% |
容積率 |
160% |
| 階建 |
2階建 |
接道状況 |
南西 4.0m 公道 接面7.4m
|
| 地目 |
宅地 |
地勢 |
- |
| 国土法届出 |
- |
セットバック |
- |
| アピールポイント |
◆全居室6帖以上!
◆青柳小学校徒歩10分(800m)・川柳中学校徒歩4分(270m)
リフォーム渡し物件!室内キレイです!空室につきスムーズにご案内できます!
資料請求・内見予約は、担当:池谷(いけや)までお気軽にご連絡ください!
【リフォーム内容】2026年1月完了予定
[交換] キッチン、お風呂、トイレ、洗面台、給湯器
[外装] 外壁塗装、屋根塗装
[その他] クロス貼替、フロアタイル貼り、畳表替、クッションフロア貼替、ふすま貼替、室内クリーニング、白蟻点検 |
| リフォーム履歴 |
- |
| リノベーション履歴 |
- |
| 瑕疵保証 |
- |
| 瑕疵保険 |
- |
| 評価・証明書 |
- |
| 備考 |
主要採光面:南東向き
法令等制限:建築基準法第22条区域
※雑種地2.99㎡持分9分の1(ゴミ置場)物件の周辺地図を表示しています。建物の位置正確でない場合がございます。
|
| エネルギー消費性能 |
- |
| 断熱性能 |
- |
| 目安光熱費 |
- |
| バス・トイレ |
追焚機能、シャワー付洗面化粧台、温水洗浄便座、トイレ2ヶ所、浴室に窓あり |
| キッチン |
システムキッチン、3口以上コンロ |
| 設備・サービス |
クローゼット、床下収納、モニター付インターホン、浄化槽、出窓、上水道、プロパンガス、火災警報器(報知機) |
| その他 |
- |
| 現況 |
空家 |
引渡可能時期 |
相談 |
| 物件番号 |
1188158810 |
|
|
| 情報公開日 |
2025年11月3日 |
次回更新予定日 |
2025年11月17日 |
| ケータイ用バーコード |
- スマートフォンでこの物件を見る
- スマートフォンからもこの物件をご覧になれます。
|
※「-」と表示されている項目については、情報提供会社にご確認ください。
| 周辺施設 |
エコスTAIRAYA草加店 |
| 距離 |
750m |
写真を見る |
ここから簡単にお問い合わせをすることができます。
(SSLでの暗号化での送信を希望されるお客さまは
こちら
よりお問い合わせください)
お問い合わせを行う前に
「個人情報の取り扱いについて」を必ずお読みください。
「個人情報の取り扱いについて」に同意いただいた場合は「上記にご同意の上 確認画面へ進む」のボタンをクリックしてください。
個人情報の取り扱いについて
皆さまが送付された個人情報はアットホーム(株)のサーバを経由し、お問い合わせ先の不動産会社にメールまたはFAXにて転送されるためアットホーム(株)にも保管されます。アットホーム(株)で保管された個人情報の取り扱いについては、【こちら】をご覧ください。
また、本画面でご記入いただいた個人情報は、お問い合わせ先の不動産会社でも保管します。 お問い合わせ先の不動産会社が保管する個人情報の取り扱いについては、不動産会社に直接お問い合わせください。
国土交通大臣免許(13)第2401号 |
|---|
- 交通:
- 東武伊勢崎線/草加駅 徒歩8分
- 埼玉県草加市中央2丁目12-10
- TEL:
- 048-924-5111
- FAX:
- 048-924-5127
- 所属団体:
- (公社)埼玉県宅地建物取引業協会会員不動産公正取引協議会加盟
取引態様:専任媒介  - 00781175
|
- スマートフォンで
この不動産会社を見る

|
- 提携サイト等より掲載されている物件情報につきましては、不動産会社詳細情報にリンクされていないものがあります。
- 物件に関するお問合せは、物件詳細ページの「情報提供会社」に表示されている不動産会社へ直接お願いいたします。
- 間取図は、現況を優先させていただきます。
- 映像は物件の一部を撮影したものです。物件の契約にあたっての最終判断はご自身の判断に基づいて行ってください。
- 仲介手数料について

アットホームは物件情報の適正化に努めております。
内容に誤りがある場合にはこちらへご連絡ください。