不動産 賃貸 マンション等の住宅情報:埼玉住まい情報


埼玉県加須市馬内(加須駅)の一戸建て:物件詳細

  • 物件詳細
  • 情報の見方
  • 印刷用画面
交通
所在地
駅徒歩 価格 間取り
建物面積
土地面積
私道負担面積
物件種目
築年月

東武伊勢崎線/加須

埼玉県加須市馬内

25分

2,480万円

4LDK

95.58m²

324.50m²

なし

新築一戸建て

2026年5月
新築 

おすすめPOINT駐車場3台分以上、バス1坪以上

おすすめコメント  スタッフ: 川田悠暉 

・ワンフロアで生活が完結する、幅広い世代に優しいお住まいです♪ ・パントリーやWICなど収納スペース豊富でお部屋がすっきり♪ ・小学校徒歩5分圏内なので通学も安心です♪

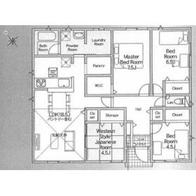
間取図

間取図

地形図等

地形図等

その他の画像
  • 幼稚園、保育園
  • 幼稚園、保育園
  • 小学校
  • 中学校
  • 飲食店
  • 飲食店
  • 飲食店
  • 飲食店
    • とりあえず保存
    • お問い合わせ
    交通

    東武伊勢崎線 加須駅 徒歩25分

    その他の交通

    東武伊勢崎線 南羽生駅 徒歩46分
    [バス利用可] バス 10分 川面(羽生市) 停歩19分

    東武伊勢崎線 花崎駅 徒歩78分
    [バス利用可] バス 22分 礼羽コミュニティセンター前 停歩5分

    所在地 埼玉県加須市馬内
    物件種目 新築一戸建て
    価格 2,480万円 借地期間・地代(月額)
    権利金 敷金または保証金 - / -
    維持費等 その他一時金 なし
    間取り 4LDK(LDK18.5、洋7.5、6.5、4.5、和4.5) 建物面積 95.58m²
    土地権利 所有権 建物構造 木造
    土地面積 324.50m²(公簿) 私道負担面積 なし
    築年月 2026年5月 新築  都市計画 調整区域
    建物名 CRADLE GARDEN 加須市馬内第3 新築戸建 全4棟 1号棟 建築確認番号 25UDI1W建10870
    用途地域 無指定 駐車場 有 無料
    建ぺい率 60% 容積率 200%
    階建 平屋建 接道状況 南西 3.4m 公道 接面20.1m
    地目 宅地 地勢
    国土法届出 セットバック
    アピールポイント DAIKICHI不動産では5年以上キャリアのある宅地建物取引士の資格を有したスタッフがお客様の担当をさせていただきます。経験の浅いスタッフはマネージャーが二人三脚でお客様をサポート致します。各スタッフは年間に40件前後の引き渡しを経験しておりますので、安心、安全のお取引ができる事をお約束いたします。 住宅ローンや火災保険、ライフライン(電気、ガス、水道等)や税金の控除手続きまで、不動産購入に関わる全ての手続きを私共がサポートいたします。 お客様のご不明点は丁寧にご説明いたしますのでご安心ください。 その他物件以外にかかる諸経費について、「どこに、なんで、いくら」全てご説明いたします。 いつでもお気軽にお問い合わせください。
    リフォーム履歴
    リノベーション履歴
    瑕疵保証
    瑕疵保険
    評価・証明書
    備考
    主要採光面:南西向き
    工事完了予定日:2026年5月
    物件情報の多さが弊社の強みです。 お客様のご希望条件をお伺いし、夢を叶えられるように全力で物件探しを行います。 より細かくご希望条件をお聞かせください。 DAIKICHI不動産がお力になります。
    【弊社では以下の5つをお客様にお約束いたします】 1.物件の善し悪しは全て正直にお話しします。 2.無理な売り込みや契約の催促、突然の訪問等、しつこい営業はいたしません。 3.契約したら終わりではなくお引き渡し後、お引越し後もお客様のパートナーであること。 4.ウソやおとり広告は一切使いません。(データ更新は迅速に行います。) 5.お客様の個人情報は細心の注意を払って取り扱います。
    エネルギー消費性能
    断熱性能
    目安光熱費
    バス・トイレ
    キッチン カウンターキッチン、システムキッチン
    設備・サービス 全居室収納、ウォークインクローゼット、床下収納、モニター付インターホン、浄化槽、上水道、プロパンガス、電気、複層ガラス
    その他
    現況 建築中 引渡可能時期 相談
    物件番号 1189241819    
    情報公開日 2026年1月20日 次回更新予定日 2026年2月17日
    ケータイ用バーコード

    QRコード

    スマートフォンでこの物件を見る
    スマートフォンからもこの物件をご覧になれます。
    ※「-」と表示されている項目については、情報提供会社にご確認ください。

    この物件の周辺情報

    周辺施設 加須市立礼羽幼稚園
    距離 267m
    周辺施設 愛泉幼児園
    距離 838m
    周辺施設 加須市立礼羽小学校
    距離 426m
    周辺施設 加須市立加須西中学校
    距離 1159m
    周辺施設 松寿司
    距離 1869m
    周辺施設 粂蔵 本店レストラン
    距離 327m
    周辺施設 コメダ珈琲店 加須愛宕店
    距離 557m
    周辺施設 すき家125号加須諏訪店
    距離 1742m

    クイックお問い合わせ

    ここから簡単にお問い合わせをすることができます。
    (SSLでの暗号化での送信を希望されるお客さまは こちら よりお問い合わせください)

    お問い合わせ内容(必須)
    お名前(必須) 姓  名 
    メールアドレス(必須)
    ※携帯電話のメールアドレスをご入力される方はこちらをご確認ください
    電話番号(必須)
    - -

    ※入力いただいた電話番号へSMSまたは音声でパスワードをご連絡します。

    携帯電話の番号をご入力の方へ

    携帯電話の番号をご入力の方へ
    確認画面にて送信ボタンをクリックするとSMSが携帯電話に届きます。
    そのSMSに記載のパスワード(認証番号)を入力し、お問い合わせを完了してください。
    尚、SMSの送信者番号は 0005 202 760 となります。
    これはアットホームの固定番号です。

    備考欄 希望条件、物件案内希望日、質問などがございましたらご記入ください。
    お問い合わせを行う前に「個人情報の取り扱いについて」を必ずお読みください。
    「個人情報の取り扱いについて」に同意いただいた場合は「上記にご同意の上 確認画面へ進む」のボタンをクリックしてください。

    個人情報の取り扱いについて

    皆さまが送付された個人情報はアットホーム(株)のサーバを経由し、お問い合わせ先の不動産会社にメールまたはFAXにて転送されるためアットホーム(株)にも保管されます。アットホーム(株)で保管された個人情報の取り扱いについては、【こちら】をご覧ください。
    また、本画面でご記入いただいた個人情報は、お問い合わせ先の不動産会社でも保管します。 お問い合わせ先の不動産会社が保管する個人情報の取り扱いについては、不動産会社に直接お問い合わせください。

    情報提供会社

    情報提供会社

    (株)DAIKICHI不動産 鴻巣店

    埼玉県知事免許(1)第24864号

    交通:
    JR高崎線/鴻巣駅 徒歩16分
    埼玉県鴻巣市天神2丁目2-36 ローヤルシティ鴻巣店舗101号室
    TEL:
    048-578-8097
    FAX:
    048-578-8098
    所属団体:
    (公社)埼玉県宅地建物取引業協会会員
    (公社)首都圏不動産公正取引協議会加盟

    取引態様:媒介

    • 会社情報
    • 00276334
    スマートフォンで
    この不動産会社を見る
    QRコード
    • とりあえず保存
    • お問い合わせ
    • 提携サイト等より掲載されている物件情報につきましては、不動産会社詳細情報にリンクされていないものがあります。
    • 物件に関するお問合せは、物件詳細ページの「情報提供会社」に表示されている不動産会社へ直接お願いいたします。
    • 間取図は、現況を優先させていただきます。
    • 映像は物件の一部を撮影したものです。物件の契約にあたっての最終判断はご自身の判断に基づいて行ってください。
    • 仲介手数料について仲介手数料

    アットホームは物件情報の適正化に努めております。 内容に誤りがある場合にはこちらへご連絡ください。

    【埼玉住まい情報】では、日本全国の物件から賃貸マンションや賃貸アパート・賃貸一戸建て等の賃貸住宅情報、新築マンション・分譲マンションや中古マンション等の売買マンション情報、新築一戸建てや中古一戸建てなどの戸建住宅、 土地など、総合的な不動産住宅情報検索サービスを提供致します。
    【埼玉住まい情報】から、選りすぐりの不動産物件を探してみましょう。

    【免責事項】
    このコーナーの運営はアットホーム株式会社(https://www.athome.co.jp/)が行っています。
    このコーナーに掲載している物件情報は、「アットホーム不動産情報ネットワーク」に加盟する不動産会社等(情報提供元)から提供されています。信頼性の高い情報提供が行えるよう、最大限の努力をしておりますが、その内容を保証するものではありません。 利用者のみなさまと各情報提供元との取引に起因する損害および情報が掲載されたことに起因する損害等については、株式会社イーシティ埼玉、およびアットホームは一切責任を負いません。
    各物件情報の内容や画像等はすべて現況を優先させていただきます。
    お取引等(お取引の準備、資金調達等を含みます)の際には、内容や契約条件等について、各情報提供元より十分な説明を受け、ご自身でご確認の上、判断してください。
    このコーナーへの物件情報のご掲載、その他不動産業務ソリューション等についての不動産会社様のお問合せはこちらからお願いいたします。

    物件画像: