埼玉県鴻巣市筑波2丁目(吹上駅)の一戸建て:物件詳細
交通 所在地 |
駅徒歩 |
価格 |
間取り 建物面積 |
土地面積 私道負担面積 |
物件種目 築年月 |
|
JR高崎線/吹上
埼玉県鴻巣市筑波2丁目
|
16分
|
2,580万円
|
4LDK
94.76m²
|
155.51m²
なし
|
新築一戸建て
2026年1月
|
|
駐車場2台分、外壁サイディング、バス1坪以上、全室2面採光、2面採光、24時間換気システム、閑静な住宅街、設計住宅性能評価書あり、建設住宅性能評価書あり
|
|
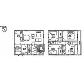
間取図
鴻巣市筑波 第5 新築一戸建て クレイドルガーデン 04、4LDK、土地面積155.51m2、建物面積94.76m2
|
外観
26.1.23撮影済み
|
<
その他の画像
>
|
| 交通 | JR高崎線 吹上駅 徒歩16分 |
|---|
| その他の交通 | JR高崎線 北鴻巣駅 徒歩35分 JR高崎線 行田駅 徒歩44分 |
| 所在地 |
埼玉県鴻巣市筑波2丁目
|
| 物件種目 |
新築一戸建て |
| 価格 |
2,580万円 |
借地期間・地代(月額) |
- |
| 権利金 |
- |
敷金または保証金 |
- / - |
| 維持費等 |
- |
その他一時金 |
なし |
| 間取り |
4LDK(LDK17、洋6.7、5.7、5、4.5) |
建物面積 |
94.76m² |
| 土地権利 |
所有権 |
建物構造 |
木造 |
| 土地面積 |
155.51m²(公簿) |
私道負担面積 |
なし |
| 築年月 |
2026年1月
|
都市計画 |
市街化区域 |
| 建物名 |
鴻巣市筑波 第5 新築一戸建て クレイドルガーデン 04 |
建築確認番号 |
25UDI1W建06119 |
| 用途地域 |
1種住居 |
駐車場 |
有 無料 |
| 建ぺい率 |
60% |
容積率 |
200% |
| 階建 |
2階建 |
接道状況 |
北 6.5m 公道
・ 東 4.8m 公道
・ 二方道路
|
| 地目 |
宅地 |
地勢 |
- |
| 国土法届出 |
- |
セットバック |
- |
| アピールポイント |
\【Komorebi house】ご成約選べる家電プレゼントキャンペーン♪/
※詳細はスタッフまで!
~お問合せからご来店いただいた方にAmazonギフトカード3,000円分プレゼント♪ ~
☆ご予約について☆
\他社様掲載物件も全てまとめてご内覧ご予約可能です/
●当日のご内覧も大歓迎です!
●資料だけほしい方も、お気軽にお問合せくださいませ!
☆資金計画・住宅ローンのご相談について☆
\無料ローンシミュレーションや最良な金融機関のご紹介/
\事前審査から本申し込みまでお任せください/
●いくら借りられるのか? 月々はいくらになるのか?
●頭金なしで購入できるかも明確にご説明いたします!
☆Komorebi houseについて☆
\業界のイメージを変えたくて立ち上げました/
\有資格者・大手ハウスメーカー経験者・経験豊富なスタッフ在籍/
●初めてで何から始めればいいか分からないお客様も一から丁寧にサポート♪
●不動産会社は何となく入りづらい、相談しづらいがないアットホームな空間♪
癒しと温かみのある住まい探しを、全力でサポートさせていただきます! |
| リフォーム履歴 |
- |
| リノベーション履歴 |
- |
| 瑕疵保証 |
- |
| 瑕疵保険 |
- |
| 評価・証明書 |
- |
| 備考 |
主要採光面:南西向き
鴻巣市筑波 新築一戸建て 4LDK 南西向き システムキッチン 3口コンロ 浄水器 浴室乾燥機 24時間換気 温水洗浄便座 防犯カメラ 全居室収納 JR高崎線 吹上駅 下忍小学校 吹上中学校
【地域密着エリア特化の不動産】 弊社は、埼玉県の新築戸建て、中古戸建て、マンション、土地などの取り扱いに特化しております! 【Komorebi houseの強み】 ☆新築・中古戸建て購入の方☆ ●毎年、提携業者(第三者機関)にて定期点検が永年無料! ●建物状況調査(インスペクション)と同等検査が無料で行えます! ●第三者の視点で既存住宅に劣化や不具合が生じていないか検査を行います! ☆レスポンス☆ ●内覧の即日対応!スタッフが駆け付けます! ●諸費用のご相談!ローン計画書もすぐお送りいたします! ●その他ご不明点ご質問に即日回答させていただきます! ☆住宅ローン☆ ●提携銀行多数、たくさんの銀行さんをご紹介できます! ●他社で否決・減額になってしまった方も承認実績あり! ●シングルマザーの方、審査に不安のある方なども柔軟にご対応させていただきます!
|
| エネルギー消費性能 |
- |
| 断熱性能 |
- |
| 目安光熱費 |
- |
| バス・トイレ |
浴室乾燥機、オートバス、追焚機能、温水洗浄便座、トイレ2ヶ所 |
| キッチン |
カウンターキッチン、システムキッチン、浄水器、3口以上コンロ |
| 設備・サービス |
全居室収納、クローゼット、床下収納、モニター付インターホン、ディンプルキー、ダブルロックドア、防犯カメラ、全居室フローリング、上水道、下水道、プロパンガス、電気、ワイドバルコニー、人感センサー付照明、ダウンライト、複層ガラス |
| その他 |
- |
| 現況 |
完成済 |
引渡可能時期 |
即時 |
| 物件番号 |
1189397719 |
|
|
| 情報公開日 |
2026年1月24日 |
次回更新予定日 |
2026年3月25日 |
| ケータイ用バーコード |
- スマートフォンでこの物件を見る
- スマートフォンからもこの物件をご覧になれます。
|
※「-」と表示されている項目については、情報提供会社にご確認ください。
| 周辺施設 |
吹上中央幼稚園 |
| 距離 |
1139m |
写真を見る |
| 周辺施設 |
中央たんぽぽ保育園 |
| 距離 |
1138m |
写真を見る |
| 周辺施設 |
鴻巣市立下忍小学校 |
| 距離 |
634m |
写真を見る |
| 周辺施設 |
鴻巣市立吹上中学校 |
| 距離 |
630m |
写真を見る |
| 周辺施設 |
下忍第1公園 |
| 距離 |
396m |
写真を見る |
| 周辺施設 |
JAさいたま吹上支店 |
| 距離 |
620m |
写真を見る |
ここから簡単にお問い合わせをすることができます。
(SSLでの暗号化での送信を希望されるお客さまは
こちら
よりお問い合わせください)
お問い合わせを行う前に
「個人情報の取り扱いについて」を必ずお読みください。
「個人情報の取り扱いについて」に同意いただいた場合は「上記にご同意の上 確認画面へ進む」のボタンをクリックしてください。
個人情報の取り扱いについて
皆さまが送付された個人情報はアットホーム(株)のサーバを経由し、お問い合わせ先の不動産会社にメールまたはFAXにて転送されるためアットホーム(株)にも保管されます。アットホーム(株)で保管された個人情報の取り扱いについては、【こちら】をご覧ください。
また、本画面でご記入いただいた個人情報は、お問い合わせ先の不動産会社でも保管します。 お問い合わせ先の不動産会社が保管する個人情報の取り扱いについては、不動産会社に直接お問い合わせください。
埼玉県知事免許(1)第25102号 |
|---|
- 交通:
- JR高崎線/桶川駅
- 埼玉県上尾市泉台2丁目6-9 泉台ハイツ1B
- TEL:
- 048-788-5340
- 所属団体:
- (公社)埼玉県宅地建物取引業協会会員(公社)首都圏不動産公正取引協議会加盟
取引態様:媒介  - 00275218
|
- スマートフォンで
この不動産会社を見る

|
- 提携サイト等より掲載されている物件情報につきましては、不動産会社詳細情報にリンクされていないものがあります。
- 物件に関するお問合せは、物件詳細ページの「情報提供会社」に表示されている不動産会社へ直接お願いいたします。
- 間取図は、現況を優先させていただきます。
- 映像は物件の一部を撮影したものです。物件の契約にあたっての最終判断はご自身の判断に基づいて行ってください。
- 仲介手数料について

アットホームは物件情報の適正化に努めております。
内容に誤りがある場合にはこちらへご連絡ください。