東京都立川市上砂町3丁目(武蔵砂川駅)の一戸建て:物件詳細
交通 所在地 |
駅徒歩 |
価格 |
間取り 建物面積 |
土地面積 私道負担面積 |
物件種目 築年月 |
|
西武拝島線/武蔵砂川
東京都立川市上砂町3丁目
|
17分
|
4,280万円
|
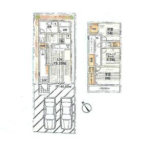
2SLDK
81.00m²
|
102.44m²
-
|
新築一戸建て
2026年3月
|
|
駐車場2台分、外壁サイディング、2面採光、24時間換気システム、設計住宅性能評価書あり
|
|
間取図
間取
|
外観
■暮らしを豊かにする充実した仕様設備で快適に
|
その他の画像
|
| 交通 | 西武拝島線 武蔵砂川駅 徒歩17分 |
|---|
| その他の交通 | JR中央線 立川駅 【バス】 15分 大山団地西 停歩7分 JR青梅線 中神駅 徒歩23分 |
| 所在地 |
東京都立川市上砂町3丁目
|
| 物件種目 |
新築一戸建て |
| 価格 |
4,280万円 |
借地期間・地代(月額) |
- |
| 権利金 |
- |
敷金または保証金 |
- / - |
| 維持費等 |
- |
その他一時金 |
- |
| 間取り |
2SLDK |
建物面積 |
81.00m² |
| 土地権利 |
所有権 |
建物構造 |
木造 |
| 土地面積 |
102.44m² |
私道負担面積 |
- |
| 築年月 |
2026年3月
|
都市計画 |
市街化区域 |
| 建物名 |
立川市上砂町3丁目第2期 新築戸建 全2棟 |
建築確認番号 |
第25UDI1W建03461号 |
| 用途地域 |
1種低層 |
駐車場 |
有 |
| 建ぺい率 |
40% |
容積率 |
80% |
| 階建 |
2階建 |
接道状況 |
南 3.8m 公道
|
| 地目 |
宅地 |
地勢 |
- |
| 国土法届出 |
- |
セットバック |
- |
| アピールポイント |
◆納戸や全居室等、収納スーペース豊富なおうち!整理整頓されたお部屋でゆったり過ごせます♪
◆駐車スペース2台可能なゆとりのある敷地です!☆テレビで紹介された【やどかリッチ】使えます!
豊かに過ごすには【インテリア】家具や家電と【エクステリア】カーポートや庭、この充実度で変わってきます。
これらを一括購入でき、代金を住宅ローンに組み込めるサービス、それがやどかリッチです。
ご来店頂きましたら、ご希望条件に合う物件を全部お出しいたします♪見たい物件を自由に選んでいただいてからご見学に出発いたしますので、ご希望のお住まいがすぐに見つかりますよ♪ |
| リフォーム履歴 |
- |
| リノベーション履歴 |
- |
| 瑕疵保証 |
- |
| 瑕疵保険 |
- |
| 評価・証明書 |
- |
| 備考 |
総戸数:2戸
|
| エネルギー消費性能 |
- |
| 断熱性能 |
- |
| 目安光熱費 |
- |
| バス・トイレ |
浴室乾燥機、シャワー付洗面化粧台、温水洗浄便座、トイレ2ヶ所 |
| キッチン |
システムキッチン、浄水器 |
| 設備・サービス |
全居室収納、ウォークインクローゼット、クローゼット、床下収納、モニター付インターホン、全居室フローリング、上水道、下水道、都市ガス、人感センサー付照明 |
| その他 |
- |
| 現況 |
建築中 |
引渡可能時期 |
2026年3月下旬予定 |
| 物件番号 |
1189400415 |
|
|
| 情報公開日 |
2025年9月25日 |
次回更新予定日 |
2025年11月9日 |
| ケータイ用バーコード |
- スマートフォンでこの物件を見る
- スマートフォンからもこの物件をご覧になれます。
|
※「-」と表示されている項目については、情報提供会社にご確認ください。
| 周辺施設 |
武蔵砂川駅 |
| 距離 |
1360m |
写真を見る |
| 周辺施設 |
立川市立大山小学校 |
| 距離 |
600m |
写真を見る |
| 周辺施設 |
立川市立第五中学校 |
| 距離 |
350m |
写真を見る |
| 周辺施設 |
ザ・ビッグ昭島店 |
| 距離 |
1600m |
写真を見る |
ここから簡単にお問い合わせをすることができます。
(SSLでの暗号化での送信を希望されるお客さまは
こちら
よりお問い合わせください)
お問い合わせを行う前に
「個人情報の取り扱いについて」を必ずお読みください。
「個人情報の取り扱いについて」に同意いただいた場合は「上記にご同意の上 確認画面へ進む」のボタンをクリックしてください。
個人情報の取り扱いについて
皆さまが送付された個人情報はアットホーム(株)のサーバを経由し、お問い合わせ先の不動産会社にメールまたはFAXにて転送されるためアットホーム(株)にも保管されます。アットホーム(株)で保管された個人情報の取り扱いについては、【こちら】をご覧ください。
また、本画面でご記入いただいた個人情報は、お問い合わせ先の不動産会社でも保管します。 お問い合わせ先の不動産会社が保管する個人情報の取り扱いについては、不動産会社に直接お問い合わせください。
東京都知事免許(1)第109973号 |
|---|
- 交通:
- JR中央線/国分寺駅 徒歩8分
- 東京都国分寺市南町2丁目14-3 ユニエトワール国分寺1階
- TEL:
- 042-312-4722
- FAX:
- 042-312-4733
- 所属団体:
- (公社)全日本不動産協会会員(公社)首都圏不動産公正取引協議会加盟
取引態様:媒介  - 00989010
|
- スマートフォンで
この不動産会社を見る

|
- 提携サイト等より掲載されている物件情報につきましては、不動産会社詳細情報にリンクされていないものがあります。
- 物件に関するお問合せは、物件詳細ページの「情報提供会社」に表示されている不動産会社へ直接お願いいたします。
- 間取図は、現況を優先させていただきます。
- 映像は物件の一部を撮影したものです。物件の契約にあたっての最終判断はご自身の判断に基づいて行ってください。
- 仲介手数料について

アットホームは物件情報の適正化に努めております。
内容に誤りがある場合にはこちらへご連絡ください。