静岡県焼津市下小田中町(焼津駅)の一戸建て:物件詳細
交通 所在地 |
駅徒歩 |
価格 |
間取り 建物面積 |
土地面積 私道負担面積 |
物件種目 築年月 |
|
東海道本線/焼津 [バス利用可] バス 14分 光西寺前 停歩3分
静岡県焼津市下小田中町
|
52分
|
2,580万円
|
3LDK
99.16m²
|
201.27m²
なし
|
新築一戸建て
2026年5月
|
|
駐車場2台分、南向き、外壁サイディング、バス1坪以上、2面採光、24時間換気システム、バリアフリー、設計住宅性能評価書あり、建設住宅性能評価書あり、長期優良住宅(耐震、省エネ性等高い)
|
|
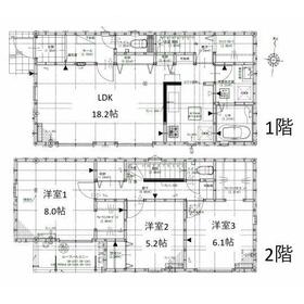
間取図
使い勝手の良い3LDK♪生活に合わせて使うお部屋を選べます♪
|
外観
飽きの来ないシンプルな外観は、長く住むためのポイントのひとつです♪
|
<
その他の画像
>
|
|
|
| 交通 | 東海道本線 焼津駅 徒歩52分 [バス利用可] バス 14分 光西寺前 停歩3分 |
|---|
| その他の交通 | 東海道本線 西焼津駅 徒歩64分 東海道本線 藤枝駅 徒歩93分 |
| 所在地 |
静岡県焼津市下小田中町
|
| 物件種目 |
新築一戸建て |
| 価格 |
2,580万円 |
借地期間・地代(月額) |
- |
| 権利金 |
- |
敷金または保証金 |
- / - |
| 維持費等 |
- |
その他一時金 |
なし |
| 間取り |
3LDK(LDK18.2、洋8、6.1、5.2) |
建物面積 |
99.16m² |
| 土地権利 |
所有権 |
建物構造 |
木造 |
| 土地面積 |
201.27m²(公簿) |
私道負担面積 |
なし |
| 築年月 |
2026年5月
|
都市計画 |
市街化区域 |
| 建物名 |
焼津市下小田中町第1期 新築戸建 5号棟 |
建築確認番号 |
KS125-0420-59242 |
| 用途地域 |
1種低層 |
駐車場 |
有 無料 |
| 建ぺい率 |
50% |
容積率 |
80% |
| 階建 |
2階建 |
接道状況 |
西 6.0m 公道 接面8.2m
|
| 地目 |
宅地 |
地勢 |
- |
| 国土法届出 |
- |
セットバック |
- |
| アピールポイント |
・*+.──おすすめポイント──.+*・
◆各居室に収納があるので部屋の中をすっきり見せることができます!
◆年間を通じて日当たりのよい南面向きのKDK!
◆生活動線がシンプルな平屋です♪
◆業務スーパー焼津店まで徒歩7分で買い物便利!
☆資料請求・お問い合わせは24時間受付可能☆
【お電話】でお問合せ頂きますとスムーズにご案内できます♪
☆本日ご案内可能です☆
弊社掲載物件はもちろんat homeに掲載されている物件
すべてご相談ください♪
スタッフがご案内プランを組み立てて【物件見学ツアー】を致します♪
☆物件をまとめてお問合せ、見学大歓迎☆
来店相談、現地見学、電話でのご相談、メールでのご相談
などお気軽にお問合せください♪
物件、価格、場所、ローン、ライフプランなど
お家探しの疑問はなんでもご相談ください♪
お住まいのこと【アトモ】にご相談ください☆ |
| リフォーム履歴 |
- |
| リノベーション履歴 |
- |
| 瑕疵保証 |
- |
| 瑕疵保険 |
- |
| 評価・証明書 |
■長期優良住宅認定通知書 長期優良住宅認定通知書あり |
| 備考 |
主要採光面:南向き
総戸数:10戸
住宅ローン審査に不安はありませんか?アトモの住宅ローンアドバイザーはお客様専用の資金計算書を作成!お客様のご希望+当社のご提案で、理想の住まいを探しましょう!住んだ≪アトモ≫何でもご相談ください♪
☆自宅で内見♪TV電話で内覧or現地で体感♪実際に物件を内覧☆ お好みに合わせてご内覧頂けます♪お家購入の疑問・質問、ローンの相談、ライフプランなども対面せずに相談♪お気軽にお問合せください! お家探しは【住む前も、住んだアトモ】まで♪
|
| エネルギー消費性能 |
- |
| 断熱性能 |
- |
| 目安光熱費 |
- |
| バス・トイレ |
浴室乾燥機、オートバス、追焚機能、温水洗浄便座、トイレ2ヶ所 |
| キッチン |
カウンターキッチン、オープンキッチン、システムキッチン、浄水器、3口以上コンロ |
| 設備・サービス |
全居室収納、ウォークインクローゼット、クローゼット、床下収納、モニター付インターホン、ディンプルキー、ダブルロックドア、シャッター雨戸、浄化槽、全居室フローリング、上水道、都市ガス、電気、ルーフバルコニー、人感センサー付照明、複層ガラス |
| その他 |
- |
| 現況 |
完成済 |
引渡可能時期 |
即時 |
| 物件番号 |
1189656719 |
|
|
| 情報公開日 |
2026年1月30日 |
次回更新予定日 |
2026年5月20日 |
| ケータイ用バーコード |
- スマートフォンでこの物件を見る
- スマートフォンからもこの物件をご覧になれます。
|
※「-」と表示されている項目については、情報提供会社にご確認ください。
| 周辺施設 |
焼津市立港小学校 |
| 距離 |
824m |
写真を見る |
| 周辺施設 |
焼津市立港中学校 |
| 距離 |
1080m |
写真を見る |
| 周辺施設 |
業務スーパー 焼津店 |
| 距離 |
490m |
写真を見る |
| 周辺施設 |
スーパー富士屋 田尻北店 |
| 距離 |
1022m |
写真を見る |
| 周辺施設 |
ファミリーマート 焼津下小田店 |
| 距離 |
404m |
写真を見る |
| 周辺施設 |
セブンイレブン 焼津石津中町店 |
| 距離 |
518m |
写真を見る |
| 周辺施設 |
クリエイトSD(エス・ディー) 焼津下小田店 |
| 距離 |
328m |
写真を見る |
| 周辺施設 |
V・drug 焼津石津店 |
| 距離 |
784m |
写真を見る |
ここから簡単にお問い合わせをすることができます。
(SSLでの暗号化での送信を希望されるお客さまは
こちら
よりお問い合わせください)
お問い合わせを行う前に
「個人情報の取り扱いについて」を必ずお読みください。
「個人情報の取り扱いについて」に同意いただいた場合は「上記にご同意の上 確認画面へ進む」のボタンをクリックしてください。
個人情報の取り扱いについて
皆さまが送付された個人情報はアットホーム(株)のサーバを経由し、お問い合わせ先の不動産会社にメールまたはFAXにて転送されるためアットホーム(株)にも保管されます。アットホーム(株)で保管された個人情報の取り扱いについては、【こちら】をご覧ください。
また、本画面でご記入いただいた個人情報は、お問い合わせ先の不動産会社でも保管します。 お問い合わせ先の不動産会社が保管する個人情報の取り扱いについては、不動産会社に直接お問い合わせください。
静岡県知事免許(2)第14381号 |
|---|
- 交通:
- 静岡鉄道静岡清水線/長沼駅 徒歩7分
- 静岡県静岡市葵区長沼3丁目2-3 長沼ビル1階
- TEL:
- 054-265-3254
- FAX:
- 054-265-3255
- 所属団体:
- (公社)静岡県宅地建物取引業協会会員東海不動産公正取引協議会加盟
取引態様:媒介  - 40408880
|
- スマートフォンで
この不動産会社を見る

|
- 提携サイト等より掲載されている物件情報につきましては、不動産会社詳細情報にリンクされていないものがあります。
- 物件に関するお問合せは、物件詳細ページの「情報提供会社」に表示されている不動産会社へ直接お願いいたします。
- 間取図は、現況を優先させていただきます。
- 映像は物件の一部を撮影したものです。物件の契約にあたっての最終判断はご自身の判断に基づいて行ってください。
- 仲介手数料について

アットホームは物件情報の適正化に努めております。
内容に誤りがある場合にはこちらへご連絡ください。