不動産 賃貸 マンション等の住宅情報:埼玉住まい情報


兵庫県神戸市西区伊川谷町有瀬(明石駅)の一戸建て:物件詳細

  • 物件詳細
  • 情報の見方
  • 印刷用画面
交通
所在地
駅徒歩 価格 間取り
建物面積
土地面積
私道負担面積
物件種目
築年月

JR山陽本線/明石
【バス】17分 生田(兵庫県) 停歩6分

兵庫県神戸市西区伊川谷町有瀬


3,180万円

2LDK

109.30m²

135.17m²

なし

中古一戸建て

2017年3月(築9年1ヶ月)

おすすめPOINT駐車場2台分、バス1坪以上、オール電化

おすすめコメント  スタッフ: 清水 圭太

こちらの物件は南向きです。この物件は広々としたシステムキッチンなので、普段の料理も楽しくなるでしょう。1坪以上ある浴室はゆったりくつろげるので、お風呂で長い時間を過ごす人に特におすすめです。

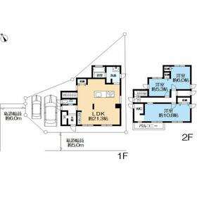
間取図

間取図

外観

外観

<
その他の画像
  • 周辺環境
  • 周辺環境
  • リビング
  • バス/シャワー
  • キッチン
  • キッチン
  • トイレ
  • 室内
  • 室内
  • 玄関
  • その他
  • トイレ
  • キッチン
  • 室内
  • その他
  • その他
  • 公園
  • 販売店
  • 販売店
  • 販売店
  • 病院
  • 病院
>
    • とりあえず保存
    • お問い合わせ
    交通

    JR山陽本線 明石駅
    【バス】 17分 生田(兵庫県) 停歩6分

    所在地 兵庫県神戸市西区伊川谷町有瀬
    物件種目 中古一戸建て
    価格 3,180万円 借地期間・地代(月額)
    権利金 敷金または保証金 - / -
    維持費等 その他一時金 なし
    間取り 2LDK(LDK21.3、洋10.8、11.3) 建物面積 109.30m²
    土地権利 所有権 建物構造 木造
    土地面積 135.17m²(公簿) 私道負担面積 なし
    築年月 2017年3月(築9年1ヶ月) 都市計画 市街化区域
    建物名 伊川谷町有瀬戸建 建築確認番号
    用途地域 1種中高 駐車場 有 無料
    建ぺい率 60% 容積率 200%
    階建 2階建 接道状況 南西 5.0m 私道 接面12.2m ・ 二方道路
    地目 宅地 地勢 平坦
    国土法届出 セットバック
    アピールポイント 家族が多い方には、2台の駐車が可能なので、便利です。トイレが2ヶ所にあるので複数人でも快適に暮らせます。収納スペースが広いウォークインクローゼットには衣服以外にも沢山の荷物をしまうことができるので、物が多い方におすすめです。こちらの物件は中古戸建物件です。周辺環境も良好な、2017年3月築の住みよい物件となっております。3口コンロが付いているので、3つの料理を同時に進められて時短につながります。建物面積109.3平米の物件は住み心地が良いと評判です。
    リフォーム履歴
    リノベーション履歴
    瑕疵保証
    瑕疵保険
    評価・証明書
    備考
    主要採光面:南西向き
    法令等制限:第3種高度地区
    ■2017年3月建築です。 ■アイ工務店施工の注文住宅です。 ■アイランドキッチン、オール電化住宅です。 ■間仕切りで2LDKから4LDKに変更可能です。(買主様負担) ■太陽光発電システム搭載しています。<蓄電器も有ります> ■LDK約21帖の広々空間です。 ■駐車スペース2台分ございます。<車種により制限がございます>
    ウォークインクローゼットは収納スペースが広いので、服を沢山持っている方におすすめです。
    エネルギー消費性能
    断熱性能
    目安光熱費
    バス・トイレ シャワー付洗面化粧台、温水洗浄便座、トイレ2ヶ所
    キッチン アイランドキッチン、カウンターキッチン、システムキッチン、食器洗浄乾燥機、IHクッキングヒーター、3口以上コンロ
    設備・サービス 全居室収納、ウォークインクローゼット、太陽光発電システム、クローゼット、ディンプルキー、全居室フローリング、上水道、下水道、電気、庭、複層ガラス
    その他
    現況 所有者居住中 引渡可能時期 2026年3月下旬予定
    物件番号 1190234919    
    情報公開日 2026年2月10日 次回更新予定日 2026年4月10日
    ケータイ用バーコード

    QRコード

    スマートフォンでこの物件を見る
    スマートフォンからもこの物件をご覧になれます。
    ※「-」と表示されている項目については、情報提供会社にご確認ください。

    この物件の周辺情報

    周辺施設 JR明石駅
    距離 3194m
    周辺施設 山陽 明石駅
    距離 3156m
    周辺施設 池上中央公園
    距離 1735m
    周辺施設 マルアイ有瀬店
    距離 699m
    周辺施設 サンディ 神戸北別府店
    距離 1337m
    周辺施設 生活協同組合コープこうべ コープデイズ神戸西
    距離 1474m
    周辺施設 あさぎり病院
    距離 1782m
    周辺施設 明舞中央病院
    距離 2560m

    クイックお問い合わせ

    ここから簡単にお問い合わせをすることができます。
    (SSLでの暗号化での送信を希望されるお客さまは こちら よりお問い合わせください)

    お問い合わせ内容(必須)
    お名前(必須) 姓  名 
    メールアドレス(必須)
    ※携帯電話のメールアドレスをご入力される方はこちらをご確認ください
    電話番号(必須)
    - -

    ※入力いただいた電話番号へSMSまたは音声でパスワードをご連絡します。

    携帯電話の番号をご入力の方へ

    携帯電話の番号をご入力の方へ
    確認画面にて送信ボタンをクリックするとSMSが携帯電話に届きます。
    そのSMSに記載のパスワード(認証番号)を入力し、お問い合わせを完了してください。
    尚、SMSの送信者番号は 0005 202 760 となります。
    これはアットホームの固定番号です。

    備考欄 希望条件、物件案内希望日、質問などがございましたらご記入ください。
    お問い合わせを行う前に「個人情報の取り扱いについて」を必ずお読みください。
    「個人情報の取り扱いについて」に同意いただいた場合は「上記にご同意の上 確認画面へ進む」のボタンをクリックしてください。

    個人情報の取り扱いについて

    皆さまが送付された個人情報はアットホーム(株)のサーバを経由し、お問い合わせ先の不動産会社にメールまたはFAXにて転送されるためアットホーム(株)にも保管されます。アットホーム(株)で保管された個人情報の取り扱いについては、【こちら】をご覧ください。
    また、本画面でご記入いただいた個人情報は、お問い合わせ先の不動産会社でも保管します。 お問い合わせ先の不動産会社が保管する個人情報の取り扱いについては、不動産会社に直接お問い合わせください。

    情報提供会社

    情報提供会社

    (株)日住サービス 垂水店

    国土交通大臣免許(13)第2287号

    交通:
    JR山陽本線/垂水駅 徒歩2分
    兵庫県神戸市垂水区神田町2-33 3階 
    TEL:
    078-709-8111
    FAX:
    078-706-5143
    所属団体:
    (一社)不動産流通経営協会会員
    (公社)首都圏不動産公正取引協議会加盟

    取引態様:専任媒介

    • 会社情報
    • 50024010
    スマートフォンで
    この不動産会社を見る
    QRコード
    • とりあえず保存
    • お問い合わせ
    • 提携サイト等より掲載されている物件情報につきましては、不動産会社詳細情報にリンクされていないものがあります。
    • 物件に関するお問合せは、物件詳細ページの「情報提供会社」に表示されている不動産会社へ直接お願いいたします。
    • 間取図は、現況を優先させていただきます。
    • 映像は物件の一部を撮影したものです。物件の契約にあたっての最終判断はご自身の判断に基づいて行ってください。
    • 仲介手数料について仲介手数料

    アットホームは物件情報の適正化に努めております。 内容に誤りがある場合にはこちらへご連絡ください。

    【埼玉住まい情報】では、日本全国の物件から賃貸マンションや賃貸アパート・賃貸一戸建て等の賃貸住宅情報、新築マンション・分譲マンションや中古マンション等の売買マンション情報、新築一戸建てや中古一戸建てなどの戸建住宅、 土地など、総合的な不動産住宅情報検索サービスを提供致します。
    【埼玉住まい情報】から、選りすぐりの不動産物件を探してみましょう。

    【免責事項】
    このコーナーの運営はアットホーム株式会社(https://www.athome.co.jp/)が行っています。
    このコーナーに掲載している物件情報は、「アットホーム不動産情報ネットワーク」に加盟する不動産会社等(情報提供元)から提供されています。信頼性の高い情報提供が行えるよう、最大限の努力をしておりますが、その内容を保証するものではありません。 利用者のみなさまと各情報提供元との取引に起因する損害および情報が掲載されたことに起因する損害等については、株式会社イーシティ埼玉、およびアットホームは一切責任を負いません。
    各物件情報の内容や画像等はすべて現況を優先させていただきます。
    お取引等(お取引の準備、資金調達等を含みます)の際には、内容や契約条件等について、各情報提供元より十分な説明を受け、ご自身でご確認の上、判断してください。
    このコーナーへの物件情報のご掲載、その他不動産業務ソリューション等についての不動産会社様のお問合せはこちらからお願いいたします。

    物件画像: