東京都昭島市田中町2丁目(昭島駅)の一戸建て:物件詳細
交通 所在地 |
駅徒歩 |
価格 |
間取り 建物面積 |
土地面積 私道負担面積 |
物件種目 築年月 |
|
JR青梅線/昭島
東京都昭島市田中町2丁目
|
18分
|
3,990万円
|
3SLDK
95.64m²
|
129.53m²
なし
|
新築一戸建て
2026年7月
|
|
駐車場2台分、南向き、外壁サイディング、バス1坪以上、2面採光、24時間換気システム、閑静な住宅街、設計住宅性能評価書あり、建設住宅性能評価書あり
|
|
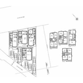
間取図
陽の光をたっぷりと浴びながら気持ち良く生活が出来ます。夢のマイホーム、夢ではなく実現出来ます!見学・
|
外観
※イメージ 青く澄み渡った綺麗な空と、陽の光をたっぷりと受ける、そんな新築住宅で新生活をスタートし
|
<
その他の画像
>
|
| 交通 | JR青梅線 昭島駅 徒歩18分 |
|---|
| その他の交通 | JR青梅線 拝島駅 徒歩40分 [バス利用可] バス 19分 拝島橋北 停歩3分 JR中央線 立川駅 徒歩19分 [バス利用可] バス 24分 拝島橋北 停歩4分 |
| 所在地 |
東京都昭島市田中町2丁目
|
| 物件種目 |
新築一戸建て |
| 価格 |
3,990万円 |
借地期間・地代(月額) |
- |
| 権利金 |
- |
敷金または保証金 |
- / - |
| 維持費等 |
- |
その他一時金 |
なし |
| 間取り |
3SLDK(LDK16.8、S4.5、洋7.5、6) |
建物面積 |
95.64m² |
| 土地権利 |
所有権 |
建物構造 |
木造 |
| 土地面積 |
129.53m²(公簿) |
私道負担面積 |
なし |
| 築年月 |
2026年7月
|
都市計画 |
市街化区域 |
| 建物名 |
新築戸建 昭島市田中町 全4棟 |
建築確認番号 |
HPA-26-00834-1 |
| 用途地域 |
準住居、1種低層 |
駐車場 |
有 無料 |
| 建ぺい率 |
60% |
容積率 |
300% |
| 階建 |
2階建 |
接道状況 |
南西 4.0m 公道
|
| 地目 |
宅地 |
地勢 |
- |
| 国土法届出 |
- |
セットバック |
- |
| アピールポイント |
◇資料請求、ご案内希望はお気軽に、時間外対応ご予約ください◇
昭島駅や拝島駅がつかえてバスも生活便利、スーパーがすごく近いので毎日のお買い物にも困りません・公園・教育施設が点在しており、周辺環境が大変充実しております[昭島市田中小学校/多摩辺中学校] |
| リフォーム履歴 |
- |
| リノベーション履歴 |
- |
| 瑕疵保証 |
- |
| 瑕疵保険 |
- |
| 評価・証明書 |
- |
| 備考 |
主要採光面:南向き
総戸数:4戸
法令等制限:※設備仕様プラン変更の場合もございます。※現況優先、設備間
工事完了予定日:2026年7月
※設備仕様プラン変更の場合もございます、予めご了承ください。 ※設備間取りその他気になる箇所などは案内時にお確かめください。 ※図面と現況が異なる場合、現況優先です。その他気になる箇所などは案内時にお確かめください。※CG画像に関して、あくまでもイメージです。実際の仕様と異なる場合もございます。
◇住宅ローン不安なお客様◇ ・他社様でローンが通らなかったお客様 ・持病でお薬を飲んでいるお客様 ・持ち家をあきらめているお客様 ・購入できるか?ご不安なお客様 ぜひミライズホームに一度ご相談下さい☆彡 豊富な提携金融機関から、お客様に合ったプランをコンサルティング致します! 今のお悩みをぜひ聞かせてください☆彡 ◇現地案内会を開催中◇ 平日・休日問わず、いつでもご見学が出来ます♪ ミライズホーム株式会社は、 お客様に寄り添って、お客様のご都合に合わせていつでもご案内させて頂きます。 お仕事終わりなどの夜間や早朝などお気軽にご相談ください♪ (時間外の対応は、事前にご予約を頂いたお客様限定のサービスです) ◆最寄りの駅、ご自宅への無料送迎サービス♪ ◆お子様がいらっしゃるご家族様
|
| エネルギー消費性能 |
- |
| 断熱性能 |
- |
| 目安光熱費 |
- |
| バス・トイレ |
浴室乾燥機、オートバス、追焚機能、シャワー付洗面化粧台、温水洗浄便座、トイレ2ヶ所 |
| キッチン |
カウンターキッチン、システムキッチン、浄水器、3口以上コンロ |
| 設備・サービス |
全居室収納、クローゼット、床下収納、モニター付インターホン、上水道、下水道、都市ガス、庭、照明器具、複層ガラス |
| その他 |
- |
| 現況 |
建築中 |
引渡可能時期 |
相談 |
| 物件番号 |
1191413619 |
|
|
| 情報公開日 |
2026年3月7日 |
次回更新予定日 |
2026年5月11日 |
| ケータイ用バーコード |
- スマートフォンでこの物件を見る
- スマートフォンからもこの物件をご覧になれます。
|
※「-」と表示されている項目については、情報提供会社にご確認ください。
| 周辺施設 |
昭島市立田中小学校 |
| 距離 |
461m |
写真を見る |
| 周辺施設 |
昭島市立多摩辺中学校 |
| 距離 |
1136m |
写真を見る |
| 周辺施設 |
マルフジ昭島市役所通り店 |
| 距離 |
498m |
写真を見る |
| 周辺施設 |
OK(オーケー) 昭島店 |
| 距離 |
931m |
写真を見る |
| 周辺施設 |
ショッピングセンター モリタウン |
| 距離 |
2052m |
写真を見る |
| 周辺施設 |
セブンイレブン 昭島田中町2丁目店 |
| 距離 |
229m |
写真を見る |
| 周辺施設 |
島忠HOME'S(島忠ホームズ) 昭島店 |
| 距離 |
844m |
写真を見る |
| 周辺施設 |
ドラッグストアバイゴー 昭島田中町店 |
| 距離 |
238m |
写真を見る |
ここから簡単にお問い合わせをすることができます。
(SSLでの暗号化での送信を希望されるお客さまは
こちら
よりお問い合わせください)
お問い合わせを行う前に
「個人情報の取り扱いについて」を必ずお読みください。
「個人情報の取り扱いについて」に同意いただいた場合は「上記にご同意の上 確認画面へ進む」のボタンをクリックしてください。
個人情報の取り扱いについて
皆さまが送付された個人情報はアットホーム(株)のサーバを経由し、お問い合わせ先の不動産会社にメールまたはFAXにて転送されるためアットホーム(株)にも保管されます。アットホーム(株)で保管された個人情報の取り扱いについては、【こちら】をご覧ください。
また、本画面でご記入いただいた個人情報は、お問い合わせ先の不動産会社でも保管します。 お問い合わせ先の不動産会社が保管する個人情報の取り扱いについては、不動産会社に直接お問い合わせください。
東京都知事免許(1)第109609号 |
|---|
- 交通:
- JR中央線/立川駅 徒歩6分
- 東京都立川市錦町2丁目1-21 パークユイット立川1階
- TEL:
- 042-595-6953
- FAX:
- 042-595-6954
- 所属団体:
- (公社)全日本不動産協会会員(公社)首都圏不動産公正取引協議会加盟
取引態様:媒介  - 00984301
|
- スマートフォンで
この不動産会社を見る

|
- 提携サイト等より掲載されている物件情報につきましては、不動産会社詳細情報にリンクされていないものがあります。
- 物件に関するお問合せは、物件詳細ページの「情報提供会社」に表示されている不動産会社へ直接お願いいたします。
- 間取図は、現況を優先させていただきます。
- 映像は物件の一部を撮影したものです。物件の契約にあたっての最終判断はご自身の判断に基づいて行ってください。
- 仲介手数料について

アットホームは物件情報の適正化に努めております。
内容に誤りがある場合にはこちらへご連絡ください。