大阪府高槻市春日町(高槻市駅)の一戸建て:物件詳細
交通 所在地 |
駅徒歩 |
価格 |
間取り 建物面積 |
土地面積 私道負担面積 |
物件種目 築年月 |
|
阪急京都線/高槻市 【バス】8分 春日町 停歩4分
大阪府高槻市春日町
|
-
|
3,180万円
|
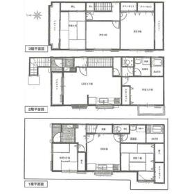
6LDK
149.87m²
|
100.91m²
有 4.54m²
|
中古一戸建て
1997年9月(築28年7ヶ月)
|
|
間取図
|
外観
|
その他の画像
|
| 交通 | 阪急京都線 高槻市駅 【バス】 8分 春日町 停歩4分 |
|---|
| その他の交通 | 阪急京都線 高槻市駅 【バス】 10分 春日町 停歩4分 阪急京都線 高槻市駅 徒歩22分 |
| 所在地 |
大阪府高槻市春日町
|
| 物件種目 |
中古一戸建て |
| 価格 |
3,180万円 |
借地期間・地代(月額) |
- |
| 権利金 |
- |
敷金または保証金 |
- / - |
| 維持費等 |
- |
その他一時金 |
なし |
| 間取り |
6LDK(和室4.5/和室7/和室6/洋室6.5/洋室6/洋室8/DK) |
建物面積 |
149.87m² |
| 土地権利 |
所有権 |
建物構造 |
木造 |
| 土地面積 |
100.91m²(公簿) |
私道負担面積 |
有 4.54m² |
| 築年月 |
1997年9月(築28年7ヶ月)
|
都市計画 |
市街化区域 |
| 建物名 |
高槻市春日町 中古一戸建 |
建築確認番号 |
- |
| 用途地域 |
2種中高 |
駐車場 |
有 無料 |
| 建ぺい率 |
60% |
容積率 |
200% |
| 階建 |
3階建 |
接道状況 |
北 2.5m 公道 接面5.8m
|
| 地目 |
宅地 |
地勢 |
平坦 |
| 国土法届出 |
- |
セットバック |
- |
| リフォーム履歴 |
- |
| リノベーション履歴 |
- |
| 瑕疵保証 |
- |
| 瑕疵保険 |
- |
| 評価・証明書 |
- |
| 備考 |
-
|
| エネルギー消費性能 |
- |
| 断熱性能 |
- |
| 目安光熱費 |
- |
| バス・トイレ |
- |
| キッチン |
- |
| 設備・サービス |
上水道、下水道、都市ガス |
| その他 |
- |
| 現況 |
空家 |
引渡可能時期 |
相談 |
| 物件番号 |
1192959217 |
|
|
| 情報公開日 |
2026年2月13日 |
次回更新予定日 |
2026年3月30日 |
| ケータイ用バーコード |
- スマートフォンでこの物件を見る
- スマートフォンからもこの物件をご覧になれます。
|
※「-」と表示されている項目については、情報提供会社にご確認ください。
| 周辺施設 |
mandai(万代) 高槻春日店 |
| 距離 |
329m |
写真を見る |
| 周辺施設 |
ドン・キホーテ高槻店 |
| 距離 |
693m |
写真を見る |
| 周辺施設 |
高槻市立西大冠幼稚園 |
| 距離 |
813m |
写真を見る |
| 周辺施設 |
高槻市立若松小学校 |
| 距離 |
727m |
写真を見る |
| 周辺施設 |
高槻市立城南中学校 |
| 距離 |
344m |
写真を見る |
ここから簡単にお問い合わせをすることができます。
(SSLでの暗号化での送信を希望されるお客さまは
こちら
よりお問い合わせください)
お問い合わせを行う前に
「個人情報の取り扱いについて」を必ずお読みください。
「個人情報の取り扱いについて」に同意いただいた場合は「上記にご同意の上 確認画面へ進む」のボタンをクリックしてください。
個人情報の取り扱いについて
皆さまが送付された個人情報はアットホーム(株)のサーバを経由し、お問い合わせ先の不動産会社にメールまたはFAXにて転送されるためアットホーム(株)にも保管されます。アットホーム(株)で保管された個人情報の取り扱いについては、【こちら】をご覧ください。
また、本画面でご記入いただいた個人情報は、お問い合わせ先の不動産会社でも保管します。 お問い合わせ先の不動産会社が保管する個人情報の取り扱いについては、不動産会社に直接お問い合わせください。
大阪府知事免許(12)第21564号 |
|---|
- 交通:
- JR東海道本線/茨木駅 徒歩1分
- 大阪府茨木市西駅前町6-26 田畑ビル3階
- TEL:
- 072-665-7340
- FAX:
- 072-648-3612
- 所属団体:
- (一社)大阪府宅地建物取引業協会会員(公社)近畿地区不動産公正取引協議会加盟
取引態様:媒介  - 50112519
|
- スマートフォンで
この不動産会社を見る

|
- 提携サイト等より掲載されている物件情報につきましては、不動産会社詳細情報にリンクされていないものがあります。
- 物件に関するお問合せは、物件詳細ページの「情報提供会社」に表示されている不動産会社へ直接お願いいたします。
- 間取図は、現況を優先させていただきます。
- 映像は物件の一部を撮影したものです。物件の契約にあたっての最終判断はご自身の判断に基づいて行ってください。
- 仲介手数料について

アットホームは物件情報の適正化に努めております。
内容に誤りがある場合にはこちらへご連絡ください。