不動産 賃貸 マンション等の住宅情報:埼玉住まい情報


埼玉県川口市飯原町(川口駅)の一戸建て:物件詳細

  • 物件詳細
  • 情報の見方
  • 印刷用画面
交通
所在地
駅徒歩 価格 間取り
建物面積
土地面積
私道負担面積
物件種目
築年月

JR京浜東北線/川口 新着

埼玉県川口市飯原町

16分

5,099万円

4LDK

105.27m²

50.52m²

新築一戸建て

2026年5月
新築 

おすすめPOINTバス1坪以上、閑静な住宅街

おすすめコメント  スタッフ: 渡邉 健介

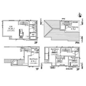
■2階リビング■ルーフバルコニー■セブンイレブン200m(徒歩3分)■飯塚3丁目公園120m(徒歩2分)お問合せでもれなく「住宅ローン講座」プレゼント!営業時間:7:00~22:00(年中無休)こちら

間取図

間取図

間取

間取図

間取図

区画図

  • とりあえず保存
  • お問い合わせ
交通

JR京浜東北線 川口駅 徒歩16分

その他の交通

JR京浜東北線 西川口駅
【バス】 11分 飯塚三丁目 停歩2分

埼玉高速鉄道 川口元郷駅
【バス】 5分 川口駅東口 停歩16分

所在地 埼玉県川口市飯原町
物件種目 新築一戸建て
価格 5,099万円 借地期間・地代(月額)
権利金 敷金または保証金 - / -
維持費等 その他一時金
間取り 4LDK 建物面積 105.27m²
土地権利 所有権 建物構造 木造
土地面積 50.52m² 私道負担面積
築年月 2026年5月 新築  都市計画 市街化区域
建物名 新築戸建 全4棟 川口市飯原町 敷地50.52平米 建物105.27平 建築確認番号 第KBI-SGM25-10-1809号
用途地域 準工業 駐車場
建ぺい率 70% 容積率 200%
階建 3階建 接道状況 西 4.0m 公道 ・ 南 4.0m 公道 ・ 二方道路
地目 宅地 地勢
国土法届出 セットバック
アピールポイント □■□東宝ハウス浦和の特典□■□

■お問合せで「住宅ローン講座」プレゼント
※住宅ローンをわかりやすくまとめた本です

■ご来店+アンケートでQUOカード最大5000円分プレゼント


━◇T’sローン◇━

「東宝ハウスフィナンシャル」は住信SBIネット銀行の銀行代理業者です。
魅力的な金利+金利上乗せなしで全疾病保障付帯の提携住宅ローンを提供します。

【住宅ローンのご相談】
不動産会社により銀行金利と保障内容が大きく変わります!
当社は多数の銀行様にて優遇幅の大きい提携金利で申込むことが可能です。

未公開情報や新規公開予定物件の資料もご用意します。
ぜひご希望条件をお聞かせ下さい。

━◇ TOHO HOUSE CLUB ◇━
【”東宝ハウスだけ”業界初の無料アフターサポート】

■ライフプランニング【未来カレンダーで独自のFP相談】
将来の収入と支出を『視える化』し、漠然とした不安や悩みを安心に変えるお手伝い

■かけつけサポート(5年間無料)
住まいの急なトラブルに24時間365日対応

■Club Offプレミアム
国内外20万以上の施設を割引価格で何度でも
リフォーム履歴
リノベーション履歴
瑕疵保証
瑕疵保険
評価・証明書
備考
総戸数:4戸
法令等制限:その他制限事項:特別工業地区
特別工業地区
エネルギー消費性能
断熱性能
目安光熱費
バス・トイレ トイレ2ヶ所
キッチン システムキッチン、浄水器
設備・サービス 上水道、下水道、都市ガス、ワイドバルコニー、複層ガラス
その他
現況 建築中 引渡可能時期 2026年5月下旬予定
物件番号 1193623505    
情報公開日 2025年10月25日 次回更新予定日 2025年11月8日
ケータイ用バーコード

QRコード

スマートフォンでこの物件を見る
スマートフォンからもこの物件をご覧になれます。
※「-」と表示されている項目については、情報提供会社にご確認ください。

クイックお問い合わせ

ここから簡単にお問い合わせをすることができます。
(SSLでの暗号化での送信を希望されるお客さまは こちら よりお問い合わせください)

お問い合わせ内容(必須)
お名前(必須) 姓  名 
メールアドレス(必須)
※携帯電話のメールアドレスをご入力される方はこちらをご確認ください
電話番号(必須)
- -

※入力いただいた電話番号へSMSまたは音声でパスワードをご連絡します。

携帯電話の番号をご入力の方へ

携帯電話の番号をご入力の方へ
確認画面にて送信ボタンをクリックするとSMSが携帯電話に届きます。
そのSMSに記載のパスワード(認証番号)を入力し、お問い合わせを完了してください。
尚、SMSの送信者番号は 0005 202 760 となります。
これはアットホームの固定番号です。

備考欄 希望条件、物件案内希望日、質問などがございましたらご記入ください。
お問い合わせを行う前に「個人情報の取り扱いについて」を必ずお読みください。
「個人情報の取り扱いについて」に同意いただいた場合は「上記にご同意の上 確認画面へ進む」のボタンをクリックしてください。

個人情報の取り扱いについて

皆さまが送付された個人情報はアットホーム(株)のサーバを経由し、お問い合わせ先の不動産会社にメールまたはFAXにて転送されるためアットホーム(株)にも保管されます。アットホーム(株)で保管された個人情報の取り扱いについては、【こちら】をご覧ください。
また、本画面でご記入いただいた個人情報は、お問い合わせ先の不動産会社でも保管します。 お問い合わせ先の不動産会社が保管する個人情報の取り扱いについては、不動産会社に直接お問い合わせください。

情報提供会社

情報提供会社

東宝ハウスライフソリューションズグループ (株)東宝ハウス浦和

埼玉県知事免許(4)第21060号

交通:
JR京浜東北線/浦和駅 徒歩10分
埼玉県さいたま市浦和区岸町6丁目1-5 
TEL:
0120-919-113
FAX:
048-831-2631
所属団体:
(公社)全日本不動産協会会員
(公社)首都圏不動産公正取引協議会加盟

取引態様:媒介

  • 会社情報
  • 00780632
スマートフォンで
この不動産会社を見る
QRコード
  • とりあえず保存
  • お問い合わせ
  • 提携サイト等より掲載されている物件情報につきましては、不動産会社詳細情報にリンクされていないものがあります。
  • 物件に関するお問合せは、物件詳細ページの「情報提供会社」に表示されている不動産会社へ直接お願いいたします。
  • 間取図は、現況を優先させていただきます。
  • 映像は物件の一部を撮影したものです。物件の契約にあたっての最終判断はご自身の判断に基づいて行ってください。
  • 仲介手数料について仲介手数料

アットホームは物件情報の適正化に努めております。 内容に誤りがある場合にはこちらへご連絡ください。

【埼玉住まい情報】では、日本全国の物件から賃貸マンションや賃貸アパート・賃貸一戸建て等の賃貸住宅情報、新築マンション・分譲マンションや中古マンション等の売買マンション情報、新築一戸建てや中古一戸建てなどの戸建住宅、 土地など、総合的な不動産住宅情報検索サービスを提供致します。
【埼玉住まい情報】から、選りすぐりの不動産物件を探してみましょう。

【免責事項】
このコーナーの運営はアットホーム株式会社(https://www.athome.co.jp/)が行っています。
このコーナーに掲載している物件情報は、「アットホーム不動産情報ネットワーク」に加盟する不動産会社等(情報提供元)から提供されています。信頼性の高い情報提供が行えるよう、最大限の努力をしておりますが、その内容を保証するものではありません。 利用者のみなさまと各情報提供元との取引に起因する損害および情報が掲載されたことに起因する損害等については、株式会社イーシティ埼玉、およびアットホームは一切責任を負いません。
各物件情報の内容や画像等はすべて現況を優先させていただきます。
お取引等(お取引の準備、資金調達等を含みます)の際には、内容や契約条件等について、各情報提供元より十分な説明を受け、ご自身でご確認の上、判断してください。
このコーナーへの物件情報のご掲載、その他不動産業務ソリューション等についての不動産会社様のお問合せはこちらからお願いいたします。

物件画像: