熊本県玉名郡和水町長小田(玉名駅)の一戸建て:物件詳細
交通 所在地 |
駅徒歩 |
価格 |
間取り 建物面積 |
土地面積 私道負担面積 |
物件種目 築年月 |
|
JR鹿児島本線/玉名
熊本県玉名郡和水町長小田
|
12500m
|
2,100万円
|
4LDK
136.79m²
|
609.00m²
-
|
中古一戸建て
2011年11月(築14年)
|
|
バス1坪以上、オール電化、前面棟無、瑕疵保険検査基準に適合
|
|
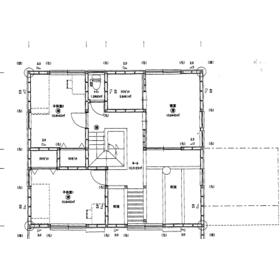
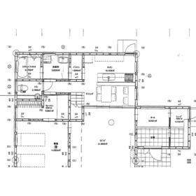
間取図
平面図1階
|
平面図2階
|
<
その他の画像
>
|
| 交通 | JR鹿児島本線 玉名駅 徒歩12500m |
| 所在地 |
熊本県玉名郡和水町長小田
|
| 物件種目 |
中古一戸建て |
| 価格 |
2,100万円 |
借地期間・地代(月額) |
- |
| 権利金 |
- |
敷金または保証金 |
- / - |
| 維持費等 |
- |
その他一時金 |
- |
| 間取り |
4LDK(洋 8・6・6・6 LDK 20) |
建物面積 |
136.79m² |
| 土地権利 |
所有権 |
建物構造 |
木造 |
| 土地面積 |
609.00m²(公簿) |
私道負担面積 |
- |
| 築年月 |
2011年11月(築14年)
|
都市計画 |
区域外 |
| 建物名 |
|
建築確認番号 |
- |
| 用途地域 |
- |
駐車場 |
- |
| 建ぺい率 |
- |
容積率 |
- |
| 階建 |
2階建 |
接道状況 |
南 4.0m 公道 接面23.4m
|
| 地目 |
宅地 |
地勢 |
平坦 |
| 国土法届出 |
- |
セットバック |
- |
| アピールポイント |
太陽光:パナソニックHIT6.9KW 平成24年6月設置
売電収入:月2万
日本住宅保証検査機構の保険付き保障あり(2021年11月1日まで)
水道:井戸
排水:合併浄化槽町管理4320円/月 |
| リフォーム履歴 |
- |
| リノベーション履歴 |
- |
| 瑕疵保証 |
- |
| 瑕疵保険 |
瑕疵保険検査基準に適合 瑕疵保険(国交省指定)による保証付 |
| 評価・証明書 |
- |
| 備考 |
施工会社:株式会社藤本建設
新築時・増改築時の設計図書あり
現在入居中5月末退去予定
|
| エネルギー消費性能 |
- |
| 断熱性能 |
- |
| 目安光熱費 |
- |
| バス・トイレ |
オートバス、追焚機能、シャワー付洗面化粧台、温水洗浄便座、トイレ2ヶ所 |
| キッチン |
IHクッキングヒーター |
| 設備・サービス |
全居室収納、太陽光発電システム、浄化槽、照明器具、BS端子 |
| その他 |
- |
| 現況 |
賃貸中 |
引渡可能時期 |
相談 |
| 物件番号 |
6962800672 |
|
|
| 情報公開日 |
2025年8月14日 |
次回更新予定日 |
2025年11月1日 |
| ケータイ用バーコード |
- スマートフォンでこの物件を見る
- スマートフォンからもこの物件をご覧になれます。
|
※「-」と表示されている項目については、情報提供会社にご確認ください。
| 周辺施設 |
JAたまな菊水総合支所 |
| 距離 |
2205m |
| 周辺施設 |
セブンイレブン菊水インター店 |
| 距離 |
2308m |
ここから簡単にお問い合わせをすることができます。
(SSLでの暗号化での送信を希望されるお客さまは
こちら
よりお問い合わせください)
お問い合わせを行う前に
「個人情報の取り扱いについて」を必ずお読みください。
「個人情報の取り扱いについて」に同意いただいた場合は「上記にご同意の上 確認画面へ進む」のボタンをクリックしてください。
個人情報の取り扱いについて
皆さまが送付された個人情報はアットホーム(株)のサーバを経由し、お問い合わせ先の不動産会社にメールまたはFAXにて転送されるためアットホーム(株)にも保管されます。アットホーム(株)で保管された個人情報の取り扱いについては、【こちら】をご覧ください。
また、本画面でご記入いただいた個人情報は、お問い合わせ先の不動産会社でも保管します。 お問い合わせ先の不動産会社が保管する個人情報の取り扱いについては、不動産会社に直接お問い合わせください。
熊本県知事免許(3)第4985号 |
|---|
- 交通:
- 【バス】 運動公園前 停歩1分
- 熊本県荒尾市増永2900-16
- TEL:
- 0968-65-2262
- FAX:
- 0968-57-9755
- 所属団体:
- (公社)全日本不動産協会会員(一社)九州不動産公正取引協議会加盟
取引態様:専任媒介  - 80501882
|
- スマートフォンで
この不動産会社を見る

|
- 提携サイト等より掲載されている物件情報につきましては、不動産会社詳細情報にリンクされていないものがあります。
- 物件に関するお問合せは、物件詳細ページの「情報提供会社」に表示されている不動産会社へ直接お願いいたします。
- 間取図は、現況を優先させていただきます。
- 映像は物件の一部を撮影したものです。物件の契約にあたっての最終判断はご自身の判断に基づいて行ってください。
- 仲介手数料について

アットホームは物件情報の適正化に努めております。
内容に誤りがある場合にはこちらへご連絡ください。