千葉県茂原市高師町3丁目(茂原駅)の一戸建て:物件詳細
交通 所在地 |
駅徒歩 |
価格 |
間取り 建物面積 |
土地面積 私道負担面積 |
物件種目 築年月 |
|
JR外房線/茂原
千葉県茂原市高師町3丁目
|
11分
|
3,680万円
|
5SLDK
161.93m²
|
288.09m²
-
|
中古一戸建て
2017年2月(築8年11ヶ月)
|
|
駐車場3台分以上、南向き、バス1坪以上、2面採光、隣接建物距離2m以上
|
|
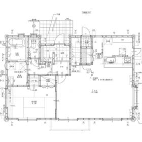
間取図
1階
|
外観道路から
|
<
その他の画像
>
|
| 交通 | JR外房線 茂原駅 徒歩11分 |
| 所在地 |
千葉県茂原市高師町3丁目
|
| 物件種目 |
中古一戸建て |
| 価格 |
3,680万円 |
借地期間・地代(月額) |
- |
| 権利金 |
- |
敷金または保証金 |
- / - |
| 維持費等 |
- |
その他一時金 |
- |
| 間取り |
5SLDK(和 8.1 洋 5.4・7.4・7.5・8.4 LDK 26.1 S 3) |
建物面積 |
161.93m² |
| 土地権利 |
所有権 |
建物構造 |
木造 |
| 土地面積 |
288.09m²(公簿) |
私道負担面積 |
- |
| 築年月 |
2017年2月(築8年11ヶ月)
|
都市計画 |
非線引区域 |
| 建物名 |
|
建築確認番号 |
- |
| 用途地域 |
1種住居 |
駐車場 |
有 |
| 建ぺい率 |
60% |
容積率 |
200% |
| 階建 |
2階建 |
接道状況 |
北 11.0m 公道 接面15.8m
|
| 地目 |
宅地 |
地勢 |
平坦 |
| 国土法届出 |
- |
セットバック |
- |
| アピールポイント |
茂原小学校 750m。ヤックス茂原高師店 300m。市役所900m。ファミリーマート隣接。くるまやラーメン店目の前。1階は電動シャッター付。ハイルーフ2台分カーポートあり。(車は4台位駐車可)。 |
| リフォーム履歴 |
- |
| リノベーション履歴 |
- |
| 瑕疵保証 |
- |
| 瑕疵保険 |
- |
| 評価・証明書 |
- |
| 備考 |
バルコニー:3.5m²
主要採光面:南向き
|
| エネルギー消費性能 |
- |
| 断熱性能 |
- |
| 目安光熱費 |
- |
| バス・トイレ |
浴室乾燥機、追焚機能、温水洗浄便座、トイレ2ヶ所 |
| キッチン |
カウンターキッチン、3口以上コンロ |
| 設備・サービス |
ウォークインクローゼット、エアコン2台以上、モニター付インターホン、防犯カメラ、電動シャッター、上水道、都市ガス、電気、庭、照明器具、複層ガラス |
| その他 |
- |
| 現況 |
空家 |
引渡可能時期 |
相談 |
| 物件番号 |
6971295661 |
仲介手数料 |
売買代金の3%+6万円 |
| 情報公開日 |
2023年6月1日 |
次回更新予定日 |
2025年12月7日 |
| ケータイ用バーコード |
- スマートフォンでこの物件を見る
- スマートフォンからもこの物件をご覧になれます。
|
※「-」と表示されている項目については、情報提供会社にご確認ください。
| 周辺施設 |
ファミリーマート茂原高師町店 |
| 距離 |
102m |
| 周辺施設 |
ヤックスドラッグ茂原高師店 |
| 距離 |
328m |
| 周辺施設 |
医療法人社団上総会山之内病院 |
| 距離 |
978m |
ここから簡単にお問い合わせをすることができます。
(SSLでの暗号化での送信を希望されるお客さまは
こちら
よりお問い合わせください)
お問い合わせを行う前に
「個人情報の取り扱いについて」を必ずお読みください。
「個人情報の取り扱いについて」に同意いただいた場合は「上記にご同意の上 確認画面へ進む」のボタンをクリックしてください。
個人情報の取り扱いについて
皆さまが送付された個人情報はアットホーム(株)のサーバを経由し、お問い合わせ先の不動産会社にメールまたはFAXにて転送されるためアットホーム(株)にも保管されます。アットホーム(株)で保管された個人情報の取り扱いについては、【こちら】をご覧ください。
また、本画面でご記入いただいた個人情報は、お問い合わせ先の不動産会社でも保管します。 お問い合わせ先の不動産会社が保管する個人情報の取り扱いについては、不動産会社に直接お問い合わせください。
千葉県知事免許(9)第9407号 |
|---|
- 交通:
- JR外房線/茂原駅 【バス】5分 木崎入口 停歩5分
- 千葉県茂原市東部台2丁目10-1
- TEL:
- 0475-25-3635
- FAX:
- 0475-26-2231
- 所属団体:
- (一社)千葉県宅地建物取引業協会会員(公社)首都圏不動産公正取引協議会加盟
取引態様:専任媒介  - 00121408
|
- スマートフォンで
この不動産会社を見る

|
- 提携サイト等より掲載されている物件情報につきましては、不動産会社詳細情報にリンクされていないものがあります。
- 物件に関するお問合せは、物件詳細ページの「情報提供会社」に表示されている不動産会社へ直接お願いいたします。
- 間取図は、現況を優先させていただきます。
- 映像は物件の一部を撮影したものです。物件の契約にあたっての最終判断はご自身の判断に基づいて行ってください。
- 仲介手数料について

アットホームは物件情報の適正化に努めております。
内容に誤りがある場合にはこちらへご連絡ください。