富山県富山市城村新町(月岡駅)の一戸建て:物件詳細
交通 所在地 |
駅徒歩 |
価格 |
間取り 建物面積 |
土地面積 私道負担面積 |
物件種目 築年月 |
|
富山地鉄不二越上滝線/月岡 [バス利用可] バス 1分 城ケ丘 停歩7分
富山県富山市城村新町
|
3000m
|
980万円
|
3LDK
98.51m²
|
149.18m²
なし
|
中古一戸建て
1985年7月(築40年11ヶ月)
|
|
瑕疵保険検査基準に適合
|
|
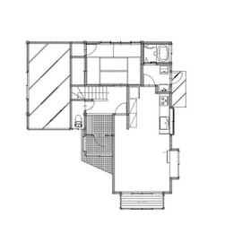
間取図
|
|
<
その他の画像
>
|
| 交通 | 富山地鉄不二越上滝線 月岡駅 徒歩3000m [バス利用可] バス 1分 城ケ丘 停歩7分 |
| 所在地 |
富山県富山市城村新町
|
| 物件種目 |
中古一戸建て |
| 価格 |
980万円 |
借地期間・地代(月額) |
- |
| 権利金 |
- |
敷金または保証金 |
- / - |
| 維持費等 |
- |
その他一時金 |
- |
| 間取り |
3LDK(和 6・6・6) |
建物面積 |
98.51m² |
| 土地権利 |
所有権 |
建物構造 |
木造 |
| 土地面積 |
149.18m²(公簿) |
私道負担面積 |
なし |
| 築年月 |
1985年7月(築40年11ヶ月)
|
都市計画 |
調整区域 |
| 建物名 |
富山市城村新町31-1 |
建築確認番号 |
- |
| 用途地域 |
無指定 |
駐車場 |
- |
| 建ぺい率 |
60% |
容積率 |
200% |
| 階建 |
2階建 |
接道状況 |
南東 6.0m 公道 接面10.0m
・ 南西 13.0m 公道 接面10.0m
・ 二方道路
|
| 地目 |
宅地 |
地勢 |
平坦 |
| 国土法届出 |
- |
セットバック |
- |
| リフォーム履歴 |
■水回り:2021年6月 キッチン、浴室、トイレ、洗面所、給湯器 ■内装:2021年6月 内装全面(床・壁・天井・建具) ■外装:2021年6月 外壁 ※実施年月は最も古い履歴を表示 |
| リノベーション履歴 |
- |
| 瑕疵保証 |
- |
| 瑕疵保険 |
瑕疵保険検査基準に適合 |
| 評価・証明書 |
- |
| 備考 |
リフォーム済住宅!住宅ローン減税対象物件!!
|
| エネルギー消費性能 |
- |
| 断熱性能 |
- |
| 目安光熱費 |
- |
| バス・トイレ |
- |
| キッチン |
- |
| 設備・サービス |
- |
| その他 |
- |
| 現況 |
空家 |
引渡可能時期 |
即時 |
| 物件番号 |
6973885260 |
仲介手数料 |
売買代金の3%+6万円 |
| 情報公開日 |
2023年4月13日 |
次回更新予定日 |
2026年5月16日 |
| ケータイ用バーコード |
- スマートフォンでこの物件を見る
- スマートフォンからもこの物件をご覧になれます。
|
※「-」と表示されている項目については、情報提供会社にご確認ください。
ここから簡単にお問い合わせをすることができます。
(SSLでの暗号化での送信を希望されるお客さまは
こちら
よりお問い合わせください)
お問い合わせを行う前に
「個人情報の取り扱いについて」を必ずお読みください。
「個人情報の取り扱いについて」に同意いただいた場合は「上記にご同意の上 確認画面へ進む」のボタンをクリックしてください。
個人情報の取り扱いについて
皆さまが送付された個人情報はアットホーム(株)のサーバを経由し、お問い合わせ先の不動産会社にメールまたはFAXにて転送されるためアットホーム(株)にも保管されます。アットホーム(株)で保管された個人情報の取り扱いについては、【こちら】をご覧ください。
また、本画面でご記入いただいた個人情報は、お問い合わせ先の不動産会社でも保管します。 お問い合わせ先の不動産会社が保管する個人情報の取り扱いについては、不動産会社に直接お問い合わせください。
国土交通大臣免許(2)第9389号 |
|---|
- 交通:
- IRいしかわ鉄道/金沢駅 【バス】20分 泉丘高校前 停歩1分
- 石川県金沢市泉野出町4丁目1-22
- TEL:
- 076-201-1188
- FAX:
- 076-201-1199
- 所属団体:
- (公社)石川県宅地建物取引業協会会員北陸不動産公正取引協議会加盟
取引態様:一般媒介  - 40403546
|
- スマートフォンで
この不動産会社を見る

|
- 提携サイト等より掲載されている物件情報につきましては、不動産会社詳細情報にリンクされていないものがあります。
- 物件に関するお問合せは、物件詳細ページの「情報提供会社」に表示されている不動産会社へ直接お願いいたします。
- 間取図は、現況を優先させていただきます。
- 映像は物件の一部を撮影したものです。物件の契約にあたっての最終判断はご自身の判断に基づいて行ってください。
- 仲介手数料について

アットホームは物件情報の適正化に努めております。
内容に誤りがある場合にはこちらへご連絡ください。