大阪府大阪市西淀川区柏里1丁目(塚本駅)の一戸建て:物件詳細
交通 所在地 |
駅徒歩 |
価格 |
間取り 建物面積 |
土地面積 私道負担面積 |
物件種目 築年月 |
|
JR東海道本線/塚本
大阪府大阪市西淀川区柏里1丁目
|
5分
|
15,700万円
|
6SLDK
259.30m²
|
144.07m²
なし
|
中古一戸建て
2016年2月(築9年11ヶ月)
|
|
駐車場2台分、バス1坪以上、整形地
|
|
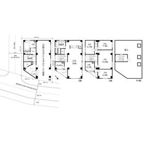
間取図
|
|
その他の画像
|
| 交通 | JR東海道本線 塚本駅 徒歩5分 |
|---|
| その他の交通 | 阪神本線 姫島駅 徒歩15分 JR東西線 御幣島駅 徒歩19分 |
| 所在地 |
大阪府大阪市西淀川区柏里1丁目
|
| 物件種目 |
中古一戸建て |
| 価格 |
15,700万円 |
借地期間・地代(月額) |
- |
| 権利金 |
- |
敷金または保証金 |
- / - |
| 維持費等 |
- |
その他一時金 |
- |
| 間取り |
6SLDK(洋 14.8・7.3・6.8・6.7・4.2) |
建物面積 |
259.30m² |
| 土地権利 |
所有権 |
建物構造 |
RC |
| 土地面積 |
144.07m²(公簿) |
私道負担面積 |
なし |
| 築年月 |
2016年2月(築9年11ヶ月)
|
都市計画 |
市街化区域 |
| 建物名 |
柏里戸建 |
建築確認番号 |
- |
| 用途地域 |
1種住居 |
駐車場 |
- |
| 建ぺい率 |
80% |
容積率 |
200% |
| 階建 |
3階建 |
接道状況 |
南西 8.0m 公道 接面9.8m
・ 北西 4.0m 私道 接面11.7m
・ 二方道路
|
| 地目 |
宅地 |
地勢 |
平坦 |
| 国土法届出 |
- |
セットバック |
済 21.50m² |
| アピールポイント |
閑静な住宅地に佇む築6年のRC物件
居住用だけでなく民泊・シェアハウスなどにも利用可能な設計です。
屋上は普段の洗濯干しだけでなく、バーベキューなどもお楽しみ頂け、
淀川花火大会の時期には圧巻の景色を堪能できます。 |
| リフォーム履歴 |
- |
| リノベーション履歴 |
- |
| 瑕疵保証 |
- |
| 瑕疵保険 |
- |
| 評価・証明書 |
- |
| 備考 |
バルコニー:86.1m²
主要採光面:南西向き
|
| エネルギー消費性能 |
- |
| 断熱性能 |
- |
| 目安光熱費 |
- |
| バス・トイレ |
シャワールーム、トイレ2ヶ所 |
| キッチン |
アイランドキッチン、カウンターキッチン、3口以上コンロ |
| 設備・サービス |
ウォークインクローゼット、上水道、下水道、都市ガス、ビルトインエアコン、人感センサー付照明、ダウンライト、間接照明、照明器具、インターネット対応 |
| その他 |
- |
| 現況 |
空家 |
引渡可能時期 |
相談 |
| 物件番号 |
6977443562 |
仲介手数料 |
売買代金の3%+6万円 |
| 情報公開日 |
2025年5月8日 |
次回更新予定日 |
2025年12月18日 |
| ケータイ用バーコード |
- スマートフォンでこの物件を見る
- スマートフォンからもこの物件をご覧になれます。
|
※「-」と表示されている項目については、情報提供会社にご確認ください。
| 周辺施設 |
ファミリーマート西淀川柏里店 |
| 距離 |
50m |
| 周辺施設 |
ドラッグストアライフォート塚本店 |
| 距離 |
296m |
ここから簡単にお問い合わせをすることができます。
(SSLでの暗号化での送信を希望されるお客さまは
こちら
よりお問い合わせください)
お問い合わせを行う前に
「個人情報の取り扱いについて」を必ずお読みください。
「個人情報の取り扱いについて」に同意いただいた場合は「上記にご同意の上 確認画面へ進む」のボタンをクリックしてください。
個人情報の取り扱いについて
皆さまが送付された個人情報はアットホーム(株)のサーバを経由し、お問い合わせ先の不動産会社にメールまたはFAXにて転送されるためアットホーム(株)にも保管されます。アットホーム(株)で保管された個人情報の取り扱いについては、【こちら】をご覧ください。
また、本画面でご記入いただいた個人情報は、お問い合わせ先の不動産会社でも保管します。 お問い合わせ先の不動産会社が保管する個人情報の取り扱いについては、不動産会社に直接お問い合わせください。
兵庫県知事免許(1)第204530号 |
|---|
- 交通:
- 阪急神戸線/塚口駅 徒歩13分
- 兵庫県尼崎市南塚口町5丁目15-10 甲東プラザ1階
- TEL:
- 06-6426-6606
- FAX:
- 06-6426-6607
- 所属団体:
- (公社)全日本不動産協会会員不動産公正取引協議会加盟
取引態様:専属専任媒介  - 50105503
|
- スマートフォンで
この不動産会社を見る

|
- 提携サイト等より掲載されている物件情報につきましては、不動産会社詳細情報にリンクされていないものがあります。
- 物件に関するお問合せは、物件詳細ページの「情報提供会社」に表示されている不動産会社へ直接お願いいたします。
- 間取図は、現況を優先させていただきます。
- 映像は物件の一部を撮影したものです。物件の契約にあたっての最終判断はご自身の判断に基づいて行ってください。
- 仲介手数料について

アットホームは物件情報の適正化に努めております。
内容に誤りがある場合にはこちらへご連絡ください。