長崎県佐世保市日野町(大学駅)の一戸建て:物件詳細
交通 所在地 |
駅徒歩 |
価格 |
間取り 建物面積 |
土地面積 私道負担面積 |
物件種目 築年月 |
|
松浦鉄道西九州線/大学 [バス利用可] バス 10分 鹿子前入り口 停歩4分
長崎県佐世保市日野町
|
35分
|
3,120万円
|
3LDK
88.00m²
|
138.80m²
-
|
新築一戸建て
2026年3月
|
|
駐車場2台分、外断熱、天井高2.5M以上、バス1坪以上、2面採光、24時間換気システム、閑静な住宅街、オール電化、整形地
|
|
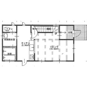
間取図
|
間取図
|
その他の画像
|
| 交通 | 松浦鉄道西九州線 大学駅 徒歩35分 [バス利用可] バス 10分 鹿子前入り口 停歩4分 |
|---|
| その他の交通 | 松浦鉄道西九州線 大学駅 徒歩35分 [バス利用可] バス 15分 鹿子前入り口 停歩4分 |
| 所在地 |
長崎県佐世保市日野町
|
| 物件種目 |
新築一戸建て |
| 価格 |
3,120万円 |
借地期間・地代(月額) |
- |
| 権利金 |
- |
敷金または保証金 |
- / - |
| 維持費等 |
- |
その他一時金 |
水道引き込み:495,000円、下水道受益者負担金:64,500円 |
| 間取り |
3LDK(洋 6・6・4.5 LDK 16) |
建物面積 |
88.00m² |
| 土地権利 |
所有権 |
建物構造 |
木造 |
| 土地面積 |
138.80m²(実測) |
私道負担面積 |
- |
| 築年月 |
2026年3月
|
都市計画 |
市街化区域 |
| 建物名 |
|
建築確認番号 |
第R05確認建築佐世保市00037号 |
| 用途地域 |
1種住居 |
駐車場 |
- |
| 建ぺい率 |
30% |
容積率 |
60% |
| 階建 |
2階建 |
接道状況 |
南西 4.5m 公道 接面3.0m
|
| 地目 |
宅地 |
地勢 |
平坦 |
| 国土法届出 |
- |
セットバック |
- |
| アピールポイント |
買い物に便利な平地に建つ家 |
| リフォーム履歴 |
- |
| リノベーション履歴 |
- |
| 瑕疵保証 |
- |
| 瑕疵保険 |
- |
| 評価・証明書 |
- |
| 備考 |
他所在地:70-6の一部、70-7の一部
主要採光面:南西向き
工事完了予定日:2025年3月
施工会社:株式会社モアプラン
建物契約後の着工になります。
|
| エネルギー消費性能 |
- |
| 断熱性能 |
- |
| 目安光熱費 |
- |
| バス・トイレ |
浴室暖房、浴室乾燥機、オートバス、追焚機能、高温差湯式、シャワー付洗面化粧台、温水洗浄便座、トイレ2ヶ所 |
| キッチン |
システムキッチン、食器洗浄乾燥機、浄水器、IHクッキングヒーター、3口以上コンロ、グリル |
| 設備・サービス |
全居室収納、クローゼット、床下収納、モニター付インターホン、ディンプルキー、シャッター雨戸、省エネ給湯器、全居室フローリング、上水道、電気、側溝、エアコン、人感センサー付照明、照明器具、火災警報器(報知機)、インターネット対応、BS端子、複層ガラス |
| その他 |
- |
| 現況 |
未着工 |
引渡可能時期 |
2026年8月下旬予定 |
| 物件番号 |
6979001288 |
仲介手数料 |
不要 |
| 情報公開日 |
2025年12月9日 |
次回更新予定日 |
2025年12月23日 |
| ケータイ用バーコード |
- スマートフォンでこの物件を見る
- スマートフォンからもこの物件をご覧になれます。
|
※「-」と表示されている項目については、情報提供会社にご確認ください。
| 周辺施設 |
OKホーム&ガーデン日野店 |
| 距離 |
276m |
ここから簡単にお問い合わせをすることができます。
(SSLでの暗号化での送信を希望されるお客さまは
こちら
よりお問い合わせください)
お問い合わせを行う前に
「個人情報の取り扱いについて」を必ずお読みください。
「個人情報の取り扱いについて」に同意いただいた場合は「上記にご同意の上 確認画面へ進む」のボタンをクリックしてください。
個人情報の取り扱いについて
皆さまが送付された個人情報はアットホーム(株)のサーバを経由し、お問い合わせ先の不動産会社にメールまたはFAXにて転送されるためアットホーム(株)にも保管されます。アットホーム(株)で保管された個人情報の取り扱いについては、【こちら】をご覧ください。
また、本画面でご記入いただいた個人情報は、お問い合わせ先の不動産会社でも保管します。 お問い合わせ先の不動産会社が保管する個人情報の取り扱いについては、不動産会社に直接お問い合わせください。
長崎県知事免許(7)第2954号 |
|---|
- 交通:
- 【バス】 高梨 停歩3分
- 長崎県佐世保市高梨町21-31
- TEL:
- 0956-22-1677
- FAX:
- 0956-22-1377
- 所属団体:
- (公社)長崎県宅地建物取引業協会会員(一社)九州不動産公正取引協議会加盟
取引態様:売主  - 80501176
|
- スマートフォンで
この不動産会社を見る

|
- 提携サイト等より掲載されている物件情報につきましては、不動産会社詳細情報にリンクされていないものがあります。
- 物件に関するお問合せは、物件詳細ページの「情報提供会社」に表示されている不動産会社へ直接お願いいたします。
- 間取図は、現況を優先させていただきます。
- 映像は物件の一部を撮影したものです。物件の契約にあたっての最終判断はご自身の判断に基づいて行ってください。
- 仲介手数料について

アットホームは物件情報の適正化に努めております。
内容に誤りがある場合にはこちらへご連絡ください。