岡山県倉敷市連島町鶴新田(三菱自工前駅)の一戸建て:物件詳細
交通 所在地 |
駅徒歩 |
価格 |
間取り 建物面積 |
土地面積 私道負担面積 |
物件種目 築年月 |
|
水島臨海鉄道/三菱自工前
岡山県倉敷市連島町鶴新田
|
30分
|
2,080万円
|
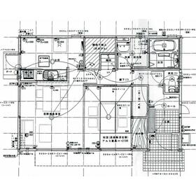
4SLDK
116.13m²
|
177.86m²
-
|
中古一戸建て
2005年3月(築20年10ヶ月)
|
|
駐車場3台分以上、外壁サイディング、バス1坪以上、2面採光、24時間換気システム、閑静な住宅街、区画整理地内、整形地、庭10坪以上
|
|
間取図
|
|
その他の画像
|
| 交通 | 水島臨海鉄道 三菱自工前駅 徒歩30分 |
| 所在地 |
岡山県倉敷市連島町鶴新田
|
| 物件種目 |
中古一戸建て |
| 価格 |
2,080万円 |
借地期間・地代(月額) |
- |
| 権利金 |
- |
敷金または保証金 |
- / - |
| 維持費等 |
- |
その他一時金 |
- |
| 間取り |
4SLDK |
建物面積 |
116.13m² |
| 土地権利 |
所有権 |
建物構造 |
木造 |
| 土地面積 |
177.86m²(公簿) |
私道負担面積 |
- |
| 築年月 |
2005年3月(築20年10ヶ月)
|
都市計画 |
市街化区域 |
| 建物名 |
|
建築確認番号 |
- |
| 用途地域 |
準工業 |
駐車場 |
- |
| 建ぺい率 |
60% |
容積率 |
200% |
| 階建 |
2階建 |
接道状況 |
南東 4.0m 私道 接面11.0m
|
| 地目 |
宅地 |
地勢 |
平坦 |
| 国土法届出 |
- |
セットバック |
- |
| アピールポイント |
広々とした延床面積116.13㎡の居室空間、更に大人も子供も広々遊べる10坪以上の庭有の住居だから、ちょっとした運動や遊びものびのび楽しめます。また閑静な住宅街の住戸で、その上眼下を見渡せるルーフバルコニー付なので、ビーチチェアひとつでリゾート気分を夢想できます。ちなみに食後お皿を下げるのもスムーズなカウンターキッチンです。家族というコミュニティを支える4SLDK。実際の空間をご自身で体感ください。太陽光も4.97Kw搭載されており、電気代も安くすみます。 |
| リフォーム履歴 |
■内装:2023年7月 床(フローリング等) クロス張替え ※実施年月は最も古い履歴を表示 |
| リノベーション履歴 |
- |
| 瑕疵保証 |
瑕疵保証(不動産会社独自)利用可 保証期間:2年 保証範囲:建物 |
| 瑕疵保険 |
- |
| 評価・証明書 |
- |
| 備考 |
主要採光面:南西向き
施工会社:ミサワホーム(株)
駐車スペース4台可。太陽光4.97Kw搭載。
|
| エネルギー消費性能 |
- |
| 断熱性能 |
- |
| 目安光熱費 |
- |
| バス・トイレ |
オートバス、追焚機能、シャワー付洗面化粧台、温水洗浄便座、トイレ2ヶ所 |
| キッチン |
カウンターキッチン、食器洗浄乾燥機、3口以上コンロ、ガスオーブン |
| 設備・サービス |
全居室収納、ウォークインクローゼット、エアコン2台以上、クローゼット、床下収納、モニター付インターホン、ディンプルキー、ダブルロックドア、上水道、下水道、プロパンガス、電気、側溝、庭、ルーフバルコニー、ダウンライト、照明器具、火災警報器(報知機)、複層ガラス |
| その他 |
- |
| 現況 |
空家 |
引渡可能時期 |
即時 |
| 物件番号 |
6979883840 |
仲介手数料 |
不要 |
| 情報公開日 |
2025年10月14日 |
次回更新予定日 |
2025年12月27日 |
| ケータイ用バーコード |
- スマートフォンでこの物件を見る
- スマートフォンからもこの物件をご覧になれます。
|
※「-」と表示されている項目については、情報提供会社にご確認ください。
| 周辺施設 |
公益財団法人大原記念倉敷中央医療機構倉敷中央病院リバーサイド |
| 距離 |
1836m |
| 周辺施設 |
ファミリーマート水島亀島店 |
| 距離 |
775m |
ここから簡単にお問い合わせをすることができます。
(SSLでの暗号化での送信を希望されるお客さまは
こちら
よりお問い合わせください)
お問い合わせを行う前に
「個人情報の取り扱いについて」を必ずお読みください。
「個人情報の取り扱いについて」に同意いただいた場合は「上記にご同意の上 確認画面へ進む」のボタンをクリックしてください。
個人情報の取り扱いについて
皆さまが送付された個人情報はアットホーム(株)のサーバを経由し、お問い合わせ先の不動産会社にメールまたはFAXにて転送されるためアットホーム(株)にも保管されます。アットホーム(株)で保管された個人情報の取り扱いについては、【こちら】をご覧ください。
また、本画面でご記入いただいた個人情報は、お問い合わせ先の不動産会社でも保管します。 お問い合わせ先の不動産会社が保管する個人情報の取り扱いについては、不動産会社に直接お問い合わせください。
広島県知事免許(7)第7926号 |
|---|
- 交通:
- 福塩線/府中駅 徒歩3分
- 広島県府中市府中町57-1
- TEL:
- 0847-54-2722
- FAX:
- 0847-54-2723
- 所属団体:
- (公社)広島県宅地建物取引業協会会員中国地区不動産公正取引協議会加盟
取引態様:売主  - 50026188
|
- スマートフォンで
この不動産会社を見る

|
- 提携サイト等より掲載されている物件情報につきましては、不動産会社詳細情報にリンクされていないものがあります。
- 物件に関するお問合せは、物件詳細ページの「情報提供会社」に表示されている不動産会社へ直接お願いいたします。
- 間取図は、現況を優先させていただきます。
- 映像は物件の一部を撮影したものです。物件の契約にあたっての最終判断はご自身の判断に基づいて行ってください。
- 仲介手数料について

アットホームは物件情報の適正化に努めております。
内容に誤りがある場合にはこちらへご連絡ください。