岡山県浅口市鴨方町鴨方(鴨方駅)の一戸建て:物件詳細
交通 所在地 |
駅徒歩 |
価格 |
間取り 建物面積 |
土地面積 私道負担面積 |
物件種目 築年月 |
|
JR山陽本線/鴨方
岡山県浅口市鴨方町鴨方
|
25分
|
3,180万円
|
3LDK
94.08m²
|
168.95m²
-
|
未入居一戸建て
2023年3月(築2年10ヶ月)
|
|
駐車場2台分、外壁サイディング、ハイサッシ採用、バス1坪以上、3面採光、24時間換気システム、吹抜、閑静な住宅街、オール電化、整形地
|
|
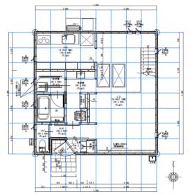
間取図
*1F*
|
外観
シンプルで四角い外観♪
|
<
その他の画像
>
|
| 交通 | JR山陽本線 鴨方駅 徒歩25分 |
| 所在地 |
岡山県浅口市鴨方町鴨方
|
| 物件種目 |
未入居一戸建て |
| 価格 |
3,180万円 |
借地期間・地代(月額) |
- |
| 権利金 |
- |
敷金または保証金 |
- / - |
| 維持費等 |
- |
その他一時金 |
- |
| 間取り |
3LDK(洋 7.5・6・6 LDK 20) |
建物面積 |
94.08m² |
| 土地権利 |
所有権 |
建物構造 |
木造 |
| 土地面積 |
168.95m² |
私道負担面積 |
- |
| 築年月 |
2023年3月(築2年10ヶ月)
|
都市計画 |
非線引区域 |
| 建物名 |
|
建築確認番号 |
- |
| 用途地域 |
- |
駐車場 |
有 無料 |
| 建ぺい率 |
60% |
容積率 |
200% |
| 階建 |
2階建 |
接道状況 |
南 6.0m 私道 位置指定有
|
| 地目 |
宅地 |
地勢 |
平坦 |
| 国土法届出 |
- |
セットバック |
- |
| アピールポイント |
女性ならではの気遣いときめ細かなサービスで、女性のお客様も気軽にご相談いただける不動産会社です♪
購入の相談だけではなく、購入前の疑問、不安などもお気軽にご相談下さい♪
ーーーーーーーー
■玄関から洗面室に直行できる間取りなので、帰宅後1番に手洗いできるのが嬉しいです!
■徒歩2分以内に、スーパーやコンビニ、ドラッグストアが揃う立地も魅了的!
■嬉しい照明器具付きです
■鴨方東小学校まで徒歩8分
■鴨方中学校まで徒歩12分(950m)
おしゃれなモデルハウスをぜひ見に来て下さい♪
★内覧ご希望の方は事前にご予約下さい★ |
| リフォーム履歴 |
- |
| リノベーション履歴 |
- |
| 瑕疵保証 |
- |
| 瑕疵保険 |
- |
| 評価・証明書 |
- |
| 備考 |
建築確認完了検査済証あり
|
| エネルギー消費性能 |
- |
| 断熱性能 |
- |
| 目安光熱費 |
- |
| バス・トイレ |
浴室暖房、浴室乾燥機、オートバス、追焚機能、温水洗浄便座、タンクレストイレ、トイレ2ヶ所 |
| キッチン |
システムキッチン、食器洗浄乾燥機、浄水器、IHクッキングヒーター、3口以上コンロ、グリル |
| 設備・サービス |
ウォークインクローゼット、クローゼット、モニター付インターホン、ダブルロックドア、省エネ給湯器、室内物干し、上水道、下水道、電気、側溝、シーリングファン、庭、ダウンライト、間接照明、照明器具、火災警報器(報知機)、複層ガラス |
| その他 |
- |
| 現況 |
完成済 |
引渡可能時期 |
即時 |
| 物件番号 |
6979909212 |
|
|
| 情報公開日 |
2023年8月27日 |
次回更新予定日 |
2025年12月25日 |
| ケータイ用バーコード |
- スマートフォンでこの物件を見る
- スマートフォンからもこの物件をご覧になれます。
|
※「-」と表示されている項目については、情報提供会社にご確認ください。
| 周辺施設 |
スーパードラッグひまわり鴨方店 |
| 距離 |
229m |
写真を見る |
| 周辺施設 |
浅口はちまん認定こども園 |
| 距離 |
187m |
写真を見る |
| 周辺施設 |
セブンイレブン鴨方インター店 |
| 距離 |
257m |
写真を見る |
| 周辺施設 |
ワッツウィズ鴨方コープ店 |
| 距離 |
419m |
写真を見る |
| 周辺施設 |
くすりのレデイ鴨方店 |
| 距離 |
361m |
写真を見る |
| 周辺施設 |
エネオスDr.Driveセルフ鴨方インター店 |
| 距離 |
369m |
写真を見る |
| 周辺施設 |
かもがた町家郵便局 |
| 距離 |
400m |
写真を見る |
ここから簡単にお問い合わせをすることができます。
(SSLでの暗号化での送信を希望されるお客さまは
こちら
よりお問い合わせください)
お問い合わせを行う前に
「個人情報の取り扱いについて」を必ずお読みください。
「個人情報の取り扱いについて」に同意いただいた場合は「上記にご同意の上 確認画面へ進む」のボタンをクリックしてください。
個人情報の取り扱いについて
皆さまが送付された個人情報はアットホーム(株)のサーバを経由し、お問い合わせ先の不動産会社にメールまたはFAXにて転送されるためアットホーム(株)にも保管されます。アットホーム(株)で保管された個人情報の取り扱いについては、【こちら】をご覧ください。
また、本画面でご記入いただいた個人情報は、お問い合わせ先の不動産会社でも保管します。 お問い合わせ先の不動産会社が保管する個人情報の取り扱いについては、不動産会社に直接お問い合わせください。
広島県知事免許(1)第11202号 |
|---|
- 交通:
- 【バス】 広瀬郵便局前 停歩1分
- 広島県福山市加茂町字北山215
- TEL:
- 084-999-3139
- 所属団体:
- (公社)広島県宅地建物取引業協会会員中国地区不動産公正取引協議会加盟
取引態様:媒介  - 50106644
|
- スマートフォンで
この不動産会社を見る

|
- 提携サイト等より掲載されている物件情報につきましては、不動産会社詳細情報にリンクされていないものがあります。
- 物件に関するお問合せは、物件詳細ページの「情報提供会社」に表示されている不動産会社へ直接お願いいたします。
- 間取図は、現況を優先させていただきます。
- 映像は物件の一部を撮影したものです。物件の契約にあたっての最終判断はご自身の判断に基づいて行ってください。
- 仲介手数料について

アットホームは物件情報の適正化に努めております。
内容に誤りがある場合にはこちらへご連絡ください。