岩手県盛岡市太田7丁目(盛岡駅)の一戸建て:物件詳細
交通 所在地 |
駅徒歩 |
価格 |
間取り 建物面積 |
土地面積 私道負担面積 |
物件種目 築年月 |
|
JR東北本線/盛岡
岩手県盛岡市太田7丁目
|
31分
|
3,980万円
|
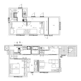
3LDK
100.19m²
|
208.00m²
-
|
未入居一戸建て
2024年1月(築2年2ヶ月)
|
|
駐車場2台分、南向き、2×6工法、バス1坪以上、24時間換気システム、閑静な住宅街、オール電化、区画整理地内、整形地
|
|
間取図
|
|
その他の画像
|
| 交通 | JR東北本線 盛岡駅 徒歩31分 |
| 所在地 |
岩手県盛岡市太田7丁目
|
| 物件種目 |
未入居一戸建て |
| 価格 |
3,980万円 |
借地期間・地代(月額) |
- |
| 権利金 |
- |
敷金または保証金 |
- / - |
| 維持費等 |
- |
その他一時金 |
- |
| 間取り |
3LDK(洋 5.2・5.2・6 LDK 15) |
建物面積 |
100.19m² |
| 土地権利 |
所有権 |
建物構造 |
木造 |
| 土地面積 |
208.00m²(公簿) |
私道負担面積 |
- |
| 築年月 |
2024年1月(築2年2ヶ月)
|
都市計画 |
市街化区域 |
| 建物名 |
|
建築確認番号 |
R05-1-0584-0号 |
| 用途地域 |
1種中高、1種住居 |
駐車場 |
- |
| 建ぺい率 |
60% |
容積率 |
200% |
| 階建 |
2階建 |
接道状況 |
東 9.0m 公道 接面10.0m
|
| 地目 |
宅地 |
地勢 |
平坦 |
| 国土法届出 |
- |
セットバック |
- |
| アピールポイント |
進化を続ける下太田地区の中心です。2×6工法!トリプルサッシ!食器洗浄乾燥機!寒冷地エアコン!どれをとっても一般的な建売住宅とは一線を画す高性能住宅です!注文住宅と同等の性能を是非ご体感ください。 |
| リフォーム履歴 |
- |
| リノベーション履歴 |
- |
| 瑕疵保証 |
- |
| 瑕疵保険 |
- |
| 評価・証明書 |
- |
| 備考 |
主要採光面:南向き
施工会社:株式会社小田島工務店
設備保証付
断熱等級5 一次エネルギー消費量等級6 住宅瑕疵担保責任保険・地盤保証・住宅設備機器保証加入
|
| エネルギー消費性能 |
- |
| 断熱性能 |
- |
| 目安光熱費 |
- |
| バス・トイレ |
オートバス、追焚機能、シャワー付洗面化粧台、温水洗浄便座、トイレ2ヶ所 |
| キッチン |
システムキッチン、食器洗浄乾燥機、IHクッキングヒーター、3口以上コンロ |
| 設備・サービス |
ウォークインクローゼット、クローゼット、モニター付インターホン、上水道、下水道、電気、エアコン、照明器具、火災警報器(報知機)、複層ガラス |
| その他 |
- |
| 現況 |
完成済 |
引渡可能時期 |
即時 |
| 物件番号 |
6980218607 |
仲介手数料 |
不要 |
| 情報公開日 |
2025年7月14日 |
次回更新予定日 |
2026年2月6日 |
| ケータイ用バーコード |
- スマートフォンでこの物件を見る
- スマートフォンからもこの物件をご覧になれます。
|
※「-」と表示されている項目については、情報提供会社にご確認ください。
| 周辺施設 |
ビッグハウスアイスアリーナ前店 |
| 距離 |
1124m |
| 周辺施設 |
社団医療法人啓愛会孝仁病院 |
| 距離 |
758m |
ここから簡単にお問い合わせをすることができます。
(SSLでの暗号化での送信を希望されるお客さまは
こちら
よりお問い合わせください)
お問い合わせを行う前に
「個人情報の取り扱いについて」を必ずお読みください。
「個人情報の取り扱いについて」に同意いただいた場合は「上記にご同意の上 確認画面へ進む」のボタンをクリックしてください。
個人情報の取り扱いについて
皆さまが送付された個人情報はアットホーム(株)のサーバを経由し、お問い合わせ先の不動産会社にメールまたはFAXにて転送されるためアットホーム(株)にも保管されます。アットホーム(株)で保管された個人情報の取り扱いについては、【こちら】をご覧ください。
また、本画面でご記入いただいた個人情報は、お問い合わせ先の不動産会社でも保管します。 お問い合わせ先の不動産会社が保管する個人情報の取り扱いについては、不動産会社に直接お問い合わせください。
岩手県知事免許(2)第2641号 |
|---|
- 交通:
- いわて銀河鉄道線/青山駅
- 岩手県盛岡市青山3丁目20-10
- TEL:
- 019-677-8544
- 所属団体:
- (公社)全日本不動産協会会員東北地区不動産公正取引協議会加盟
取引態様:一般媒介  - 20005851
|
- スマートフォンで
この不動産会社を見る

|
- 提携サイト等より掲載されている物件情報につきましては、不動産会社詳細情報にリンクされていないものがあります。
- 物件に関するお問合せは、物件詳細ページの「情報提供会社」に表示されている不動産会社へ直接お願いいたします。
- 間取図は、現況を優先させていただきます。
- 映像は物件の一部を撮影したものです。物件の契約にあたっての最終判断はご自身の判断に基づいて行ってください。
- 仲介手数料について

アットホームは物件情報の適正化に努めております。
内容に誤りがある場合にはこちらへご連絡ください。