佐賀県佐賀市日の出1丁目(佐賀駅)の一戸建て:物件詳細
交通 所在地 |
駅徒歩 |
価格 |
間取り 建物面積 |
土地面積 私道負担面積 |
物件種目 築年月 |
|
JR長崎本線/佐賀
佐賀県佐賀市日の出1丁目
|
22分
|
1,950万円
|
7DK
162.57m²
|
389.31m²
-
|
中古一戸建て
1973年11月(築52年2ヶ月)
|
|
南向き
|
|
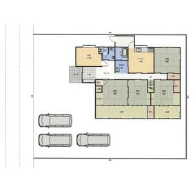
間取図
|
|
その他の画像
|
| 交通 | JR長崎本線 佐賀駅 徒歩22分 |
| 所在地 |
佐賀県佐賀市日の出1丁目
|
| 物件種目 |
中古一戸建て |
| 価格 |
1,950万円 |
借地期間・地代(月額) |
- |
| 権利金 |
- |
敷金または保証金 |
- / - |
| 維持費等 |
- |
その他一時金 |
- |
| 間取り |
7DK(和 8・8・6・6・6 洋 5.7・6.7 DK 8) |
建物面積 |
162.57m² |
| 土地権利 |
所有権 |
建物構造 |
木造 |
| 土地面積 |
389.31m²(公簿) |
私道負担面積 |
- |
| 築年月 |
1973年11月(築52年2ヶ月)
|
都市計画 |
市街化区域 |
| 建物名 |
|
建築確認番号 |
- |
| 用途地域 |
1種中高 |
駐車場 |
- |
| 建ぺい率 |
60% |
容積率 |
200% |
| 階建 |
2階建 |
接道状況 |
北 4.0m 公道 接面2.0m
|
| 地目 |
宅地 |
地勢 |
平坦 |
| 国土法届出 |
- |
セットバック |
- |
| リフォーム履歴 |
- |
| リノベーション履歴 |
- |
| 瑕疵保証 |
- |
| 瑕疵保険 |
- |
| 評価・証明書 |
- |
| 備考 |
主要採光面:南向き
|
| エネルギー消費性能 |
- |
| 断熱性能 |
- |
| 目安光熱費 |
- |
| バス・トイレ |
- |
| キッチン |
- |
| 設備・サービス |
- |
| その他 |
- |
| 現況 |
空家 |
引渡可能時期 |
相談 |
| 物件番号 |
6980899207 |
|
|
| 情報公開日 |
2024年4月18日 |
次回更新予定日 |
2025年12月22日 |
| ケータイ用バーコード |
- スマートフォンでこの物件を見る
- スマートフォンからもこの物件をご覧になれます。
|
※「-」と表示されている項目については、情報提供会社にご確認ください。
| 周辺施設 |
スーパーモリナガ高木瀬店 |
| 距離 |
390m |
| 周辺施設 |
西九州大学附属三光幼稚園 |
| 距離 |
1209m |
ここから簡単にお問い合わせをすることができます。
(SSLでの暗号化での送信を希望されるお客さまは
こちら
よりお問い合わせください)
お問い合わせを行う前に
「個人情報の取り扱いについて」を必ずお読みください。
「個人情報の取り扱いについて」に同意いただいた場合は「上記にご同意の上 確認画面へ進む」のボタンをクリックしてください。
個人情報の取り扱いについて
皆さまが送付された個人情報はアットホーム(株)のサーバを経由し、お問い合わせ先の不動産会社にメールまたはFAXにて転送されるためアットホーム(株)にも保管されます。アットホーム(株)で保管された個人情報の取り扱いについては、【こちら】をご覧ください。
また、本画面でご記入いただいた個人情報は、お問い合わせ先の不動産会社でも保管します。 お問い合わせ先の不動産会社が保管する個人情報の取り扱いについては、不動産会社に直接お問い合わせください。
佐賀県知事免許(2)第2451号 |
|---|
- 交通:
- 【バス】 佐賀大学南 停歩1分
- 佐賀県佐賀市本庄町大字本庄506-1 つるやビル
- TEL:
- 0952-97-7820
- FAX:
- 0952-97-7821
- 所属団体:
- (公社)全日本不動産協会会員(一社)九州不動産公正取引協議会加盟
取引態様:一般媒介  - 80502543
|
- スマートフォンで
この不動産会社を見る

|
- 提携サイト等より掲載されている物件情報につきましては、不動産会社詳細情報にリンクされていないものがあります。
- 物件に関するお問合せは、物件詳細ページの「情報提供会社」に表示されている不動産会社へ直接お願いいたします。
- 間取図は、現況を優先させていただきます。
- 映像は物件の一部を撮影したものです。物件の契約にあたっての最終判断はご自身の判断に基づいて行ってください。
- 仲介手数料について

アットホームは物件情報の適正化に努めております。
内容に誤りがある場合にはこちらへご連絡ください。