茨城県ひたちなか市大成町(勝田駅)の一戸建て:物件詳細
交通 所在地 |
駅徒歩 |
価格 |
間取り 建物面積 |
土地面積 私道負担面積 |
物件種目 築年月 |
|
JR常磐線/勝田
茨城県ひたちなか市大成町
|
25分
|
1,050万円
|
5DK
135.66m²
|
173.57m²
有 114.00m²(共有持分1/10)
|
中古一戸建て
1991年5月(築34年10ヶ月)
|
|
バス1坪以上、閑静な住宅街
|
|
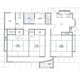
間取図
1階間取り
|
室内
一階和室
|
<
その他の画像
>
|
| 交通 | JR常磐線 勝田駅 徒歩25分 |
|---|
| その他の交通 | ひたちなか海浜鉄道 金上駅 徒歩13分 |
| 所在地 |
茨城県ひたちなか市大成町
|
| 物件種目 |
中古一戸建て |
| 価格 |
1,050万円 |
借地期間・地代(月額) |
- |
| 権利金 |
- |
敷金または保証金 |
- / - |
| 維持費等 |
- |
その他一時金 |
- |
| 間取り |
5DK(和 8・8・8・6 洋 8 DK 7.5) |
建物面積 |
135.66m² |
| 土地権利 |
所有権 |
建物構造 |
木造 |
| 土地面積 |
173.57m²(公簿) |
私道負担面積 |
有 114.00m²(共有持分1/10) |
| 築年月 |
1991年5月(築34年10ヶ月)
|
都市計画 |
市街化区域 |
| 建物名 |
|
建築確認番号 |
平成2年7月10日 第230号 |
| 用途地域 |
1種住居 |
駐車場 |
- |
| 建ぺい率 |
60% |
容積率 |
200% |
| 階建 |
2階建 |
接道状況 |
東 6.0m 公道 接面2.0m
|
| 地目 |
宅地 |
地勢 |
平坦 |
| 国土法届出 |
- |
セットバック |
- |
| リフォーム履歴 |
- |
| リノベーション履歴 |
- |
| 瑕疵保証 |
- |
| 瑕疵保険 |
- |
| 評価・証明書 |
- |
| 備考 |
駐車場1台
|
| エネルギー消費性能 |
- |
| 断熱性能 |
- |
| 目安光熱費 |
- |
| バス・トイレ |
トイレ2ヶ所、浴室に窓あり |
| キッチン |
- |
| 設備・サービス |
プロパンガス |
| その他 |
- |
| 現況 |
空家 |
引渡可能時期 |
即時 |
| 物件番号 |
6981092450 |
仲介手数料 |
売買代金の3%+6万円 |
| 情報公開日 |
2024年11月15日 |
次回更新予定日 |
2026年2月14日 |
| ケータイ用バーコード |
- スマートフォンでこの物件を見る
- スマートフォンからもこの物件をご覧になれます。
|
※「-」と表示されている項目については、情報提供会社にご確認ください。
| 周辺施設 |
ヨークベニマル大成店 |
| 距離 |
821m |
写真を見る |
| 周辺施設 |
セブンイレブンひたちなか長堀店 |
| 距離 |
760m |
写真を見る |
| 周辺施設 |
ひたちなか市立勝田第一中学校 |
| 距離 |
169m |
写真を見る |
| 周辺施設 |
ひたちなか市立長堀小学校 |
| 距離 |
570m |
写真を見る |
| 周辺施設 |
野いちご保育園 |
| 距離 |
780m |
写真を見る |
| 周辺施設 |
金上駅前郵便局 |
| 距離 |
1165m |
写真を見る |
| 周辺施設 |
常陽銀行ひたちなか支店 |
| 距離 |
1248m |
写真を見る |
| 周辺施設 |
ひたちなか市役所 |
| 距離 |
1423m |
写真を見る |
ここから簡単にお問い合わせをすることができます。
(SSLでの暗号化での送信を希望されるお客さまは
こちら
よりお問い合わせください)
お問い合わせを行う前に
「個人情報の取り扱いについて」を必ずお読みください。
「個人情報の取り扱いについて」に同意いただいた場合は「上記にご同意の上 確認画面へ進む」のボタンをクリックしてください。
個人情報の取り扱いについて
皆さまが送付された個人情報はアットホーム(株)のサーバを経由し、お問い合わせ先の不動産会社にメールまたはFAXにて転送されるためアットホーム(株)にも保管されます。アットホーム(株)で保管された個人情報の取り扱いについては、【こちら】をご覧ください。
また、本画面でご記入いただいた個人情報は、お問い合わせ先の不動産会社でも保管します。 お問い合わせ先の不動産会社が保管する個人情報の取り扱いについては、不動産会社に直接お問い合わせください。
茨城県知事免許(2)第7346号 |
|---|
- 交通:
- JR常磐線/勝田駅 徒歩10分
- 茨城県ひたちなか市東石川1丁目16-1
- TEL:
- 029-352-2815
- FAX:
- 029-352-2816
- 所属団体:
- (公社)全日本不動産協会会員(公社)首都圏不動産公正取引協議会加盟
取引態様:専任媒介  - 00270255
|
- スマートフォンで
この不動産会社を見る

|
- 提携サイト等より掲載されている物件情報につきましては、不動産会社詳細情報にリンクされていないものがあります。
- 物件に関するお問合せは、物件詳細ページの「情報提供会社」に表示されている不動産会社へ直接お願いいたします。
- 間取図は、現況を優先させていただきます。
- 映像は物件の一部を撮影したものです。物件の契約にあたっての最終判断はご自身の判断に基づいて行ってください。
- 仲介手数料について

アットホームは物件情報の適正化に努めております。
内容に誤りがある場合にはこちらへご連絡ください。