長崎県東彼杵郡東彼杵町中岳郷(千綿駅)の一戸建て:物件詳細
交通 所在地 |
駅徒歩 |
価格 |
間取り 建物面積 |
土地面積 私道負担面積 |
物件種目 築年月 |
|
JR大村線/千綿 [バス利用可] バス 鹿の丸バス停 停歩14分
長崎県東彼杵郡東彼杵町中岳郷
|
6000m
|
2,080万円
|
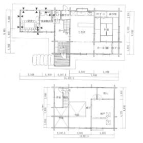
2SLDK
130.36m²
|
1,545.33m²
-
|
中古一戸建て
2002年6月(築23年7ヶ月)
|
|
駐車場3台分以上、バス1坪以上、吹抜、庭10坪以上
|
|
間取図
|
外観
|
<
その他の画像
>
|
| 交通 | JR大村線 千綿駅 徒歩6000m [バス利用可] バス 鹿の丸バス停 停歩14分 |
| 所在地 |
長崎県東彼杵郡東彼杵町中岳郷
|
| 物件種目 |
中古一戸建て |
| 価格 |
2,080万円 |
借地期間・地代(月額) |
- |
| 権利金 |
- |
敷金または保証金 |
- / - |
| 維持費等 |
- |
その他一時金 |
- |
| 間取り |
2SLDK(和 8 洋 5 LDK 14 S 3) |
建物面積 |
130.36m² |
| 土地権利 |
所有権 |
建物構造 |
木造 |
| 土地面積 |
1,545.33m²(公簿) |
私道負担面積 |
- |
| 築年月 |
2002年6月(築23年7ヶ月)
|
都市計画 |
非線引区域 |
| 建物名 |
東彼杵町中岳郷 売ログハウス |
建築確認番号 |
- |
| 用途地域 |
- |
駐車場 |
有 無料 |
| 建ぺい率 |
- |
容積率 |
- |
| 階建 |
2階建 |
接道状況 |
南東 6.0m 公道 接面75.9m
|
| 地目 |
- |
地勢 |
- |
| 国土法届出 |
- |
セットバック |
- |
| アピールポイント |
広々とした延床面積130.36㎡の居室空間、更に大人も子供も広々遊べる10坪以上の庭有の住居だから、朝一番の深呼吸も大きな伸びと共にリフレッシュ。またおしゃれな空間を演出する吹抜の居室空間で、その上湯船にゆったり浸かりながら疲れを癒やせる広さ1坪以上の浴室付だから、のびのびゆったり入浴できます。ちなみにプロパンガス仕様です。自然に団らんが生まれる2SLDK。ご案内いたしますのでお気軽にご連絡ください。 |
| リフォーム履歴 |
- |
| リノベーション履歴 |
- |
| 瑕疵保証 |
- |
| 瑕疵保険 |
- |
| 評価・証明書 |
- |
| 備考 |
主要採光面:南東向き
|
| エネルギー消費性能 |
- |
| 断熱性能 |
- |
| 目安光熱費 |
- |
| バス・トイレ |
汲取 |
| キッチン |
- |
| 設備・サービス |
上水道、プロパンガス |
| その他 |
- |
| 現況 |
所有者居住中 |
引渡可能時期 |
相談 |
| 物件番号 |
6982030351 |
仲介手数料 |
売買代金の3%+6万円 |
| 情報公開日 |
2025年12月17日 |
次回更新予定日 |
2025年12月31日 |
| ケータイ用バーコード |
- スマートフォンでこの物件を見る
- スマートフォンからもこの物件をご覧になれます。
|
※「-」と表示されている項目については、情報提供会社にご確認ください。
ここから簡単にお問い合わせをすることができます。
(SSLでの暗号化での送信を希望されるお客さまは
こちら
よりお問い合わせください)
お問い合わせを行う前に
「個人情報の取り扱いについて」を必ずお読みください。
「個人情報の取り扱いについて」に同意いただいた場合は「上記にご同意の上 確認画面へ進む」のボタンをクリックしてください。
個人情報の取り扱いについて
皆さまが送付された個人情報はアットホーム(株)のサーバを経由し、お問い合わせ先の不動産会社にメールまたはFAXにて転送されるためアットホーム(株)にも保管されます。アットホーム(株)で保管された個人情報の取り扱いについては、【こちら】をご覧ください。
また、本画面でご記入いただいた個人情報は、お問い合わせ先の不動産会社でも保管します。 お問い合わせ先の不動産会社が保管する個人情報の取り扱いについては、不動産会社に直接お問い合わせください。
長崎県知事免許(8)第2450号 |
|---|
- 交通:
- JR長崎本線/諫早駅 徒歩1分
- 長崎県諫早市永昌東町3-1
- TEL:
- 0957-24-2153
- FAX:
- 0957-23-7499
- 所属団体:
- (公社)長崎県宅地建物取引業協会会員(一社)九州不動産公正取引協議会加盟
取引態様:一般媒介  - 80500857
|
- スマートフォンで
この不動産会社を見る

|
- 提携サイト等より掲載されている物件情報につきましては、不動産会社詳細情報にリンクされていないものがあります。
- 物件に関するお問合せは、物件詳細ページの「情報提供会社」に表示されている不動産会社へ直接お願いいたします。
- 間取図は、現況を優先させていただきます。
- 映像は物件の一部を撮影したものです。物件の契約にあたっての最終判断はご自身の判断に基づいて行ってください。
- 仲介手数料について

アットホームは物件情報の適正化に努めております。
内容に誤りがある場合にはこちらへご連絡ください。