福島県郡山市田村町東山2丁目(磐城守山駅)の一戸建て:物件詳細
交通 所在地 |
駅徒歩 |
価格 |
間取り 建物面積 |
土地面積 私道負担面積 |
物件種目 築年月 |
|
JR水郡線/磐城守山
福島県郡山市田村町東山2丁目
|
29分
|
3,350万円
|
4LDK
119.24m²
|
216.78m²
なし
|
中古一戸建て
2016年8月(築9年5ヶ月)
|
|
駐車場3台分以上、南向き、外壁サイディング、2×4工法、バス1坪以上、24時間換気システム、吹抜、閑静な住宅街、オール電化、整形地、前面棟無、分譲地内
|
|
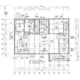
間取図
1階間取り図
|
外観
2台分のカーポートあり。カーポートには太陽光発電が搭載されてます。
|
<
その他の画像
>
|
| 交通 | JR水郡線 磐城守山駅 徒歩29分 |
| 所在地 |
福島県郡山市田村町東山2丁目
|
| 物件種目 |
中古一戸建て |
| 価格 |
3,350万円 |
借地期間・地代(月額) |
- |
| 権利金 |
- |
敷金または保証金 |
- / - |
| 維持費等 |
- |
その他一時金 |
- |
| 間取り |
4LDK(和 4.5 洋 7.7・6・6 LDK 18) |
建物面積 |
119.24m² |
| 土地権利 |
所有権 |
建物構造 |
木造 |
| 土地面積 |
216.78m²(公簿) |
私道負担面積 |
なし |
| 築年月 |
2016年8月(築9年5ヶ月)
|
都市計画 |
調整区域 |
| 建物名 |
|
建築確認番号 |
H27確認建築A.C01148号 |
| 用途地域 |
1種低層 |
駐車場 |
有 |
| 建ぺい率 |
50% |
容積率 |
80% |
| 階建 |
2階建 |
接道状況 |
南 6.0m 公道 接面13.5m
|
| 地目 |
宅地 |
地勢 |
平坦 |
| 国土法届出 |
- |
セットバック |
- |
| アピールポイント |
主要採光面:南向き
建築確認完了検査済証あり、新築時・増改築時の設計図書あり
◆築7年、アトラスハウス様施工の注文住宅です
◆吹き抜けのある開放的なリビングでゆっくり寛げます
◆スキップフロアはLDK全体を見渡せる素敵な空間です
◆リビングのテレビ裏,玄関,トイレの壁にはおしゃれなエコカラットを採用
◆おしゃれなカウンターキッチンで朝食やお茶会はいかがですか
◆オール電化でカーポートには太陽光発電が5.8kw、蓄電池も備え付けられているお財布や万が一にも安心できるシステムが完備
◆現在入居中です。ご案内の際は事前に日時を調整させていただきます
◆百聞は一見に如かず。御内覧可能ですので、ぜひお気軽にお問い合わせください。 |
| リフォーム履歴 |
- |
| リノベーション履歴 |
- |
| 瑕疵保証 |
- |
| 瑕疵保険 |
- |
| 評価・証明書 |
- |
| 備考 |
主要採光面:南向き
建築確認完了検査済証あり、新築時・増改築時の設計図書あり
主要採光面:南向き
建築確認完了検査済証あり、新築時・増改築時の設計図書あり
◆築7年、アトラスハウス様施工の注文住宅です
◆吹き抜けのある開放的なリビングでゆっくり寛げます
◆スキップフロアはLDK全体を見渡せる素敵な空間です
◆リビングのテレビ裏の壁にはおしゃれなエコカラットを採用
◆おしゃれなカウンターキッチンで朝食やお茶会はいかがですか
◆オール電化でカーポートには太陽光発電が5.8kw、蓄電池も備え付けられているお財布や万が一にも安心できるシステムが完備
◆現在入居中です。ご案内の際は事前に日時を調整させていただきます
◆百聞は一見に如かず。御内覧可能ですので、ぜひお気軽にお問い合わせください。
|
| エネルギー消費性能 |
- |
| 断熱性能 |
- |
| 目安光熱費 |
- |
| バス・トイレ |
浴室暖房、浴室乾燥機、追焚機能、シャワー付洗面化粧台、温水洗浄便座、タンクレストイレ、トイレ2ヶ所、浴室に窓あり |
| キッチン |
カウンターキッチン、オープンキッチン、システムキッチン、食器洗浄乾燥機、浄水器、IHクッキングヒーター、3口以上コンロ、グリル |
| 設備・サービス |
全居室収納、ウォークインクローゼット、太陽光発電システム、エアコン2台以上、シューズインクローゼット、クローゼット、床下収納、モニター付インターホン、ダブルロックドア、浄化槽、省エネ給湯器、室内物干し、上水道、電気、側溝、庭、人感センサー付照明、ダウンライト、照明器具、火災警報器(報知機)、蓄電池付き、複層ガラス |
| その他 |
- |
| 現況 |
所有者居住中 |
引渡可能時期 |
相談 |
| 物件番号 |
6982087377 |
仲介手数料 |
売買代金の3%+6万円 |
| 情報公開日 |
2025年12月2日 |
次回更新予定日 |
2025年12月16日 |
| ケータイ用バーコード |
- スマートフォンでこの物件を見る
- スマートフォンからもこの物件をご覧になれます。
|
※「-」と表示されている項目については、情報提供会社にご確認ください。
| 周辺施設 |
ファミリーマート郡山田村町守山店 |
| 距離 |
1662m |
| 周辺施設 |
ツルハドラッグ郡山守山店 |
| 距離 |
1669m |
| 周辺施設 |
JA福島さくら田村支店 |
| 距離 |
2721m |
ここから簡単にお問い合わせをすることができます。
(SSLでの暗号化での送信を希望されるお客さまは
こちら
よりお問い合わせください)
お問い合わせを行う前に
「個人情報の取り扱いについて」を必ずお読みください。
「個人情報の取り扱いについて」に同意いただいた場合は「上記にご同意の上 確認画面へ進む」のボタンをクリックしてください。
個人情報の取り扱いについて
皆さまが送付された個人情報はアットホーム(株)のサーバを経由し、お問い合わせ先の不動産会社にメールまたはFAXにて転送されるためアットホーム(株)にも保管されます。アットホーム(株)で保管された個人情報の取り扱いについては、【こちら】をご覧ください。
また、本画面でご記入いただいた個人情報は、お問い合わせ先の不動産会社でも保管します。 お問い合わせ先の不動産会社が保管する個人情報の取り扱いについては、不動産会社に直接お問い合わせください。
福島県知事免許(1)第3645号 |
|---|
- 交通:
- JR東北本線/須賀川駅 徒歩22分 【バス】8分 須賀川商工会館前 停歩3分
- 福島県須賀川市東町143-4 パールマンション107号
- TEL:
- 0248-94-8546
- FAX:
- 0248-94-8547
- 所属団体:
- (公社)福島県宅地建物取引業協会会員東北地区不動産公正取引協議会加盟
取引態様:一般媒介  - 20006902
|
- スマートフォンで
この不動産会社を見る

|
- 提携サイト等より掲載されている物件情報につきましては、不動産会社詳細情報にリンクされていないものがあります。
- 物件に関するお問合せは、物件詳細ページの「情報提供会社」に表示されている不動産会社へ直接お願いいたします。
- 間取図は、現況を優先させていただきます。
- 映像は物件の一部を撮影したものです。物件の契約にあたっての最終判断はご自身の判断に基づいて行ってください。
- 仲介手数料について

アットホームは物件情報の適正化に努めております。
内容に誤りがある場合にはこちらへご連絡ください。