富山県富山市豊田本町3丁目(新富山口駅)の一戸建て:物件詳細
交通 所在地 |
駅徒歩 |
価格 |
間取り 建物面積 |
土地面積 私道負担面積 |
物件種目 築年月 |
|
あいの風とやま鉄道/新富山口
富山県富山市豊田本町3丁目
|
15分
|
2,200万円
|
5LDK
136.87m²
|
258.93m²
なし
|
中古一戸建て
1988年3月(築38年1ヶ月)
|
|
駐車場3台分以上、バス1坪以上、閑静な住宅街
|
|
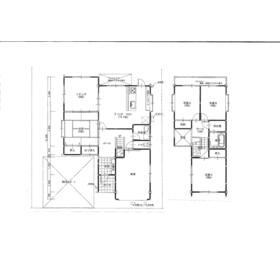
間取図
|
|
<
その他の画像
>
|
| 交通 | あいの風とやま鉄道 新富山口駅 徒歩15分 |
| 所在地 |
富山県富山市豊田本町3丁目
|
| 物件種目 |
中古一戸建て |
| 価格 |
2,200万円 |
借地期間・地代(月額) |
- |
| 権利金 |
- |
敷金または保証金 |
- / - |
| 維持費等 |
- |
その他一時金 |
- |
| 間取り |
5LDK(和 8 洋 8・6・6・6) |
建物面積 |
136.87m² |
| 土地権利 |
所有権 |
建物構造 |
木造 |
| 土地面積 |
258.93m²(公簿) |
私道負担面積 |
なし |
| 築年月 |
1988年3月(築38年1ヶ月)
|
都市計画 |
市街化区域 |
| 建物名 |
|
建築確認番号 |
- |
| 用途地域 |
準工業 |
駐車場 |
- |
| 建ぺい率 |
60% |
容積率 |
200% |
| 階建 |
2階建 |
接道状況 |
北 5.0m 接面14.0m
|
| 地目 |
宅地 |
地勢 |
平坦 |
| 国土法届出 |
- |
セットバック |
- |
| アピールポイント |
全室、高気密内窓施工 エアコン新設 閑静な住宅街土地広め78坪 ガレージ付リフォーム住宅 前面融雪道路 |
| リフォーム履歴 |
■水回り:2025年4月 キッチン、浴室、トイレ、洗面所、給湯器 ■内装:2025年4月 床(フローリング等)、壁・天井(クロス・塗装等)、建具(室内ドア等)、サッシ 高気密断熱内窓を全室に施工 リビング ダイニングにエアコン新設 ■外装:2025年4月 外壁 ※実施年月は最も古い履歴を表示 |
| リノベーション履歴 |
- |
| 瑕疵保証 |
- |
| 瑕疵保険 |
- |
| 評価・証明書 |
- |
| 備考 |
設備保証付
全室 高気密内窓施工 エアコン新設 閑静な住宅街土地広め78坪 ガレージ付リフォーム住宅 前面融雪道路
|
| エネルギー消費性能 |
- |
| 断熱性能 |
- |
| 目安光熱費 |
- |
| バス・トイレ |
追焚機能、温水洗浄便座 |
| キッチン |
カウンターキッチン、システムキッチン、3口以上コンロ |
| 設備・サービス |
エアコン2台以上、モニター付インターホン、ディンプルキー、省エネ給湯器、上水道、下水道、電気、エアコン、ダウンライト、照明器具、複層ガラス |
| その他 |
- |
| 現況 |
空家 |
引渡可能時期 |
相談 |
| 物件番号 |
6982651720 |
|
|
| 情報公開日 |
2025年8月18日 |
次回更新予定日 |
2026年3月24日 |
| ケータイ用バーコード |
- スマートフォンでこの物件を見る
- スマートフォンからもこの物件をご覧になれます。
|
※「-」と表示されている項目については、情報提供会社にご確認ください。
ここから簡単にお問い合わせをすることができます。
(SSLでの暗号化での送信を希望されるお客さまは
こちら
よりお問い合わせください)
お問い合わせを行う前に
「個人情報の取り扱いについて」を必ずお読みください。
「個人情報の取り扱いについて」に同意いただいた場合は「上記にご同意の上 確認画面へ進む」のボタンをクリックしてください。
個人情報の取り扱いについて
皆さまが送付された個人情報はアットホーム(株)のサーバを経由し、お問い合わせ先の不動産会社にメールまたはFAXにて転送されるためアットホーム(株)にも保管されます。アットホーム(株)で保管された個人情報の取り扱いについては、【こちら】をご覧ください。
また、本画面でご記入いただいた個人情報は、お問い合わせ先の不動産会社でも保管します。 お問い合わせ先の不動産会社が保管する個人情報の取り扱いについては、不動産会社に直接お問い合わせください。
富山県知事免許(1)第3176号 |
|---|
- 交通:
- 高山本線/婦中鵜坂駅
- 富山県富山市婦中町上田島52-3
- TEL:
- 076-466-3091
- FAX:
- 076-466-3326
- 所属団体:
- (公社)全日本不動産協会会員北陸不動産公正取引協議会加盟
取引態様:売主  - 40409620
|
- スマートフォンで
この不動産会社を見る

|
- 提携サイト等より掲載されている物件情報につきましては、不動産会社詳細情報にリンクされていないものがあります。
- 物件に関するお問合せは、物件詳細ページの「情報提供会社」に表示されている不動産会社へ直接お願いいたします。
- 間取図は、現況を優先させていただきます。
- 映像は物件の一部を撮影したものです。物件の契約にあたっての最終判断はご自身の判断に基づいて行ってください。
- 仲介手数料について

アットホームは物件情報の適正化に努めております。
内容に誤りがある場合にはこちらへご連絡ください。