宮城県刈田郡蔵王町遠刈田温泉字小妻坂(白石蔵王駅)の一戸建て:物件詳細
交通 所在地 |
駅徒歩 |
価格 |
間取り 建物面積 |
土地面積 私道負担面積 |
物件種目 築年月 |
|
東北新幹線/白石蔵王 【バス】30分 小妻坂 停歩10分
宮城県刈田郡蔵王町遠刈田温泉字小妻坂
|
-
|
2,190万円
|
3SLDK
127.10m²
|
435.00m²
有 1,562.00m²(共有持分1/500)
|
中古一戸建て
2013年8月(築12年10ヶ月)
|
|
デザイナーズ、駐車場3台分以上、南向き、高気密高断熱住宅、バス1坪以上、全室2面採光、24時間換気システム、吹抜、閑静な住宅街、庭10坪以上、前面棟無、隣接建物距離2m以上
|
|
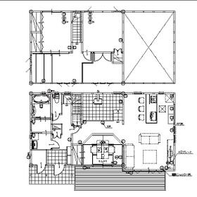
間取図
|
外観
|
<
その他の画像
>
|
| 交通 | 東北新幹線 白石蔵王駅 【バス】 30分 小妻坂 停歩10分 |
| 所在地 |
宮城県刈田郡蔵王町遠刈田温泉字小妻坂
|
| 物件種目 |
中古一戸建て |
| 価格 |
2,190万円 |
借地期間・地代(月額) |
- |
| 権利金 |
- |
敷金または保証金 |
- / - |
| 維持費等 |
- |
その他一時金 |
- |
| 間取り |
3SLDK(和 5 洋 6・8 LDK 22 S 7) |
建物面積 |
127.10m² |
| 土地権利 |
所有権 |
建物構造 |
木造 |
| 土地面積 |
435.00m²(公簿) |
私道負担面積 |
有 1,562.00m²(共有持分1/500) |
| 築年月 |
2013年8月(築12年10ヶ月)
|
都市計画 |
非線引区域 |
| 建物名 |
|
建築確認番号 |
第H25確認建築宮城建住00506号 |
| 用途地域 |
無指定 |
駐車場 |
- |
| 建ぺい率 |
20% |
容積率 |
60% |
| 階建 |
2階建 |
接道状況 |
西 4.5m 私道 位置指定有 接面16.0m
|
| 地目 |
山林 |
地勢 |
平坦 |
| 国土法届出 |
- |
セットバック |
- |
| アピールポイント |
〇〇アピールポイント〇〇
・内装はもちろん照明器具にまでこだわったデザイナーズリゾートハウス
・別荘暮らしの醍醐味「薪ストーブ」がある家。
・リビングは大きなサッシでウッドデッキと繋がります(電動シャッター付き)
・ウレタン吹付断熱を採用した高気密高断熱のお家です。
・温泉引き込み済み、1.25坪広々浴室
・2階セカンドリビングは多目的スペースとして重宝します。
・吹き抜け+インテリアファンで雰囲気がでている小上がり和室。
・とにかく広いLDK
・人造大理石トップのペニンシュラキッチン
・各部屋エアコン付き
・外から使えるトランクスペースはバーベキューセットやエクステリア用品の収納に便利です
・別荘として使用していたため、傷汚れ少なく、コンディション良好です。
〇 内覧随時お受付中(要予約) 〇
日時はもちろん、交通手段もご相談いただけます。お気軽にご連絡ください。 |
| リフォーム履歴 |
- |
| リノベーション履歴 |
- |
| 瑕疵保証 |
瑕疵保証(不動産会社独自)付 保証期間:2年 保証範囲:建物 保証料:買主負担なし |
| 瑕疵保険 |
- |
| 評価・証明書 |
- |
| 備考 |
主要採光面:南向き
設備保証付
建築確認完了検査済証あり、新築時・増改築時の設計図書あり
温泉あり ■引込状況:引込み済 ■利用形態:かけ流し 加温
|
| エネルギー消費性能 |
- |
| 断熱性能 |
- |
| 目安光熱費 |
- |
| バス・トイレ |
オートバス、追焚機能、高温差湯式、シャワー付洗面化粧台、温水洗浄便座、浴室に窓あり |
| キッチン |
カウンターキッチン、オープンキッチン、IHクッキングヒーター |
| 設備・サービス |
全居室収納、エアコン2台以上、クローゼット、ディンプルキー、ダブルロックドア、電動シャッター、シャッター雨戸、室内物干し、上水道、下水道、プロパンガス、エアコン、庭、ウッドデッキ、ダウンライト、照明器具、火災警報器(報知機)、BS端子、複層ガラス、Low-E ガラス |
| その他 |
- |
| 現況 |
空家 |
引渡可能時期 |
即時 |
| 物件番号 |
6982676976 |
|
|
| 情報公開日 |
2025年11月16日 |
次回更新予定日 |
2026年5月16日 |
| ケータイ用バーコード |
- スマートフォンでこの物件を見る
- スマートフォンからもこの物件をご覧になれます。
|
※「-」と表示されている項目については、情報提供会社にご確認ください。
| 周辺施設 |
ファミリーマート蔵王遠刈田店 |
| 距離 |
1990m |
写真を見る |
| 周辺施設 |
みやぎ蔵王こけし館駐車場 |
| 距離 |
2845m |
ここから簡単にお問い合わせをすることができます。
(SSLでの暗号化での送信を希望されるお客さまは
こちら
よりお問い合わせください)
お問い合わせを行う前に
「個人情報の取り扱いについて」を必ずお読みください。
「個人情報の取り扱いについて」に同意いただいた場合は「上記にご同意の上 確認画面へ進む」のボタンをクリックしてください。
個人情報の取り扱いについて
皆さまが送付された個人情報はアットホーム(株)のサーバを経由し、お問い合わせ先の不動産会社にメールまたはFAXにて転送されるためアットホーム(株)にも保管されます。アットホーム(株)で保管された個人情報の取り扱いについては、【こちら】をご覧ください。
また、本画面でご記入いただいた個人情報は、お問い合わせ先の不動産会社でも保管します。 お問い合わせ先の不動産会社が保管する個人情報の取り扱いについては、不動産会社に直接お問い合わせください。
宮城県知事免許(4)第5415号 |
|---|
- 宮城県仙台市若林区六丁目字赤沼4-17
- TEL:
- 022-385-5871
- FAX:
- 022-385-5872
- 所属団体:
- (公社)全日本不動産協会会員東北地区不動産公正取引協議会加盟
取引態様:媒介  - 20002671
|
- スマートフォンで
この不動産会社を見る

|
- 提携サイト等より掲載されている物件情報につきましては、不動産会社詳細情報にリンクされていないものがあります。
- 物件に関するお問合せは、物件詳細ページの「情報提供会社」に表示されている不動産会社へ直接お願いいたします。
- 間取図は、現況を優先させていただきます。
- 映像は物件の一部を撮影したものです。物件の契約にあたっての最終判断はご自身の判断に基づいて行ってください。
- 仲介手数料について

アットホームは物件情報の適正化に努めております。
内容に誤りがある場合にはこちらへご連絡ください。