神奈川県横須賀市小原台(浦賀駅)の一戸建て:物件詳細
交通 所在地 |
駅徒歩 |
価格 |
間取り 建物面積 |
土地面積 私道負担面積 |
物件種目 築年月 |
|
京急本線/浦賀
神奈川県横須賀市小原台
|
20分
|
2,890万円
|
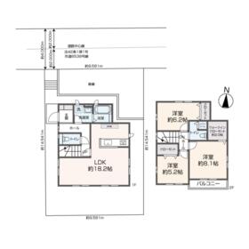
3LDK
94.60m²
|
139.31m²
なし
|
中古一戸建て
2020年6月(築5年6ヶ月)
|
|
駐車場2台分、南向き、バス1坪以上、全室2面採光、3面採光、バリアフリー、閑静な住宅街、整形地
|
|
間取図
|
外観
|
<
その他の画像
>
|
|
|
| 交通 | 京急本線 浦賀駅 徒歩20分 |
|---|
| その他の交通 | 京急本線 馬堀海岸駅 徒歩33分 |
| 所在地 |
神奈川県横須賀市小原台
|
| 物件種目 |
中古一戸建て |
| 価格 |
2,890万円 |
借地期間・地代(月額) |
- |
| 権利金 |
- |
敷金または保証金 |
- / - |
| 維持費等 |
- |
その他一時金 |
- |
| 間取り |
3LDK(洋 8.1・6.2・5.2 LDK 18.2) |
建物面積 |
94.60m² |
| 土地権利 |
所有権 |
建物構造 |
木造 |
| 土地面積 |
139.31m²(公簿) |
私道負担面積 |
なし |
| 築年月 |
2020年6月(築5年6ヶ月)
|
都市計画 |
市街化区域 |
| 建物名 |
|
建築確認番号 |
- |
| 用途地域 |
1種低層 |
駐車場 |
- |
| 建ぺい率 |
40% |
容積率 |
80% |
| 階建 |
2階建 |
接道状況 |
北 4.0m 公道 接面9.5m
|
| 地目 |
宅地 |
地勢 |
高台 |
| 国土法届出 |
- |
セットバック |
- |
| アピールポイント |
閑静な住宅街の住戸、更に心にゆとりを与える庭有の住戸なので、アウトドアのある暮らしが叶います。また広々とした延床面積94.6㎡の居室空間で、その上システムキッチンなので、日々のお料理が楽しくはかどります。ちなみに夕食を作りながら翌日のお弁当も作れるコンロ3口以上付です。家族の安心拠点になる3LDK。是非見学にお越しください。 |
| リフォーム履歴 |
- |
| リノベーション履歴 |
- |
| 瑕疵保証 |
- |
| 瑕疵保険 |
- |
| 評価・証明書 |
- |
| 備考 |
主要採光面:南向き
|
| エネルギー消費性能 |
- |
| 断熱性能 |
- |
| 目安光熱費 |
- |
| バス・トイレ |
浴室暖房、浴室乾燥機、オートバス、追焚機能、シャワー付洗面化粧台、シャワールーム、温水洗浄便座、トイレ2ヶ所、浴室に窓あり |
| キッチン |
カウンターキッチン、システムキッチン、食器洗浄乾燥機、浄水器、3口以上コンロ、グリル |
| 設備・サービス |
全居室収納、ウォークインクローゼット、クローゼット、床下収納、モニター付インターホン、ダブルロックドア、シャッター雨戸、全居室フローリング、上水道、下水道、プロパンガス、電気、エアコン、庭、ダウンライト、照明器具、火災警報器(報知機)、複層ガラス、Low-E ガラス |
| その他 |
- |
| 現況 |
空家 |
引渡可能時期 |
相談 |
| 物件番号 |
6982677020 |
|
|
| 情報公開日 |
2024年6月17日 |
次回更新予定日 |
2025年11月16日 |
| ケータイ用バーコード |
- スマートフォンでこの物件を見る
- スマートフォンからもこの物件をご覧になれます。
|
※「-」と表示されている項目については、情報提供会社にご確認ください。
| 周辺施設 |
ローソン・スリーエフ横須賀鴨居店 |
| 距離 |
916m |
| 周辺施設 |
クリエイトエス・ディー新横須賀鴨居店 |
| 距離 |
1025m |
ここから簡単にお問い合わせをすることができます。
(SSLでの暗号化での送信を希望されるお客さまは
こちら
よりお問い合わせください)
お問い合わせを行う前に
「個人情報の取り扱いについて」を必ずお読みください。
「個人情報の取り扱いについて」に同意いただいた場合は「上記にご同意の上 確認画面へ進む」のボタンをクリックしてください。
個人情報の取り扱いについて
皆さまが送付された個人情報はアットホーム(株)のサーバを経由し、お問い合わせ先の不動産会社にメールまたはFAXにて転送されるためアットホーム(株)にも保管されます。アットホーム(株)で保管された個人情報の取り扱いについては、【こちら】をご覧ください。
また、本画面でご記入いただいた個人情報は、お問い合わせ先の不動産会社でも保管します。 お問い合わせ先の不動産会社が保管する個人情報の取り扱いについては、不動産会社に直接お問い合わせください。
神奈川県知事免許(1)第31470号 |
|---|
- 交通:
- 横浜高速鉄道みなとみらい線/馬車道駅 徒歩4分
- 神奈川県横浜市中区太田町6丁目79 アブソルート横濱馬車道ビル203
- TEL:
- 045-307-4939
- 所属団体:
- (公社)全日本不動産協会会員(公社)首都圏不動産公正取引協議会加盟
取引態様:専任媒介  - 00271629
|
- スマートフォンで
この不動産会社を見る

|
- 提携サイト等より掲載されている物件情報につきましては、不動産会社詳細情報にリンクされていないものがあります。
- 物件に関するお問合せは、物件詳細ページの「情報提供会社」に表示されている不動産会社へ直接お願いいたします。
- 間取図は、現況を優先させていただきます。
- 映像は物件の一部を撮影したものです。物件の契約にあたっての最終判断はご自身の判断に基づいて行ってください。
- 仲介手数料について

アットホームは物件情報の適正化に努めております。
内容に誤りがある場合にはこちらへご連絡ください。