広島県安芸郡府中町青崎東(向洋駅)の一戸建て:物件詳細
交通 所在地 |
駅徒歩 |
価格 |
間取り 建物面積 |
土地面積 私道負担面積 |
物件種目 築年月 |
|
JR山陽本線/向洋
広島県安芸郡府中町青崎東
|
15分
|
3,480万円
|
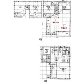
2LDK
81.10m²
|
90.04m²
有 12.14m²
|
中古一戸建て
2012年9月(築13年4ヶ月)
|
|
駐車場2台分、バス1坪以上、2面採光、オール電化
|
|
間取図
|
外観
|
<
その他の画像
>
|
| 交通 | JR山陽本線 向洋駅 徒歩15分 |
| 所在地 |
広島県安芸郡府中町青崎東
|
| 物件種目 |
中古一戸建て |
| 価格 |
3,480万円 |
借地期間・地代(月額) |
- |
| 権利金 |
- |
敷金または保証金 |
- / - |
| 維持費等 |
- |
その他一時金 |
- |
| 間取り |
2LDK(洋 7・5 LDK 14) |
建物面積 |
81.10m² |
| 土地権利 |
所有権 |
建物構造 |
木造 |
| 土地面積 |
90.04m²(公簿) |
私道負担面積 |
有 12.14m² |
| 築年月 |
2012年9月(築13年4ヶ月)
|
都市計画 |
市街化区域 |
| 建物名 |
安芸郡府中町青崎東(向洋駅) |
建築確認番号 |
- |
| 用途地域 |
1種住居 |
駐車場 |
有 無料 |
| 建ぺい率 |
60% |
容積率 |
200% |
| 階建 |
2階建 |
接道状況 |
南西 3.0m 私道
|
| 地目 |
宅地 |
地勢 |
平坦 |
| 国土法届出 |
- |
セットバック |
済 |
| アピールポイント |
コンロやシンクがセットされたシステムキッチン付、更にソーラーパワーの太陽光発電システムは尽きることのないお天道様の恵みを生活に取り入れます。ちなみにエコ意識が自然と高まるオール電化仕様です。家族が帰宅を焦がれる2LDK。是非その目でお確かめください。 |
| リフォーム履歴 |
- |
| リノベーション履歴 |
- |
| 瑕疵保証 |
- |
| 瑕疵保険 |
- |
| 評価・証明書 |
- |
| 備考 |
主要採光面:南西向き
|
| エネルギー消費性能 |
- |
| 断熱性能 |
- |
| 目安光熱費 |
- |
| バス・トイレ |
浴室乾燥機、追焚機能、シャワー付洗面化粧台、温水洗浄便座、浴室に窓あり |
| キッチン |
システムキッチン、IHクッキングヒーター |
| 設備・サービス |
全居室収納、ウォークインクローゼット、太陽光発電システム、モニター付インターホン、ダブルロックドア、省エネ給湯器、全居室フローリング、エアコン、ルーフバルコニー、ダウンライト、照明器具 |
| その他 |
- |
| 現況 |
空家 |
引渡可能時期 |
相談 |
| 物件番号 |
6982734093 |
|
|
| 情報公開日 |
2025年5月13日 |
次回更新予定日 |
2025年12月24日 |
| ケータイ用バーコード |
- スマートフォンでこの物件を見る
- スマートフォンからもこの物件をご覧になれます。
|
※「-」と表示されている項目については、情報提供会社にご確認ください。
ここから簡単にお問い合わせをすることができます。
(SSLでの暗号化での送信を希望されるお客さまは
こちら
よりお問い合わせください)
お問い合わせを行う前に
「個人情報の取り扱いについて」を必ずお読みください。
「個人情報の取り扱いについて」に同意いただいた場合は「上記にご同意の上 確認画面へ進む」のボタンをクリックしてください。
個人情報の取り扱いについて
皆さまが送付された個人情報はアットホーム(株)のサーバを経由し、お問い合わせ先の不動産会社にメールまたはFAXにて転送されるためアットホーム(株)にも保管されます。アットホーム(株)で保管された個人情報の取り扱いについては、【こちら】をご覧ください。
また、本画面でご記入いただいた個人情報は、お問い合わせ先の不動産会社でも保管します。 お問い合わせ先の不動産会社が保管する個人情報の取り扱いについては、不動産会社に直接お問い合わせください。
広島県知事免許(2)第10853号 |
|---|
- 交通:
- JR山陽本線/廿日市駅
- 広島県廿日市市宮内917-13 サクマビル2F
- TEL:
- 0829-30-9576
- 所属団体:
- (公社)広島県宅地建物取引業協会会員中国地区不動産公正取引協議会加盟
取引態様:一般媒介  - 50106076
|
- スマートフォンで
この不動産会社を見る

|
- 提携サイト等より掲載されている物件情報につきましては、不動産会社詳細情報にリンクされていないものがあります。
- 物件に関するお問合せは、物件詳細ページの「情報提供会社」に表示されている不動産会社へ直接お願いいたします。
- 間取図は、現況を優先させていただきます。
- 映像は物件の一部を撮影したものです。物件の契約にあたっての最終判断はご自身の判断に基づいて行ってください。
- 仲介手数料について

アットホームは物件情報の適正化に努めております。
内容に誤りがある場合にはこちらへご連絡ください。