福岡県直方市大字上新入(筑豊直方駅)の一戸建て:物件詳細
交通 所在地 |
駅徒歩 |
価格 |
間取り 建物面積 |
土地面積 私道負担面積 |
物件種目 築年月 |
|
筑豊電気鉄道/筑豊直方
福岡県直方市大字上新入
|
10分
|
750万円
|
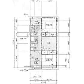
3DK
85.14m²
|
333.01m²
なし
|
中古一戸建て
1997年8月(築28年5ヶ月)
|
|
バス1坪以上、庭10坪以上
|
|
間取図
|
外観
目に入るだけでホッとする、そんな家に暮らしたい
|
<
その他の画像
>
|
| 交通 | 筑豊電気鉄道 筑豊直方駅 徒歩10分 |
|---|
| その他の交通 | JR筑豊本線 直方駅 徒歩13分 平成筑豊鉄道 直方駅 徒歩14分 |
| 所在地 |
福岡県直方市大字上新入
|
| 物件種目 |
中古一戸建て |
| 価格 |
750万円 |
借地期間・地代(月額) |
- |
| 権利金 |
- |
敷金または保証金 |
- / - |
| 維持費等 |
- |
その他一時金 |
- |
| 間取り |
3DK(和 6・8 洋 8.8) |
建物面積 |
85.14m² |
| 土地権利 |
所有権 |
建物構造 |
木造 |
| 土地面積 |
333.01m²(公簿) |
私道負担面積 |
なし |
| 築年月 |
1997年8月(築28年5ヶ月)
|
都市計画 |
市街化区域 |
| 建物名 |
|
建築確認番号 |
第H08認建直土000719号 |
| 用途地域 |
1種住居 |
駐車場 |
有 無料 |
| 建ぺい率 |
60% |
容積率 |
200% |
| 階建 |
平屋建 |
接道状況 |
北西 3.3m 公道 接面18.5m
|
| 地目 |
宅地 |
地勢 |
- |
| 国土法届出 |
- |
セットバック |
済 |
| アピールポイント |
広々とした延床面積175.0㎡の居室空間のみならず、ワンフロアでゆったり暮らせる平屋だから、階段部の余計なスペースがなく空間を効率的に使えます。家族の安心拠点になる3DK。ご案内いたしますのでお気軽にご連絡ください。 |
| リフォーム履歴 |
- |
| リノベーション履歴 |
- |
| 瑕疵保証 |
- |
| 瑕疵保険 |
- |
| 評価・証明書 |
- |
| 備考 |
主要採光面:南東向き
施工会社:松井建設
修繕・点検の記録あり
【広告有効期限】2024年9月30日
|
| エネルギー消費性能 |
- |
| 断熱性能 |
- |
| 目安光熱費 |
- |
| バス・トイレ |
汲取、浴室に窓あり |
| キッチン |
- |
| 設備・サービス |
全居室収納、エアコン2台以上、クローゼット、床下収納、上水道、都市ガス、電気、庭、縁側、照明器具 |
| その他 |
- |
| 現況 |
空家 |
引渡可能時期 |
相談 |
| 物件番号 |
6983045003 |
|
|
| 情報公開日 |
2024年9月13日 |
次回更新予定日 |
2025年12月30日 |
| ケータイ用バーコード |
- スマートフォンでこの物件を見る
- スマートフォンからもこの物件をご覧になれます。
|
※「-」と表示されている項目については、情報提供会社にご確認ください。
| 周辺施設 |
セブンイレブン直方知古店 |
| 距離 |
1073m |
| 周辺施設 |
直方市立直方第三中学校 |
| 距離 |
1400m |
| 周辺施設 |
西日本シティ銀行直方支店 |
| 距離 |
1315m |
ここから簡単にお問い合わせをすることができます。
(SSLでの暗号化での送信を希望されるお客さまは
こちら
よりお問い合わせください)
お問い合わせを行う前に
「個人情報の取り扱いについて」を必ずお読みください。
「個人情報の取り扱いについて」に同意いただいた場合は「上記にご同意の上 確認画面へ進む」のボタンをクリックしてください。
個人情報の取り扱いについて
皆さまが送付された個人情報はアットホーム(株)のサーバを経由し、お問い合わせ先の不動産会社にメールまたはFAXにて転送されるためアットホーム(株)にも保管されます。アットホーム(株)で保管された個人情報の取り扱いについては、【こちら】をご覧ください。
また、本画面でご記入いただいた個人情報は、お問い合わせ先の不動産会社でも保管します。 お問い合わせ先の不動産会社が保管する個人情報の取り扱いについては、不動産会社に直接お問い合わせください。
福岡県知事免許(3)第17660号 |
|---|
- 交通:
- JR日豊本線/下曽根駅 【バス】10分 弥生が丘第二
- 福岡県北九州市小倉南区貫弥生が丘2丁目21-12
- TEL:
- 093-234-0324
- FAX:
- 093-234-0323
- 所属団体:
- (公社)福岡県宅地建物取引業協会会員(一社)九州不動産公正取引協議会加盟
取引態様:専任媒介  - 80502653
|
- スマートフォンで
この不動産会社を見る

|
- 提携サイト等より掲載されている物件情報につきましては、不動産会社詳細情報にリンクされていないものがあります。
- 物件に関するお問合せは、物件詳細ページの「情報提供会社」に表示されている不動産会社へ直接お願いいたします。
- 間取図は、現況を優先させていただきます。
- 映像は物件の一部を撮影したものです。物件の契約にあたっての最終判断はご自身の判断に基づいて行ってください。
- 仲介手数料について

アットホームは物件情報の適正化に努めております。
内容に誤りがある場合にはこちらへご連絡ください。