兵庫県姫路市広畑区小松町4丁目(はりま勝原駅)の一戸建て:物件詳細
交通 所在地 |
駅徒歩 |
価格 |
間取り 建物面積 |
土地面積 私道負担面積 |
物件種目 築年月 |
|
JR山陽本線/はりま勝原
兵庫県姫路市広畑区小松町4丁目
|
18分
|
3,680万円
|
4LDK
109.69m²
|
130.30m²
なし
|
新築一戸建て
2025年2月
|
|
駐車場3台分以上、南向き、24時間換気システム、区画整理地内
|
|
間取図
|
外観
外観です。
|
<
その他の画像
>
|
| 交通 | JR山陽本線 はりま勝原駅 徒歩18分 |
|---|
| その他の交通 | 山陽電鉄網干線 山陽天満駅 徒歩11分 |
| 所在地 |
兵庫県姫路市広畑区小松町4丁目
|
| 物件種目 |
新築一戸建て |
| 価格 |
3,680万円 |
借地期間・地代(月額) |
- |
| 権利金 |
- |
敷金または保証金 |
- / - |
| 維持費等 |
- |
その他一時金 |
- |
| 間取り |
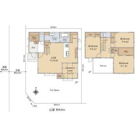
4LDK(和 4.5 洋 7.2・6.2・6 LDK 18) |
建物面積 |
109.69m² |
| 土地権利 |
所有権 |
建物構造 |
木造 |
| 土地面積 |
130.30m²(公簿) |
私道負担面積 |
なし |
| 築年月 |
2025年2月
|
都市計画 |
市街化区域 |
| 建物名 |
姫路市広畑区小松町4丁目新築戸建 |
建築確認番号 |
- |
| 用途地域 |
2種低層 |
駐車場 |
- |
| 建ぺい率 |
60% |
容積率 |
150% |
| 階建 |
2階建 |
接道状況 |
南 4.0m 公道 接面8.3m
・ 西 14.0m 公道 接面11.4m
・ 二方道路
|
| 地目 |
宅地 |
地勢 |
平坦 |
| 国土法届出 |
- |
セットバック |
- |
| アピールポイント |
この度は、『姫路市広畑区小松町4丁目新築戸建』のページをご覧いただきまして、誠にありがとうございます。
本物件は、南西角地、南・西側道路に面した、閑静な住宅街の明るく開放感のある新築一戸建です。
カースペースは西側から並列2台、南側から1台の計3台分駐車可能です。(車種による)
建物は、耐震等級3、省エネ基準適合住宅の仕様です。
1階は、LDK18.0帖とゆったりとしたスペースを確保、またキッチン横にはパントリー、玄関横にはシューズクロークなどなど収納を確保しています。
2階は、主寝室(洋室約7.2帖)にWIC、他2室はクローゼットがあります。また、引き違い窓にはシャッター雨戸付、バルコニーは南向きです。
広畑第二小学校まで約290m・徒歩4分、広畑中学校まで約350m・徒歩5分とご通学に便利です。
また、周辺にはマルナカ広畑店まで約800m・徒歩10分、イオンモール姫路大津まで約1300m・徒歩17分、ローソン姫路広畑小松町店まで約490m・徒歩7分などなど便利な立地です。
いつでもご内覧可能です。お問い合わせお待ちちしております。 |
| リフォーム履歴 |
- |
| リノベーション履歴 |
- |
| 瑕疵保証 |
- |
| 瑕疵保険 |
- |
| 評価・証明書 |
- |
| 備考 |
主要採光面:南向き
|
| エネルギー消費性能 |
- |
| 断熱性能 |
- |
| 目安光熱費 |
- |
| バス・トイレ |
浴室暖房、浴室乾燥機、オートバス、追焚機能、高温差湯式、シャワー付洗面化粧台、温水洗浄便座、トイレ2ヶ所、浴室に窓あり |
| キッチン |
カウンターキッチン、システムキッチン、食器洗浄乾燥機、3口以上コンロ |
| 設備・サービス |
全居室収納、ウォークインクローゼット、シューズインクローゼット、床下収納、モニター付インターホン、ディンプルキー、シャッター雨戸、上水道、下水道、都市ガス、電気、庭、火災警報器(報知機)、複層ガラス |
| その他 |
- |
| 現況 |
空家 |
引渡可能時期 |
即時 |
| 物件番号 |
6983120972 |
|
|
| 情報公開日 |
2024年8月3日 |
次回更新予定日 |
2025年12月16日 |
| ケータイ用バーコード |
- スマートフォンでこの物件を見る
- スマートフォンからもこの物件をご覧になれます。
|
※「-」と表示されている項目については、情報提供会社にご確認ください。
| 周辺施設 |
広畑第二小学校まで約290m・徒歩4分です。 |
| 距離 |
290m |
写真を見る |
| 周辺施設 |
マルナカ広畑店まで約800m・徒歩10分です。 |
| 距離 |
800m |
写真を見る |
| 周辺施設 |
ローソン姫路広畑小松町店まで約490m・徒歩7分です。 |
| 距離 |
490m |
写真を見る |
| 周辺施設 |
ライフォート広畑店まで約590m・徒歩8分です。 |
| 距離 |
590m |
写真を見る |
| 周辺施設 |
広高浜公園まで約50m・徒歩1分です。 |
| 距離 |
50m |
写真を見る |
ここから簡単にお問い合わせをすることができます。
(SSLでの暗号化での送信を希望されるお客さまは
こちら
よりお問い合わせください)
お問い合わせを行う前に
「個人情報の取り扱いについて」を必ずお読みください。
「個人情報の取り扱いについて」に同意いただいた場合は「上記にご同意の上 確認画面へ進む」のボタンをクリックしてください。
個人情報の取り扱いについて
皆さまが送付された個人情報はアットホーム(株)のサーバを経由し、お問い合わせ先の不動産会社にメールまたはFAXにて転送されるためアットホーム(株)にも保管されます。アットホーム(株)で保管された個人情報の取り扱いについては、【こちら】をご覧ください。
また、本画面でご記入いただいた個人情報は、お問い合わせ先の不動産会社でも保管します。 お問い合わせ先の不動産会社が保管する個人情報の取り扱いについては、不動産会社に直接お問い合わせください。
兵庫県知事免許(1)第451716号 |
|---|
- 交通:
- 【バス】 名古山北口 停歩1分
- 兵庫県姫路市東辻井1丁目11-27 望城ハイツ1階
- TEL:
- 079-290-8720
- FAX:
- 079-290-8721
- 所属団体:
- (一社)兵庫県宅地建物取引業協会会員(公社)近畿地区不動産公正取引協議会加盟
取引態様:専任媒介  - 50108445
|
- スマートフォンで
この不動産会社を見る

|
- 提携サイト等より掲載されている物件情報につきましては、不動産会社詳細情報にリンクされていないものがあります。
- 物件に関するお問合せは、物件詳細ページの「情報提供会社」に表示されている不動産会社へ直接お願いいたします。
- 間取図は、現況を優先させていただきます。
- 映像は物件の一部を撮影したものです。物件の契約にあたっての最終判断はご自身の判断に基づいて行ってください。
- 仲介手数料について

アットホームは物件情報の適正化に努めております。
内容に誤りがある場合にはこちらへご連絡ください。