岐阜県安八郡安八町大森(新羽島駅)の一戸建て:物件詳細
交通 所在地 |
駅徒歩 |
価格 |
間取り 建物面積 |
土地面積 私道負担面積 |
物件種目 築年月 |
|
名鉄竹鼻線/新羽島 [バス利用可] バス 3分 羽島線 大森 停歩6分
岐阜県安八郡安八町大森
|
25分
|
3,300万円
|
4SLDK
212.87m²
|
593.60m²
なし
|
中古一戸建て
1967年11月(築58年2ヶ月)
|
|
デザイナーズ、駐車場3台分以上、南向き、天井高2.5M以上、バス1坪以上、全室2面採光、3面採光、バリアフリー、吹抜、閑静な住宅街、オール電化、庭10坪以上、隣接建物距離2m以上、瑕疵保険検査基準に適合
|
|
≪オープンハウス/モデルハウス≫【開催期間】2025年3月23日~ 【時間】10:00~16:00 ご希望の方には随時対応します。
|
|
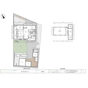
間取図
|
リビング
開放的なリビングキッチン。元和室だった部分をフローリングに仕上げました。
|
<
その他の画像
>
|
| 交通 | 名鉄竹鼻線 新羽島駅 徒歩25分 [バス利用可] バス 3分 羽島線 大森 停歩6分 |
|---|
| その他の交通 | 東海道新幹線 岐阜羽島駅 徒歩24分 [バス利用可] バス 5分 羽島線 大森 停歩6分 |
| 所在地 |
岐阜県安八郡安八町大森
|
| 物件種目 |
中古一戸建て |
| 価格 |
3,300万円 |
借地期間・地代(月額) |
- |
| 権利金 |
- |
敷金または保証金 |
- / - |
| 維持費等 |
- |
その他一時金 |
契約金(買い付け申込時):500,000円 |
| 間取り |
4SLDK(和 8.5 洋 8・9.8・30 LDK 30 S 4) |
建物面積 |
212.87m² |
| 土地権利 |
所有権 |
建物構造 |
木造 |
| 土地面積 |
593.60m²(公簿) |
私道負担面積 |
なし |
| 築年月 |
1967年11月(築58年2ヶ月)
|
都市計画 |
調整区域 |
| 建物名 |
デザイン空き家住宅 大森 |
建築確認番号 |
- |
| 用途地域 |
- |
駐車場 |
- |
| 建ぺい率 |
60% |
容積率 |
200% |
| 階建 |
2階建 |
接道状況 |
北 4.4m 公道 接面22.0m
|
| 地目 |
宅地 |
地勢 |
平坦 |
| 国土法届出 |
- |
セットバック |
要 |
| アピールポイント |
築56年の古民家。床と天井はすべて高断熱仕様、宅内の水道管もすべて新調されているので安心です。
全国古民家再生協会による耐震&断熱改修とデザインリノベーション済みの住宅。ストックヤードや庭のある広々とした古民家で、ゆったりとした暮らしを楽しんでみませんか。新幹線の駅やインターに近いので、名古屋をはじめ全国への出張の多い世帯に最適です。スーパー・コンビニにも近く、2世帯居住やワーケーション住宅としてもご活用ください。 |
| リフォーム履歴 |
■水回り:2024年9月 キッチン、浴室、トイレ、洗面所、給排水管 敷地内の上水道引込管は2024年9月以前のままです。本宅家屋内の範囲のみ、水道管を新しくしています。 ■内装:2024年9月 内装全面(床・壁・天井・建具)、サッシ 一部にアンティーク建具を使用しています。 ■外装:2024年9月 外壁 屋根は、2024年9月時点で点検し、雨漏りが無いことを確認済。屋根の葺き替えは2017年6月頃に完了。 ■その他:2017年6月 屋根の葺き替え ※実施年月は最も古い履歴を表示 |
| リノベーション履歴 |
- |
| 瑕疵保証 |
- |
| 瑕疵保険 |
瑕疵保険検査基準に適合 |
| 評価・証明書 |
■建物状況調査 申込対応可 |
| 備考 |
主要採光面:南向き
工事完了予定日:2024年9月
修繕・点検の記録あり
|
| エネルギー消費性能 |
- |
| 断熱性能 |
- |
| 目安光熱費 |
- |
| バス・トイレ |
追焚機能、シャワー付洗面化粧台、温水洗浄便座、タンクレストイレ、トイレ2ヶ所、浴室に窓あり |
| キッチン |
カウンターキッチン、オープンキッチン、システムキッチン、食器洗浄乾燥機、IHクッキングヒーター、3口以上コンロ、Ⅱ型キッチン、グリル、キッチン床暖房 |
| 設備・サービス |
ウォークインクローゼット、床暖房、モニター付インターホン、ディンプルキー、ダブルロックドア、省エネ給湯器、全居室フローリング、クッションフロア、上水道、下水道、電気、可動間仕切り、側溝、シーリングファン、庭、縁側、人感センサー付照明、ダウンライト、照明器具、火災警報器(報知機) |
| その他 |
- |
| 現況 |
空家 |
引渡可能時期 |
即時 |
| 物件番号 |
6983269157 |
仲介手数料 |
不要 |
| 情報公開日 |
2025年8月19日 |
次回更新予定日 |
2025年12月11日 |
| ケータイ用バーコード |
- スマートフォンでこの物件を見る
- スマートフォンからもこの物件をご覧になれます。
|
※「-」と表示されている項目については、情報提供会社にご確認ください。
| 周辺施設 |
スーパーセンタートライアル安八店 |
| 距離 |
1800m |
写真を見る |
| 周辺施設 |
ゲンキー安八町店 |
| 距離 |
964m |
写真を見る |
| 周辺施設 |
ハイショップヤスイ |
| 距離 |
850m |
写真を見る |
| 周辺施設 |
ファミリーマート安八森部店 |
| 距離 |
1000m |
ここから簡単にお問い合わせをすることができます。
(SSLでの暗号化での送信を希望されるお客さまは
こちら
よりお問い合わせください)
お問い合わせを行う前に
「個人情報の取り扱いについて」を必ずお読みください。
「個人情報の取り扱いについて」に同意いただいた場合は「上記にご同意の上 確認画面へ進む」のボタンをクリックしてください。
個人情報の取り扱いについて
皆さまが送付された個人情報はアットホーム(株)のサーバを経由し、お問い合わせ先の不動産会社にメールまたはFAXにて転送されるためアットホーム(株)にも保管されます。アットホーム(株)で保管された個人情報の取り扱いについては、【こちら】をご覧ください。
また、本画面でご記入いただいた個人情報は、お問い合わせ先の不動産会社でも保管します。 お問い合わせ先の不動産会社が保管する個人情報の取り扱いについては、不動産会社に直接お問い合わせください。
岐阜県知事免許(3)第4759号 |
|---|
- 交通:
- 東海道本線/大垣駅 【バス】22分 墨俣 停歩5分
- 岐阜県大垣市墨俣町墨俣1087-1
- TEL:
- 0584-62-7860
- FAX:
- 0584-62-7859
- 所属団体:
- (公社)岐阜県宅地建物取引業協会会員東海不動産公正取引協議会加盟
取引態様:売主  - 40403793
|
- スマートフォンで
この不動産会社を見る

|
- 提携サイト等より掲載されている物件情報につきましては、不動産会社詳細情報にリンクされていないものがあります。
- 物件に関するお問合せは、物件詳細ページの「情報提供会社」に表示されている不動産会社へ直接お願いいたします。
- 間取図は、現況を優先させていただきます。
- 映像は物件の一部を撮影したものです。物件の契約にあたっての最終判断はご自身の判断に基づいて行ってください。
- 仲介手数料について

アットホームは物件情報の適正化に努めております。
内容に誤りがある場合にはこちらへご連絡ください。