福島県喜多方市字千苅(喜多方駅)の一戸建て:物件詳細
交通 所在地 |
駅徒歩 |
価格 |
間取り 建物面積 |
土地面積 私道負担面積 |
物件種目 築年月 |
|
JR磐越西線/喜多方
福島県喜多方市字千苅
|
6分
|
3,500万円
|
4SLDK
224.27m²
|
364.30m²
なし
|
中古一戸建て
1970年10月(築55年8ヶ月)
|
|
駐車場3台分以上
|
|
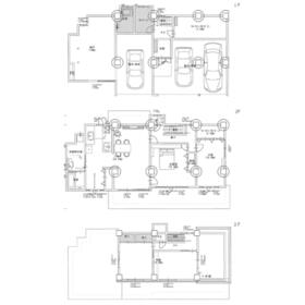
間取図
|
外観
|
<
その他の画像
>
|
| 交通 | JR磐越西線 喜多方駅 徒歩6分 |
|---|
| その他の交通 | JR磐越西線 会津豊川駅 徒歩27分 |
| 所在地 |
福島県喜多方市字千苅
|
| 物件種目 |
中古一戸建て |
| 価格 |
3,500万円 |
借地期間・地代(月額) |
- |
| 権利金 |
- |
敷金または保証金 |
- / - |
| 維持費等 |
- |
その他一時金 |
- |
| 間取り |
4SLDK(洋 10.1・10.2・8・8.5 S 16) |
建物面積 |
224.27m² |
| 土地権利 |
所有権 |
建物構造 |
RC |
| 土地面積 |
364.30m²(公簿) |
私道負担面積 |
なし |
| 築年月 |
1970年10月(築55年8ヶ月)
|
都市計画 |
非線引区域 |
| 建物名 |
喜多方市中古売家 |
建築確認番号 |
- |
| 用途地域 |
1種住居 |
駐車場 |
- |
| 建ぺい率 |
60% |
容積率 |
200% |
| 階建 |
3階建 |
接道状況 |
南 7.0m 公道
|
| 地目 |
宅地 |
地勢 |
平坦 |
| 国土法届出 |
- |
セットバック |
- |
| リフォーム履歴 |
- |
| リノベーション履歴 |
2023年4月 全面リフォーム済み ※実施年月は最も古い履歴を表示 |
| 瑕疵保証 |
- |
| 瑕疵保険 |
- |
| 評価・証明書 |
- |
| 備考 |
RC造3階建リノベーション住宅、令和5年工事完了
インナーガレージ3台付き
|
| エネルギー消費性能 |
- |
| 断熱性能 |
- |
| 目安光熱費 |
- |
| バス・トイレ |
追焚機能、シャワー付洗面化粧台、温水洗浄便座、トイレ2ヶ所 |
| キッチン |
システムキッチン、食器洗浄乾燥機、IHクッキングヒーター |
| 設備・サービス |
ウォークインクローゼット、エアコン2台以上、クローゼット、モニター付インターホン、カードキー、全居室フローリング、室内物干し、プロパンガス、庭、ルーフバルコニー、ダウンライト、照明器具 |
| その他 |
- |
| 現況 |
空家 |
引渡可能時期 |
即時 |
| 物件番号 |
6983287695 |
|
|
| 情報公開日 |
2024年8月27日 |
次回更新予定日 |
2026年5月22日 |
| ケータイ用バーコード |
- スマートフォンでこの物件を見る
- スマートフォンからもこの物件をご覧になれます。
|
※「-」と表示されている項目については、情報提供会社にご確認ください。
| 周辺施設 |
リオン・ドール喜多方西店 |
| 距離 |
750m |
| 周辺施設 |
クスリのアオキ喜多方西店 |
| 距離 |
278m |
| 周辺施設 |
会津信用金庫喜多方支店 |
| 距離 |
1104m |
ここから簡単にお問い合わせをすることができます。
(SSLでの暗号化での送信を希望されるお客さまは
こちら
よりお問い合わせください)
お問い合わせを行う前に
「個人情報の取り扱いについて」を必ずお読みください。
「個人情報の取り扱いについて」に同意いただいた場合は「上記にご同意の上 確認画面へ進む」のボタンをクリックしてください。
個人情報の取り扱いについて
皆さまが送付された個人情報はアットホーム(株)のサーバを経由し、お問い合わせ先の不動産会社にメールまたはFAXにて転送されるためアットホーム(株)にも保管されます。アットホーム(株)で保管された個人情報の取り扱いについては、【こちら】をご覧ください。
また、本画面でご記入いただいた個人情報は、お問い合わせ先の不動産会社でも保管します。 お問い合わせ先の不動産会社が保管する個人情報の取り扱いについては、不動産会社に直接お問い合わせください。
福島県知事免許(7)第1933号 |
|---|
- 交通:
- JR磐越西線/会津若松駅 徒歩17分
- 福島県会津若松市扇町3丁目13番地の6
- TEL:
- 0242-25-4115
- FAX:
- 0242-25-4140
- 所属団体:
- (公社)福島県宅地建物取引業協会会員東北地区不動産公正取引協議会加盟
取引態様:媒介  - 20002129
|
- スマートフォンで
この不動産会社を見る

|
- 提携サイト等より掲載されている物件情報につきましては、不動産会社詳細情報にリンクされていないものがあります。
- 物件に関するお問合せは、物件詳細ページの「情報提供会社」に表示されている不動産会社へ直接お願いいたします。
- 間取図は、現況を優先させていただきます。
- 映像は物件の一部を撮影したものです。物件の契約にあたっての最終判断はご自身の判断に基づいて行ってください。
- 仲介手数料について

アットホームは物件情報の適正化に努めております。
内容に誤りがある場合にはこちらへご連絡ください。