茨城県水戸市本町3丁目(水戸駅)の一戸建て:物件詳細
交通 所在地 |
駅徒歩 |
価格 |
間取り 建物面積 |
土地面積 私道負担面積 |
物件種目 築年月 |
|
JR常磐線/水戸 [バス利用可] バス 10分 浜田西 停歩3分
茨城県水戸市本町3丁目
|
27分
|
1,880万円
|
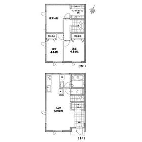
3LDK
72.03m²
|
66.19m²
-
|
新築一戸建て
2025年12月
|
|
2×4工法、バス1坪以上、整形地
|
|
間取図
|
外観
完成予想パース
|
その他の画像
|
| 交通 | JR常磐線 水戸駅 徒歩27分 [バス利用可] バス 10分 浜田西 停歩3分 |
| 所在地 |
茨城県水戸市本町3丁目
|
| 物件種目 |
新築一戸建て |
| 価格 |
1,880万円 |
借地期間・地代(月額) |
- |
| 権利金 |
- |
敷金または保証金 |
- / - |
| 維持費等 |
- |
その他一時金 |
- |
| 間取り |
3LDK |
建物面積 |
72.03m² |
| 土地権利 |
所有権 |
建物構造 |
木造 |
| 土地面積 |
66.19m² |
私道負担面積 |
- |
| 築年月 |
2025年12月
|
都市計画 |
市街化区域 |
| 建物名 |
|
建築確認番号 |
第R06A確済M0542号 |
| 用途地域 |
商業地域 |
駐車場 |
- |
| 建ぺい率 |
80% |
容積率 |
400% |
| 階建 |
2階建 |
接道状況 |
南 5.9m 公道
|
| 地目 |
宅地 |
地勢 |
平坦 |
| 国土法届出 |
- |
セットバック |
- |
| アピールポイント |
住宅ローン月々48,669円!(住信SBI・変動0.484%・1880万・35年返済)
今の家賃と比べてみてください!マイホームGETのチャンスです!!
南道路で日当り良好!!
シューズクロークやウォークインクローゼット付で収納充実!!
買物も便利!小学校へも徒歩2分です!! |
| リフォーム履歴 |
- |
| リノベーション履歴 |
- |
| 瑕疵保証 |
- |
| 瑕疵保険 |
- |
| 評価・証明書 |
- |
| 備考 |
工事完了予定日:2025年11月
※住信SBI・変動金利0.484%・35年返済(R6.11現在)
|
| エネルギー消費性能 |
- |
| 断熱性能 |
- |
| 目安光熱費 |
- |
| バス・トイレ |
オートバス、追焚機能、シャワー付洗面化粧台、温水洗浄便座 |
| キッチン |
システムキッチン、3口以上コンロ |
| 設備・サービス |
全居室収納、ウォークインクローゼット、シューズインクローゼット、モニター付インターホン、全居室フローリング、上水道、下水道、ダウンライト、照明器具、複層ガラス |
| その他 |
- |
| 現況 |
建築中 |
引渡可能時期 |
相談 |
| 物件番号 |
6983397252 |
仲介手数料 |
売買代金の3%+6万円 |
| 情報公開日 |
2025年4月20日 |
次回更新予定日 |
2025年12月13日 |
| ケータイ用バーコード |
- スマートフォンでこの物件を見る
- スマートフォンからもこの物件をご覧になれます。
|
※「-」と表示されている項目については、情報提供会社にご確認ください。
| 周辺施設 |
ヨークベニマル水戸浜田店 |
| 距離 |
555m |
| 周辺施設 |
水戸市立浜田認定こども園 |
| 距離 |
429m |
ここから簡単にお問い合わせをすることができます。
(SSLでの暗号化での送信を希望されるお客さまは
こちら
よりお問い合わせください)
お問い合わせを行う前に
「個人情報の取り扱いについて」を必ずお読みください。
「個人情報の取り扱いについて」に同意いただいた場合は「上記にご同意の上 確認画面へ進む」のボタンをクリックしてください。
個人情報の取り扱いについて
皆さまが送付された個人情報はアットホーム(株)のサーバを経由し、お問い合わせ先の不動産会社にメールまたはFAXにて転送されるためアットホーム(株)にも保管されます。アットホーム(株)で保管された個人情報の取り扱いについては、【こちら】をご覧ください。
また、本画面でご記入いただいた個人情報は、お問い合わせ先の不動産会社でも保管します。 お問い合わせ先の不動産会社が保管する個人情報の取り扱いについては、不動産会社に直接お問い合わせください。
茨城県知事免許(2)第7165号 |
|---|
- 交通:
- JR常磐線/水戸駅 徒歩3分
- 茨城県水戸市三の丸2丁目2-28 NOZビル1F
- TEL:
- 029-224-7771
- FAX:
- 029-224-7711
- 所属団体:
- (公社)茨城県宅地建物取引業協会会員(公社)首都圏不動産公正取引協議会加盟
取引態様:専任媒介  - 00262915
|
- スマートフォンで
この不動産会社を見る

|
- 提携サイト等より掲載されている物件情報につきましては、不動産会社詳細情報にリンクされていないものがあります。
- 物件に関するお問合せは、物件詳細ページの「情報提供会社」に表示されている不動産会社へ直接お願いいたします。
- 間取図は、現況を優先させていただきます。
- 映像は物件の一部を撮影したものです。物件の契約にあたっての最終判断はご自身の判断に基づいて行ってください。
- 仲介手数料について

アットホームは物件情報の適正化に努めております。
内容に誤りがある場合にはこちらへご連絡ください。