福井県鯖江市舟津町3丁目(サンドーム西駅)の一戸建て:物件詳細
交通 所在地 |
駅徒歩 |
価格 |
間取り 建物面積 |
土地面積 私道負担面積 |
物件種目 築年月 |
|
福井鉄道福武線/サンドーム西
福井県鯖江市舟津町3丁目
|
3分
|
1,650万円
|
8SLDK
234.07m²
|
349.41m²
なし
|
中古一戸建て
1992年1月(築34年5ヶ月)
|
|
駐車場2台分、2面採光、閑静な住宅街、整形地
|
|
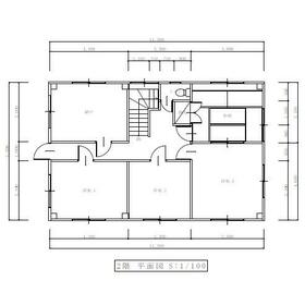
間取図
【1階】台所、居間のほかに和室が4室あります!
|
間取図
【2階】2階にもトイレがあるので、朝の混雑する時間帯も安心です!また、納戸もありたくさんのものを収
|
<
その他の画像
>
|
| 交通 | 福井鉄道福武線 サンドーム西駅 徒歩3分 |
|---|
| その他の交通 | 【バス】 舟津町4丁目 停歩4分 |
| 所在地 |
福井県鯖江市舟津町3丁目
|
| 物件種目 |
中古一戸建て |
| 価格 |
1,650万円 |
借地期間・地代(月額) |
- |
| 権利金 |
- |
敷金または保証金 |
- / - |
| 維持費等 |
- |
その他一時金 |
- |
| 間取り |
8SLDK(和 8.4・8.6・8.4・5.9・7.2 洋 7.6・6.1・9.2 LDK 9.2 S 7.6) |
建物面積 |
234.07m² |
| 土地権利 |
所有権 |
建物構造 |
鉄骨造 |
| 土地面積 |
349.41m²(公簿) |
私道負担面積 |
なし |
| 築年月 |
1992年1月(築34年5ヶ月)
|
都市計画 |
非線引区域 |
| 建物名 |
鯖江市舟津町 中古一戸建て |
建築確認番号 |
- |
| 用途地域 |
1種住居 |
駐車場 |
- |
| 建ぺい率 |
70% |
容積率 |
200% |
| 階建 |
2階建 |
接道状況 |
東 5.5m 公道 接面11.5m
・ 南 4.7m 公道 接面32.3m
・ 二方道路
|
| 地目 |
宅地 |
地勢 |
- |
| 国土法届出 |
- |
セットバック |
- |
| アピールポイント |
◆和室が5室あり、納戸付♪
◆バルコニー付きでたくさんの洗濯物が干せます!
◆収納も多くあり、お部屋もスッキリした状態を保てます♪
◆通勤・通学・買い物の利便性が高い充実の周辺環境
・惜隠小学校 徒歩約12分
・すみれ保育園 車約2分
・ハニー住吉店 車約4分
・クスリのアオキ舟津店 車約2分
・ファミリーマート鯖江ひまわり通り店 車約3分
・鯖江桜郵便局 車約4分 |
| リフォーム履歴 |
- |
| リノベーション履歴 |
- |
| 瑕疵保証 |
- |
| 瑕疵保険 |
- |
| 評価・証明書 |
- |
| 備考 |
-
|
| エネルギー消費性能 |
- |
| 断熱性能 |
- |
| 目安光熱費 |
- |
| バス・トイレ |
シャワー付洗面化粧台、トイレ2ヶ所、浴室に窓あり |
| キッチン |
- |
| 設備・サービス |
エアコン2台以上、クローゼット、モニター付インターホン、上水道、下水道、プロパンガス、電気、ワイドバルコニー、照明器具 |
| その他 |
- |
| 現況 |
空家 |
引渡可能時期 |
相談 |
| 物件番号 |
6983507385 |
|
|
| 情報公開日 |
2025年9月27日 |
次回更新予定日 |
2026年5月11日 |
| ケータイ用バーコード |
- スマートフォンでこの物件を見る
- スマートフォンからもこの物件をご覧になれます。
|
※「-」と表示されている項目については、情報提供会社にご確認ください。
| 周辺施設 |
ハニー住吉店 |
| 距離 |
920m |
写真を見る |
| 周辺施設 |
ファミリーマート鯖江ひまわり通り店 |
| 距離 |
310m |
写真を見る |
| 周辺施設 |
クスリのアオキ舟津店 |
| 距離 |
590m |
写真を見る |
| 周辺施設 |
鯖江市立惜陰小学校 |
| 距離 |
860m |
写真を見る |
| 周辺施設 |
鯖江市立鯖江中学校 |
| 距離 |
2340m |
写真を見る |
| 周辺施設 |
鯖江すみれ保育園 |
| 距離 |
620m |
写真を見る |
| 周辺施設 |
医療法人広瀬病院 |
| 距離 |
1010m |
写真を見る |
| 周辺施設 |
鯖江桜郵便局 |
| 距離 |
1260m |
写真を見る |
ここから簡単にお問い合わせをすることができます。
(SSLでの暗号化での送信を希望されるお客さまは
こちら
よりお問い合わせください)
お問い合わせを行う前に
「個人情報の取り扱いについて」を必ずお読みください。
「個人情報の取り扱いについて」に同意いただいた場合は「上記にご同意の上 確認画面へ進む」のボタンをクリックしてください。
個人情報の取り扱いについて
皆さまが送付された個人情報はアットホーム(株)のサーバを経由し、お問い合わせ先の不動産会社にメールまたはFAXにて転送されるためアットホーム(株)にも保管されます。アットホーム(株)で保管された個人情報の取り扱いについては、【こちら】をご覧ください。
また、本画面でご記入いただいた個人情報は、お問い合わせ先の不動産会社でも保管します。 お問い合わせ先の不動産会社が保管する個人情報の取り扱いについては、不動産会社に直接お問い合わせください。
国土交通大臣免許(2)第9164号 |
|---|
- 交通:
- えちぜん鉄道勝山線/越前開発駅
- 福井県福井市高柳1丁目916番地
- TEL:
- 0776-50-7565
- FAX:
- 0776-50-3756
- 所属団体:
- (公社)福井県宅地建物取引業協会会員北陸不動産公正取引協議会加盟
取引態様:一般媒介  - 40411535
|
- スマートフォンで
この不動産会社を見る

|
- 提携サイト等より掲載されている物件情報につきましては、不動産会社詳細情報にリンクされていないものがあります。
- 物件に関するお問合せは、物件詳細ページの「情報提供会社」に表示されている不動産会社へ直接お願いいたします。
- 間取図は、現況を優先させていただきます。
- 映像は物件の一部を撮影したものです。物件の契約にあたっての最終判断はご自身の判断に基づいて行ってください。
- 仲介手数料について

アットホームは物件情報の適正化に努めております。
内容に誤りがある場合にはこちらへご連絡ください。