東京都あきる野市山田(武蔵引田駅)の一戸建て:物件詳細
				
					
					
				
														
	
		
			
			| 交通 所在地
 | 駅徒歩 | 価格 | 間取り 建物面積
 | 土地面積 私道負担面積
 | 物件種目 築年月
 | 
		
		
			
								| JR五日市線/武蔵引田
										 東京都あきる野市山田 | 
					14分
 | 
					2,480万円
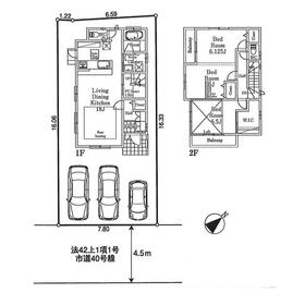
					 | 3LDK 91.91m² | 126.04m² なし | 中古一戸建て 2013年7月(築12年4ヶ月)
																				 | 
						
				|  駐車場3台分以上、バス1坪以上、24時間換気システム、オール電化、整形地
 | 
								
	
				
		
					| 間取図 | 外観 | 
		
		| 
				
										
						
							 その他の画像 | 
				
 
	
		
			
																			          | 交通 | JR五日市線 武蔵引田駅 徒歩14分 | 
|---|
			
				| 所在地 | 東京都あきる野市山田 | 
		
		
			
				| 物件種目 | 中古一戸建て | 
			
				| 価格 | 2,480万円 | 借地期間・地代(月額) | - | 
			
				| 権利金 | - | 敷金または保証金 | - / - | 
			
				| 維持費等 | - | その他一時金 | - | 
		
		
			
				| 間取り | 3LDK | 建物面積 | 91.91m² | 
			
				| 土地権利 | 所有権 | 建物構造 | 木造 | 
			
				| 土地面積 | 126.04m²(公簿) | 私道負担面積 | なし | 
			
				| 築年月 | 2013年7月(築12年4ヶ月) | 都市計画 | 市街化区域 | 
			
				| 建物名 |  | 建築確認番号 | - | 
			
				| 用途地域 | 1種低層 | 駐車場 | - | 
			
				| 建ぺい率 | 40% | 容積率 | 80% | 
			
				| 階建 | 2階建 | 接道状況 | 南東 4.5m 公道 接面7.8m | 
			
				| 地目 | 宅地 | 地勢 | 平坦 | 
			
				| 国土法届出 | - | セットバック | - | 
			
	| アピールポイント | 並列3台駐車可(車種による)。オール電化住宅。リビングに床暖房完備。約4.5帖のロフト付き。2面バルコニー。 | 
			
				| リフォーム履歴 | - | 
			
				| リノベーション履歴 | - | 
			
				| 瑕疵保証 | - | 
			
				| 瑕疵保険 | - | 
			
				| 評価・証明書 | - | 
			
				| 備考 | 
																	-
										 | 
		
				
		
		| エネルギー消費性能 | - | 
	
		| 断熱性能 | - | 
	
		| 目安光熱費 | - | 
	
		
									
				| バス・トイレ | トイレ2ヶ所、浴室に窓あり | 
						
				| キッチン | システムキッチン、IHクッキングヒーター、3口以上コンロ | 
						
				| 設備・サービス | ウォークインクローゼット、上水道、下水道、電気 | 
						
				| その他 | - | 
					
		
			
				| 現況 | 所有者居住中 | 引渡可能時期 | 相談 | 
			
				| 物件番号 | 6983728138 | 仲介手数料 | 売買代金の3%+6万円 | 
			
				| 情報公開日 | 2024年10月4日 | 次回更新予定日 | 2025年11月13日 | 
						
				| ケータイ用バーコード | 
							
							
								
									スマートフォンでこの物件を見るスマートフォンからもこの物件をご覧になれます。 | 
					
	 
	 									※「-」と表示されている項目については、情報提供会社にご確認ください。
									
												
					
					  ここから簡単にお問い合わせをすることができます。
(SSLでの暗号化での送信を希望されるお客さまは
													こちら
												よりお問い合わせください)
					
					
						
						
					
					お問い合わせを行う前に
「個人情報の取り扱いについて」を必ずお読みください。
「個人情報の取り扱いについて」に同意いただいた場合は「上記にご同意の上 確認画面へ進む」のボタンをクリックしてください。 
						個人情報の取り扱いについて
						皆さまが送付された個人情報はアットホーム(株)のサーバを経由し、お問い合わせ先の不動産会社にメールまたはFAXにて転送されるためアットホーム(株)にも保管されます。アットホーム(株)で保管された個人情報の取り扱いについては、【こちら】をご覧ください。
						また、本画面でご記入いただいた個人情報は、お問い合わせ先の不動産会社でも保管します。 お問い合わせ先の不動産会社が保管する個人情報の取り扱いについては、不動産会社に直接お問い合わせください。
					 
					 
					
														
				  
				  
					| 東京都知事免許(4)第88415号 | 
|---|
| 交通:JR青梅線/牛浜駅 徒歩1分東京都福生市牛浜125 TEL:042-519-5193FAX:042-519-5196所属団体:(公社)東京都宅地建物取引業協会会員(公社)首都圏不動産公正取引協議会加盟
 取引態様:専任媒介 00019836
 | 
							  
								スマートフォンでこの不動産会社を見る
 | 
					  
					 
				 
							
						
												
			
					
- 提携サイト等より掲載されている物件情報につきましては、不動産会社詳細情報にリンクされていないものがあります。
- 物件に関するお問合せは、物件詳細ページの「情報提供会社」に表示されている不動産会社へ直接お願いいたします。
- 間取図は、現況を優先させていただきます。
- 映像は物件の一部を撮影したものです。物件の契約にあたっての最終判断はご自身の判断に基づいて行ってください。
- 仲介手数料について 
アットホームは物件情報の適正化に努めております。
内容に誤りがある場合にはこちらへご連絡ください。