北海道札幌市厚別区厚別東四条8丁目(森林公園駅)の一戸建て:物件詳細
交通 所在地 |
駅徒歩 |
価格 |
間取り 建物面積 |
土地面積 私道負担面積 |
物件種目 築年月 |
|
JR函館本線/森林公園
北海道札幌市厚別区厚別東四条8丁目
|
9分
|
3,680万円
|
5LDK
199.93m²
|
306.84m²
なし
|
中古一戸建て
1994年4月(築31年11ヶ月)
|
|
駐車場3台分以上、南向き、二世帯向き、2×4工法、バス1坪以上、3面採光、2面採光、閑静な住宅街、オール電化、庭10坪以上、IT重説対応物件
|
|
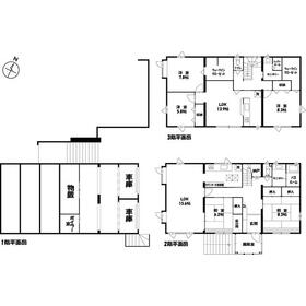
間取図
|
外観
セキスイハイム木造ツーバイフォー工法の注文住宅です(2024年9月撮影)
|
<
その他の画像
>
|
| 交通 | JR函館本線 森林公園駅 徒歩9分 |
| 所在地 |
北海道札幌市厚別区厚別東四条8丁目
|
| 物件種目 |
中古一戸建て |
| 価格 |
3,680万円 |
借地期間・地代(月額) |
- |
| 権利金 |
- |
敷金または保証金 |
- / - |
| 維持費等 |
- |
その他一時金 |
- |
| 間取り |
5LDK(和 8.3・6.2 洋 8.3・7.8・5.8 LDK 15.6) |
建物面積 |
199.93m² |
| 土地権利 |
所有権 |
建物構造 |
木造 |
| 土地面積 |
306.84m²(公簿) |
私道負担面積 |
なし |
| 築年月 |
1994年4月(築31年11ヶ月)
|
都市計画 |
市街化区域 |
| 建物名 |
札幌市厚別区厚別東四条八丁目 |
建築確認番号 |
- |
| 用途地域 |
1種低層 |
駐車場 |
有 |
| 建ぺい率 |
40% |
容積率 |
80% |
| 階建 |
3階建 |
接道状況 |
西 8.0m 公道 接面23.4m
|
| 地目 |
宅地 |
地勢 |
- |
| 国土法届出 |
- |
セットバック |
- |
| アピールポイント |
■お引渡後はセキスイハイムがトータルサポートいたします■住宅履歴保有、50年以上メンテナンスプログラム、一定耐震性能が有したスムストック住宅■大切なお車を守る2台駐車可能な車庫■灯油式融雪槽と玄関タイルヒーティング完備■閑静な住宅地で小さなお子様がいるご家族にも安心■お子様をいつも身近に感じられる近さが安心の厚別もえぎ保育園と厚別東小学校■家庭菜園やバーベキュー、エクササイズが楽しめるお庭があります■蓄電池で経済的な生活を ※写真のカーテン、照明は価格に含まれます。 |
| リフォーム履歴 |
■外装:2014年8月 屋根 ■その他:2012年2月 レンジフード交換工事 ※実施年月は最も古い履歴を表示 |
| リノベーション履歴 |
- |
| 瑕疵保証 |
- |
| 瑕疵保険 |
- |
| 評価・証明書 |
- |
| 備考 |
主要採光面:南向き
施工会社:北海道セキスイハイム株式会社
IT重説対応物件
|
| エネルギー消費性能 |
- |
| 断熱性能 |
- |
| 目安光熱費 |
- |
| バス・トイレ |
追焚機能、シャワールーム、温水洗浄便座、浴室に窓あり |
| キッチン |
独立型キッチン、IHクッキングヒーター |
| 設備・サービス |
ウォークインクローゼット、クローゼット、モニター付インターホン、上水道、下水道、電気、側溝、エアコン、セントラル、FF暖房、庭、照明器具、蓄電池付き、複層ガラス |
| その他 |
- |
| 現況 |
所有者居住中 |
引渡可能時期 |
相談 |
| 物件番号 |
6983780250 |
仲介手数料 |
売買代金の3%+6万円 |
| 情報公開日 |
2025年1月17日 |
次回更新予定日 |
2026年2月16日 |
| ケータイ用バーコード |
- スマートフォンでこの物件を見る
- スマートフォンからもこの物件をご覧になれます。
|
※「-」と表示されている項目については、情報提供会社にご確認ください。
| 周辺施設 |
厚別もえぎ保育園 (2024年9月撮影) |
| 距離 |
700m |
写真を見る |
| 周辺施設 |
厚別東小学校 (2024年9月撮影) |
| 距離 |
500m |
写真を見る |
| 周辺施設 |
厚別中学校 (2024年9月撮影) |
| 距離 |
1500m |
写真を見る |
| 周辺施設 |
小野幌日の出公園(2024年9月撮影) |
| 距離 |
79m |
写真を見る |
| 周辺施設 |
セブンイレブン札幌厚別東5条店(2024年9月撮影) |
| 距離 |
500m |
写真を見る |
| 周辺施設 |
札幌森林公園駅前郵便局(2024年9月撮影) |
| 距離 |
1300m |
写真を見る |
| 周辺施設 |
フードセンター森林公園店(2024年9月撮影) |
| 距離 |
1400m |
写真を見る |
ここから簡単にお問い合わせをすることができます。
(SSLでの暗号化での送信を希望されるお客さまは
こちら
よりお問い合わせください)
お問い合わせを行う前に
「個人情報の取り扱いについて」を必ずお読みください。
「個人情報の取り扱いについて」に同意いただいた場合は「上記にご同意の上 確認画面へ進む」のボタンをクリックしてください。
個人情報の取り扱いについて
皆さまが送付された個人情報はアットホーム(株)のサーバを経由し、お問い合わせ先の不動産会社にメールまたはFAXにて転送されるためアットホーム(株)にも保管されます。アットホーム(株)で保管された個人情報の取り扱いについては、【こちら】をご覧ください。
また、本画面でご記入いただいた個人情報は、お問い合わせ先の不動産会社でも保管します。 お問い合わせ先の不動産会社が保管する個人情報の取り扱いについては、不動産会社に直接お問い合わせください。
北海道知事免許 石狩(13)第2509号 |
|---|
- 交通:
- 札幌市南北線/北12条駅 徒歩5分
- 北海道札幌市北区北十四条西4丁目2-1
- TEL:
- 011-726-2826
- FAX:
- 011-707-3673
- 所属団体:
- (公社)北海道宅地建物取引業協会会員(一社)北海道不動産公正取引協議会加盟
取引態様:一般媒介  - 10005764
|
- スマートフォンで
この不動産会社を見る

|
- 提携サイト等より掲載されている物件情報につきましては、不動産会社詳細情報にリンクされていないものがあります。
- 物件に関するお問合せは、物件詳細ページの「情報提供会社」に表示されている不動産会社へ直接お願いいたします。
- 間取図は、現況を優先させていただきます。
- 映像は物件の一部を撮影したものです。物件の契約にあたっての最終判断はご自身の判断に基づいて行ってください。
- 仲介手数料について

アットホームは物件情報の適正化に努めております。
内容に誤りがある場合にはこちらへご連絡ください。