山梨県甲府市東光寺2丁目(善光寺駅)の一戸建て:物件詳細
交通 所在地 |
駅徒歩 |
価格 |
間取り 建物面積 |
土地面積 私道負担面積 |
物件種目 築年月 |
|
身延線/善光寺
山梨県甲府市東光寺2丁目
|
8分
|
400万円
|
6K
82.24m²
|
99.64m²
なし
|
中古一戸建て
1965年1月(築60年11ヶ月)
|
|
南向き、閑静な住宅街、整形地
|
|
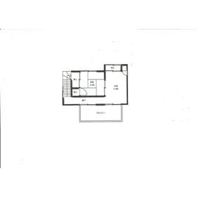
間取図
1階 現況と間取り図が相違の場合は、現況を優先とする
|
間取図
2階 現況と間取り図が相違の場合は、現況を優先とする
|
その他の画像
|
| 交通 | 身延線 善光寺駅 徒歩8分 |
| 所在地 |
山梨県甲府市東光寺2丁目
|
| 物件種目 |
中古一戸建て |
| 価格 |
400万円 |
借地期間・地代(月額) |
- |
| 権利金 |
- |
敷金または保証金 |
- / - |
| 維持費等 |
- |
その他一時金 |
- |
| 間取り |
6K(和 5.4・4.5・4.5・4・2.7 洋 5.4 K 4.3) |
建物面積 |
82.24m² |
| 土地権利 |
所有権 |
建物構造 |
木造 |
| 土地面積 |
99.64m²(公簿) |
私道負担面積 |
なし |
| 築年月 |
1965年1月(築60年11ヶ月)
|
都市計画 |
市街化区域 |
| 建物名 |
|
建築確認番号 |
- |
| 用途地域 |
1種中高 |
駐車場 |
有 無料 |
| 建ぺい率 |
60% |
容積率 |
200% |
| 階建 |
2階建 |
接道状況 |
西 2.1m 公道 接面12.4m
|
| 地目 |
宅地 |
地勢 |
平坦 |
| 国土法届出 |
- |
セットバック |
要 5.45m² |
| アピールポイント |
やまなみ不動産HPに2025.04.20新写真UP
JR身延線、善光寺駅徒歩8分、二拠点生活をご検討される首都圏、近県在住の皆さんにもお勧めです!!定期的に売主様が、ご利用になりますが、基本的に、お客様の、ご都合が合えば、いつでも内見ご案内させて頂きます(^^)/ 土日は内見予約が込み合いますので、事前のご予約希望致します(^_-)-☆
◎お客様へのお願い
:お問合せ、内見予約等、外出、先約のお客様対応等にて、お電話頂けましても、タイミングで、でれないことも多々ございますので、携帯へのお問い合わせがスムーズです(折り返しのご連絡させて頂けます)店主 吉田携帯090-4753-8954
※築古物件、(床たわみ、雨漏り箇所等有)の為、経年劣化あり、修繕は必須。売主の契約適合責任は不問にてお願い致します。
ご内見予約、お問合せ、様々な交渉ごと等、お気軽にご連絡ください。
お問合せ、内見予約はお気軽に(^^)/
担当 吉田 090-4753-8954 まで 2025.04.21 やまなみ不動産 店主記す.
※※詳細は、やまなみ不動産自社HPよりご覧ください(^^)/ |
| リフォーム履歴 |
- |
| リノベーション履歴 |
- |
| 瑕疵保証 |
- |
| 瑕疵保険 |
- |
| 評価・証明書 |
- |
| 備考 |
主要採光面:南向き
|
| エネルギー消費性能 |
- |
| 断熱性能 |
- |
| 目安光熱費 |
- |
| バス・トイレ |
浴室に窓あり |
| キッチン |
- |
| 設備・サービス |
上水道、下水道、都市ガス、電気、庭、ワイドバルコニー |
| その他 |
- |
| 現況 |
空家 |
引渡可能時期 |
相談 |
| 物件番号 |
6984236715 |
仲介手数料 |
19.8万円 |
| 情報公開日 |
2025年2月14日 |
次回更新予定日 |
2025年11月17日 |
| ケータイ用バーコード |
- スマートフォンでこの物件を見る
- スマートフォンからもこの物件をご覧になれます。
|
※「-」と表示されている項目については、情報提供会社にご確認ください。
| 周辺施設 |
近所の愛宕山より 週末の近所のハイキングにいかが(^^)/ |
| 距離 |
2300m |
写真を見る |
| 周辺施設 |
山梨県愛宕山子供の国 まで2,300m 今も昔も変わらぬ子供の国 |
| 距離 |
2300m |
写真を見る |
| 周辺施設 |
甲斐善光寺 徒歩9分 お散歩コースにいかがですか |
| 距離 |
900m |
写真を見る |
ここから簡単にお問い合わせをすることができます。
(SSLでの暗号化での送信を希望されるお客さまは
こちら
よりお問い合わせください)
お問い合わせを行う前に
「個人情報の取り扱いについて」を必ずお読みください。
「個人情報の取り扱いについて」に同意いただいた場合は「上記にご同意の上 確認画面へ進む」のボタンをクリックしてください。
個人情報の取り扱いについて
皆さまが送付された個人情報はアットホーム(株)のサーバを経由し、お問い合わせ先の不動産会社にメールまたはFAXにて転送されるためアットホーム(株)にも保管されます。アットホーム(株)で保管された個人情報の取り扱いについては、【こちら】をご覧ください。
また、本画面でご記入いただいた個人情報は、お問い合わせ先の不動産会社でも保管します。 お問い合わせ先の不動産会社が保管する個人情報の取り扱いについては、不動産会社に直接お問い合わせください。
山梨県知事免許(2)第2471号 |
|---|
- 交通:
- JR中央線/石和温泉駅 【バス】 山梨交通大黒橋 停歩1分
- 山梨県笛吹市石和町東高橋160
- TEL:
- 055-262-7010
- FAX:
- 055-231-5721
- 所属団体:
- (公社)山梨県宅地建物取引業協会会員(公社)首都圏不動産公正取引協議会加盟
取引態様:専任媒介  - 00269698
|
- スマートフォンで
この不動産会社を見る

|
- 提携サイト等より掲載されている物件情報につきましては、不動産会社詳細情報にリンクされていないものがあります。
- 物件に関するお問合せは、物件詳細ページの「情報提供会社」に表示されている不動産会社へ直接お願いいたします。
- 間取図は、現況を優先させていただきます。
- 映像は物件の一部を撮影したものです。物件の契約にあたっての最終判断はご自身の判断に基づいて行ってください。
- 仲介手数料について

アットホームは物件情報の適正化に努めております。
内容に誤りがある場合にはこちらへご連絡ください。