福島県福島市笹谷字桜水(桜水駅)の一戸建て:物件詳細
交通 所在地 |
駅徒歩 |
価格 |
間取り 建物面積 |
土地面積 私道負担面積 |
物件種目 築年月 |
|
福島交通飯坂線/桜水
福島県福島市笹谷字桜水
|
7分
|
1,380万円
|
6DK
126.76m²
|
236.82m²
-
|
中古一戸建て
1968年8月(築57年7ヶ月)
|
|
駐車場3台分以上、2面採光、閑静な住宅街、整形地
|
|
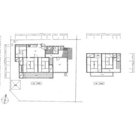
間取図
|
|
<
その他の画像
>
|
| 交通 | 福島交通飯坂線 桜水駅 徒歩7分 |
| 所在地 |
福島県福島市笹谷字桜水
|
| 物件種目 |
中古一戸建て |
| 価格 |
1,380万円 |
借地期間・地代(月額) |
- |
| 権利金 |
- |
敷金または保証金 |
- / - |
| 維持費等 |
- |
その他一時金 |
- |
| 間取り |
6DK(和 6・6・4.5・8・6 洋 8 DK 8) |
建物面積 |
126.76m² |
| 土地権利 |
所有権 |
建物構造 |
木造 |
| 土地面積 |
236.82m²(公簿) |
私道負担面積 |
- |
| 築年月 |
1968年8月(築57年7ヶ月)
|
都市計画 |
市街化区域 |
| 建物名 |
|
建築確認番号 |
- |
| 用途地域 |
1種低層 |
駐車場 |
- |
| 建ぺい率 |
50% |
容積率 |
100% |
| 階建 |
2階建 |
接道状況 |
西 5.0m
・ 南 5.0m
・ 二方道路
|
| 地目 |
宅地 |
地勢 |
平坦 |
| 国土法届出 |
- |
セットバック |
- |
| アピールポイント |
◆昭和56年9月増改築済◆桜水駅 徒歩7分◆スーパーマーケット徒歩9分◆医院徒歩10分以内◆銀行徒歩9分◆コンビニ徒歩7分◆生活利便地域◆防犯施錠窓ガラス |
| リフォーム履歴 |
- |
| リノベーション履歴 |
1981年9月 居室(1階)、外壁パワーボード、軒裏防火板、外構 ※実施年月は最も古い履歴を表示 |
| 瑕疵保証 |
- |
| 瑕疵保険 |
- |
| 評価・証明書 |
- |
| 備考 |
バルコニー:9.87m²
主要採光面:南西向き
◆桜水駅 徒歩7分◆スーパーマーケット徒歩9分◆医院徒歩10分以内◆銀行徒歩9分◆コンビニ徒歩7分◆生活利便地域◆防犯施錠窓ガラス居室(1階)◆ 昭和56年9月増改築済 ◆1階居室一部・外壁パワーボード、軒裏防火板、外構等
|
| エネルギー消費性能 |
- |
| 断熱性能 |
- |
| 目安光熱費 |
- |
| バス・トイレ |
追焚機能、温水洗浄便座、トイレ2ヶ所、浴室に窓あり |
| キッチン |
2口コンロ |
| 設備・サービス |
床下収納、下水道、都市ガス、エアコン、庭、ウッドデッキ、照明器具 |
| その他 |
- |
| 現況 |
空家 |
引渡可能時期 |
相談 |
| 物件番号 |
6984534211 |
仲介手数料 |
52.1万円 |
| 情報公開日 |
2024年12月15日 |
次回更新予定日 |
2026年2月19日 |
| ケータイ用バーコード |
- スマートフォンでこの物件を見る
- スマートフォンからもこの物件をご覧になれます。
|
※「-」と表示されている項目については、情報提供会社にご確認ください。
| 周辺施設 |
セブンイレブン福島桜水店 |
| 距離 |
537m |
| 周辺施設 |
福島厚生会福島第一病院 |
| 距離 |
1371m |
ここから簡単にお問い合わせをすることができます。
(SSLでの暗号化での送信を希望されるお客さまは
こちら
よりお問い合わせください)
お問い合わせを行う前に
「個人情報の取り扱いについて」を必ずお読みください。
「個人情報の取り扱いについて」に同意いただいた場合は「上記にご同意の上 確認画面へ進む」のボタンをクリックしてください。
個人情報の取り扱いについて
皆さまが送付された個人情報はアットホーム(株)のサーバを経由し、お問い合わせ先の不動産会社にメールまたはFAXにて転送されるためアットホーム(株)にも保管されます。アットホーム(株)で保管された個人情報の取り扱いについては、【こちら】をご覧ください。
また、本画面でご記入いただいた個人情報は、お問い合わせ先の不動産会社でも保管します。 お問い合わせ先の不動産会社が保管する個人情報の取り扱いについては、不動産会社に直接お問い合わせください。
福島県知事免許(4)第2899号 |
|---|
- 交通:
- JR東北本線/東福島駅 【バス】10分 富塚 停歩3分
- 福島県福島市南矢野目字端下1-9
- TEL:
- 024-529-7533
- FAX:
- 024-529-7534
- 所属団体:
- (公社)全日本不動産協会会員東北地区不動産公正取引協議会加盟
取引態様:専任媒介  - 20005385
|
- スマートフォンで
この不動産会社を見る

|
- 提携サイト等より掲載されている物件情報につきましては、不動産会社詳細情報にリンクされていないものがあります。
- 物件に関するお問合せは、物件詳細ページの「情報提供会社」に表示されている不動産会社へ直接お願いいたします。
- 間取図は、現況を優先させていただきます。
- 映像は物件の一部を撮影したものです。物件の契約にあたっての最終判断はご自身の判断に基づいて行ってください。
- 仲介手数料について

アットホームは物件情報の適正化に努めております。
内容に誤りがある場合にはこちらへご連絡ください。