奈良県吉野郡大淀町大字今木(薬水駅)の一戸建て:物件詳細
交通 所在地 |
駅徒歩 |
価格 |
間取り 建物面積 |
土地面積 私道負担面積 |
物件種目 築年月 |
|
近鉄吉野線/薬水
奈良県吉野郡大淀町大字今木
|
26分
|
298万円
|
2LDK
58.76m²
|
213.07m²
-
|
中古一戸建て
1925年1月(築101年2ヶ月)
|
|
駐車場2台分、隣接建物距離2m以上
|
|
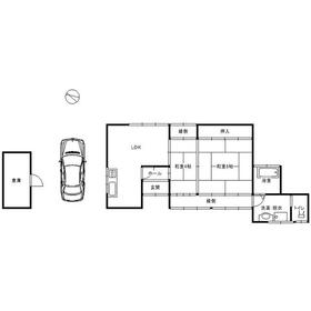
間取図
|
|
その他の画像
|
| 交通 | 近鉄吉野線 薬水駅 徒歩26分 |
| 所在地 |
奈良県吉野郡大淀町大字今木
|
| 物件種目 |
中古一戸建て |
| 価格 |
298万円 |
借地期間・地代(月額) |
- |
| 権利金 |
- |
敷金または保証金 |
- / - |
| 維持費等 |
- |
その他一時金 |
- |
| 間取り |
2LDK(和 4・8 LDK 10) |
建物面積 |
58.76m² |
| 土地権利 |
所有権 |
建物構造 |
木造 |
| 土地面積 |
213.07m²(公簿) |
私道負担面積 |
- |
| 築年月 |
1925年1月(築101年2ヶ月)
|
都市計画 |
調整区域 |
| 建物名 |
|
建築確認番号 |
- |
| 用途地域 |
- |
駐車場 |
有 無料 |
| 建ぺい率 |
70% |
容積率 |
400% |
| 階建 |
平屋建 |
接道状況 |
南西 12.0m 公道 接面29.4m
・ 北東 3.6m 公道 接面20.8m
・ 二方道路
|
| 地目 |
宅地 |
地勢 |
平坦 |
| 国土法届出 |
- |
セットバック |
- |
| アピールポイント |
密接していない隣接建物と2m以上離れた住戸、更に排気に有害物質が少なく環境にもやさしいプロパンガス仕様だから、災害時ガスが止まっても復旧が早いといわれています。またゆったりめの延床面積58.76㎡の居室空間で、その上季節の変化を日々感じながら暮らせる庭のある住戸だから、アウトドアの心地よい空間を作り上げる楽しみが得られます。ちなみに昭和の風情漂う縁側付です。自然に団らんが生まれる2LDK。是非見学にお越しください。 |
| リフォーム履歴 |
- |
| リノベーション履歴 |
- |
| 瑕疵保証 |
- |
| 瑕疵保険 |
- |
| 評価・証明書 |
- |
| 備考 |
主要採光面:南西向き
|
| エネルギー消費性能 |
- |
| 断熱性能 |
- |
| 目安光熱費 |
- |
| バス・トイレ |
シャワー付洗面化粧台、汲取、浴室に窓あり |
| キッチン |
2口コンロ |
| 設備・サービス |
上水道、プロパンガス、電気、側溝、庭、縁側、照明器具 |
| その他 |
- |
| 現況 |
空家 |
引渡可能時期 |
相談 |
| 物件番号 |
6984553762 |
|
|
| 情報公開日 |
2025年1月28日 |
次回更新予定日 |
2026年2月19日 |
| ケータイ用バーコード |
- スマートフォンでこの物件を見る
- スマートフォンからもこの物件をご覧になれます。
|
※「-」と表示されている項目については、情報提供会社にご確認ください。
ここから簡単にお問い合わせをすることができます。
(SSLでの暗号化での送信を希望されるお客さまは
こちら
よりお問い合わせください)
お問い合わせを行う前に
「個人情報の取り扱いについて」を必ずお読みください。
「個人情報の取り扱いについて」に同意いただいた場合は「上記にご同意の上 確認画面へ進む」のボタンをクリックしてください。
個人情報の取り扱いについて
皆さまが送付された個人情報はアットホーム(株)のサーバを経由し、お問い合わせ先の不動産会社にメールまたはFAXにて転送されるためアットホーム(株)にも保管されます。アットホーム(株)で保管された個人情報の取り扱いについては、【こちら】をご覧ください。
また、本画面でご記入いただいた個人情報は、お問い合わせ先の不動産会社でも保管します。 お問い合わせ先の不動産会社が保管する個人情報の取り扱いについては、不動産会社に直接お問い合わせください。
奈良県知事免許(14)第963号 |
|---|
- 交通:
- 近鉄御所線/近鉄御所駅 徒歩5分
- 奈良県御所市大字三室2-1
- TEL:
- 0745-65-2103
- FAX:
- 0745-65-1911
- 所属団体:
- (公社)奈良県宅地建物取引業協会会員(公社)近畿地区不動産公正取引協議会加盟
取引態様:一般媒介  - 50020912
|
- スマートフォンで
この不動産会社を見る

|
- 提携サイト等より掲載されている物件情報につきましては、不動産会社詳細情報にリンクされていないものがあります。
- 物件に関するお問合せは、物件詳細ページの「情報提供会社」に表示されている不動産会社へ直接お願いいたします。
- 間取図は、現況を優先させていただきます。
- 映像は物件の一部を撮影したものです。物件の契約にあたっての最終判断はご自身の判断に基づいて行ってください。
- 仲介手数料について

アットホームは物件情報の適正化に努めております。
内容に誤りがある場合にはこちらへご連絡ください。