山口県下関市彦島弟子待町1丁目の一戸建て:物件詳細
交通 所在地 |
駅徒歩 |
価格 |
間取り 建物面積 |
土地面積 私道負担面積 |
物件種目 築年月 |
|
【バス】サンデン交通 弟子待二丁目 停歩1分
山口県下関市彦島弟子待町1丁目
|
-
|
1,699万円
|
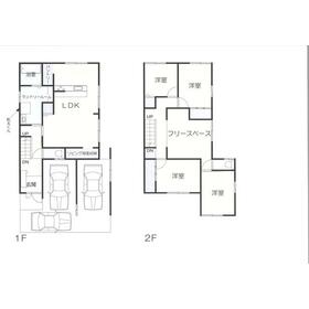
4LDK
117.88m²
|
166.80m²
-
|
中古一戸建て
1976年1月(築50年)
|
|
駐車場2台分、南向き、バス1坪以上
|
|
間取図
|
外観
|
<
その他の画像
>
|
| 交通 | 【バス】 サンデン交通 弟子待二丁目 停歩1分 |
| 所在地 |
山口県下関市彦島弟子待町1丁目
|
| 物件種目 |
中古一戸建て |
| 価格 |
1,699万円 |
借地期間・地代(月額) |
- |
| 権利金 |
- |
敷金または保証金 |
- / - |
| 維持費等 |
- |
その他一時金 |
- |
| 間取り |
4LDK |
建物面積 |
117.88m² |
| 土地権利 |
所有権 |
建物構造 |
木造 |
| 土地面積 |
166.80m²(公簿) |
私道負担面積 |
- |
| 築年月 |
1976年1月(築50年)
|
都市計画 |
市街化区域 |
| 建物名 |
彦島弟子待町1丁目 |
建築確認番号 |
- |
| 用途地域 |
1種住居 |
駐車場 |
有 無料 |
| 建ぺい率 |
60% |
容積率 |
200% |
| 階建 |
2階建 |
接道状況 |
西 8.0m 公道 接面7.5m
|
| 地目 |
宅地 |
地勢 |
平坦 |
| 国土法届出 |
- |
セットバック |
- |
| アピールポイント |
リノベーション内容
①外壁塗装
②駐車場増設工事
③全室ペアガラス新設
④玄関ドア新設
⑤宅内給水・排水管新設
⑥ユニットバス新設
⑦洗面台新設
⑧幹太くん新設
⑨システムキッチン新設
⑩パントリー設置
⑪リビング収納2カ所設置
⑫1階・2階トイレ新設
⑬全室クロス張替え
⑭全室フローリング・ロイヤルウッド張り
⑮全室照明設置 |
| リフォーム履歴 |
■水回り:2024年12月 キッチン、浴室、トイレ、洗面所、給排水管、給湯器 ■内装:2024年12月 内装全面(床・壁・天井・建具) ■外装:2024年12月 外壁 ■その他:2024年12月 建物のサッシは全て複層ガラスに新設 ※実施年月は最も古い履歴を表示 |
| リノベーション履歴 |
- |
| 瑕疵保証 |
- |
| 瑕疵保険 |
- |
| 評価・証明書 |
- |
| 備考 |
主要採光面:南向き
|
| エネルギー消費性能 |
- |
| 断熱性能 |
- |
| 目安光熱費 |
- |
| バス・トイレ |
浴室暖房、浴室乾燥機、オートバス、追焚機能、高温差湯式、シャワー付洗面化粧台、温水洗浄便座、トイレ2ヶ所、浴室に窓あり |
| キッチン |
カウンターキッチン、システムキッチン、3口以上コンロ、グリル |
| 設備・サービス |
クローゼット、全居室フローリング、上水道、下水道、都市ガス、電気、側溝、ダウンライト、照明器具、火災警報器(報知機)、複層ガラス |
| その他 |
- |
| 現況 |
空家 |
引渡可能時期 |
即時 |
| 物件番号 |
6984746027 |
仲介手数料 |
不要 |
| 情報公開日 |
2025年1月8日 |
次回更新予定日 |
2026年1月6日 |
| ケータイ用バーコード |
- スマートフォンでこの物件を見る
- スマートフォンからもこの物件をご覧になれます。
|
※「-」と表示されている項目については、情報提供会社にご確認ください。
ここから簡単にお問い合わせをすることができます。
(SSLでの暗号化での送信を希望されるお客さまは
こちら
よりお問い合わせください)
お問い合わせを行う前に
「個人情報の取り扱いについて」を必ずお読みください。
「個人情報の取り扱いについて」に同意いただいた場合は「上記にご同意の上 確認画面へ進む」のボタンをクリックしてください。
個人情報の取り扱いについて
皆さまが送付された個人情報はアットホーム(株)のサーバを経由し、お問い合わせ先の不動産会社にメールまたはFAXにて転送されるためアットホーム(株)にも保管されます。アットホーム(株)で保管された個人情報の取り扱いについては、【こちら】をご覧ください。
また、本画面でご記入いただいた個人情報は、お問い合わせ先の不動産会社でも保管します。 お問い合わせ先の不動産会社が保管する個人情報の取り扱いについては、不動産会社に直接お問い合わせください。
山口県知事免許(4)第3347号 |
|---|
- 交通:
- JR山陰本線/幡生駅 徒歩5分 【バス】2分 サンデン交通幡生口
- 山口県下関市武久町1丁目2番5号
- TEL:
- 083-255-2280
- FAX:
- 083-255-2281
- 所属団体:
- (公社)山口県宅地建物取引業協会会員中国地区不動産公正取引協議会加盟
取引態様:売主  - 80504323
|
- スマートフォンで
この不動産会社を見る

|
- 提携サイト等より掲載されている物件情報につきましては、不動産会社詳細情報にリンクされていないものがあります。
- 物件に関するお問合せは、物件詳細ページの「情報提供会社」に表示されている不動産会社へ直接お願いいたします。
- 間取図は、現況を優先させていただきます。
- 映像は物件の一部を撮影したものです。物件の契約にあたっての最終判断はご自身の判断に基づいて行ってください。
- 仲介手数料について

アットホームは物件情報の適正化に努めております。
内容に誤りがある場合にはこちらへご連絡ください。