群馬県太田市高林東町(太田駅)の一戸建て:物件詳細
交通 所在地 |
駅徒歩 |
価格 |
間取り 建物面積 |
土地面積 私道負担面積 |
物件種目 築年月 |
|
東武伊勢崎線/太田 [バス利用可] バス 14分 高林バス停 停歩8分
群馬県太田市高林東町
|
45分
|
2,150万円
|
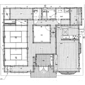
2LDK
109.30m²
|
269.03m²
-
|
中古一戸建て
1999年10月(築26年3ヶ月)
|
|
駐車場3台分以上、南向き
|
|
間取図
|
|
<
その他の画像
>
|
|
|
| 交通 | 東武伊勢崎線 太田駅 徒歩45分 [バス利用可] バス 14分 高林バス停 停歩8分 |
| 所在地 |
群馬県太田市高林東町
|
| 物件種目 |
中古一戸建て |
| 価格 |
2,150万円 |
借地期間・地代(月額) |
- |
| 権利金 |
- |
敷金または保証金 |
- / - |
| 維持費等 |
- |
その他一時金 |
- |
| 間取り |
2LDK(洋 6・8) |
建物面積 |
109.30m² |
| 土地権利 |
所有権 |
建物構造 |
木造 |
| 土地面積 |
269.03m²(公簿) |
私道負担面積 |
- |
| 築年月 |
1999年10月(築26年3ヶ月)
|
都市計画 |
市街化区域 |
| 建物名 |
高林東町 平家戸建て |
建築確認番号 |
- |
| 用途地域 |
1種中高 |
駐車場 |
- |
| 建ぺい率 |
60% |
容積率 |
200% |
| 階建 |
平屋建 |
接道状況 |
南
|
| 地目 |
宅地 |
地勢 |
平坦 |
| 国土法届出 |
- |
セットバック |
- |
| アピールポイント |
陽当りの良い、平家です。道路は南に面します。太田南小学校まで徒歩圏内。中庭や天井裏部屋もあります。 |
| リフォーム履歴 |
- |
| リノベーション履歴 |
- |
| 瑕疵保証 |
- |
| 瑕疵保険 |
- |
| 評価・証明書 |
- |
| 備考 |
主要採光面:南向き
|
| エネルギー消費性能 |
- |
| 断熱性能 |
- |
| 目安光熱費 |
- |
| バス・トイレ |
浴室乾燥機 |
| キッチン |
3口以上コンロ |
| 設備・サービス |
ウォークインクローゼット、エアコン2台以上、床暖房、クローゼット、出窓、上水道、ビルトインエアコン |
| その他 |
- |
| 現況 |
空家 |
引渡可能時期 |
相談 |
| 物件番号 |
6984964402 |
仲介手数料 |
77万円 |
| 情報公開日 |
2025年12月9日 |
次回更新予定日 |
2025年12月23日 |
| ケータイ用バーコード |
- スマートフォンでこの物件を見る
- スマートフォンからもこの物件をご覧になれます。
|
※「-」と表示されている項目については、情報提供会社にご確認ください。
| 周辺施設 |
ベイシアマート太田富沢店 |
| 距離 |
2293m |
| 周辺施設 |
アイオー信用金庫高林支店 |
| 距離 |
853m |
ここから簡単にお問い合わせをすることができます。
(SSLでの暗号化での送信を希望されるお客さまは
こちら
よりお問い合わせください)
お問い合わせを行う前に
「個人情報の取り扱いについて」を必ずお読みください。
「個人情報の取り扱いについて」に同意いただいた場合は「上記にご同意の上 確認画面へ進む」のボタンをクリックしてください。
個人情報の取り扱いについて
皆さまが送付された個人情報はアットホーム(株)のサーバを経由し、お問い合わせ先の不動産会社にメールまたはFAXにて転送されるためアットホーム(株)にも保管されます。アットホーム(株)で保管された個人情報の取り扱いについては、【こちら】をご覧ください。
また、本画面でご記入いただいた個人情報は、お問い合わせ先の不動産会社でも保管します。 お問い合わせ先の不動産会社が保管する個人情報の取り扱いについては、不動産会社に直接お問い合わせください。
群馬県知事免許(6)第6038号 |
|---|
- 交通:
- 東武伊勢崎線/太田駅 徒歩10分
- 群馬県太田市飯田町595
- TEL:
- 0276-46-2667
- FAX:
- 0276-46-2668
- 所属団体:
- (一社)群馬県宅地建物取引業協会会員(公社)首都圏不動産公正取引協議会加盟
取引態様:専任媒介  - 00041970
|
- スマートフォンで
この不動産会社を見る

|
- 提携サイト等より掲載されている物件情報につきましては、不動産会社詳細情報にリンクされていないものがあります。
- 物件に関するお問合せは、物件詳細ページの「情報提供会社」に表示されている不動産会社へ直接お願いいたします。
- 間取図は、現況を優先させていただきます。
- 映像は物件の一部を撮影したものです。物件の契約にあたっての最終判断はご自身の判断に基づいて行ってください。
- 仲介手数料について

アットホームは物件情報の適正化に努めております。
内容に誤りがある場合にはこちらへご連絡ください。