兵庫県川西市清和台東4丁目(川西能勢口駅)の一戸建て:物件詳細
交通 所在地 |
駅徒歩 |
価格 |
間取り 建物面積 |
土地面積 私道負担面積 |
物件種目 築年月 |
|
阪急宝塚線/川西能勢口 [バス利用可] バス 18分 清和台南停留所 停歩10分
兵庫県川西市清和台東4丁目
|
6500m
|
2,280万円
|
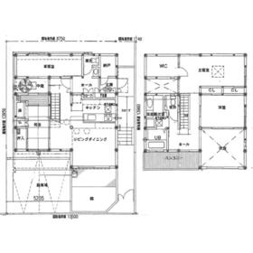
4LDK
117.58m²
|
146.64m²
なし
|
中古一戸建て
2003年9月(築22年4ヶ月)
|
|
駐車場2台分、南向き、整形地
|
|
間取図
外観
|
間取図
|
その他の画像
|
| 交通 | 阪急宝塚線 川西能勢口駅 徒歩6500m [バス利用可] バス 18分 清和台南停留所 停歩10分 |
| 所在地 |
兵庫県川西市清和台東4丁目
|
| 物件種目 |
中古一戸建て |
| 価格 |
2,280万円 |
借地期間・地代(月額) |
- |
| 権利金 |
- |
敷金または保証金 |
- / - |
| 維持費等 |
- |
その他一時金 |
- |
| 間取り |
4LDK |
建物面積 |
117.58m² |
| 土地権利 |
所有権 |
建物構造 |
木造 |
| 土地面積 |
146.64m²(公簿) |
私道負担面積 |
なし |
| 築年月 |
2003年9月(築22年4ヶ月)
|
都市計画 |
市街化区域 |
| 建物名 |
|
建築確認番号 |
- |
| 用途地域 |
1種低層 |
駐車場 |
- |
| 建ぺい率 |
60% |
容積率 |
150% |
| 階建 |
2階建 |
接道状況 |
南 6.2m 公道 接面10.5m
|
| 地目 |
宅地 |
地勢 |
平坦 |
| 国土法届出 |
- |
セットバック |
- |
| アピールポイント |
2台駐車、ウオーキングクローゼット、トイレ2ヶ所 |
| リフォーム履歴 |
■外装:2018年8月 外壁 ※実施年月は最も古い履歴を表示 |
| リノベーション履歴 |
- |
| 瑕疵保証 |
- |
| 瑕疵保険 |
- |
| 評価・証明書 |
- |
| 備考 |
主要採光面:南向き
|
| エネルギー消費性能 |
- |
| 断熱性能 |
- |
| 目安光熱費 |
- |
| バス・トイレ |
トイレ2ヶ所 |
| キッチン |
3口以上コンロ |
| 設備・サービス |
ウォークインクローゼット、シャッター雨戸、上水道、下水道、都市ガス、庭 |
| その他 |
- |
| 現況 |
空家 |
引渡可能時期 |
即時 |
| 物件番号 |
6985015562 |
仲介手数料 |
売買代金の3% |
| 情報公開日 |
2025年12月4日 |
次回更新予定日 |
2026年1月1日 |
| ケータイ用バーコード |
- スマートフォンでこの物件を見る
- スマートフォンからもこの物件をご覧になれます。
|
※「-」と表示されている項目については、情報提供会社にご確認ください。
ここから簡単にお問い合わせをすることができます。
(SSLでの暗号化での送信を希望されるお客さまは
こちら
よりお問い合わせください)
お問い合わせを行う前に
「個人情報の取り扱いについて」を必ずお読みください。
「個人情報の取り扱いについて」に同意いただいた場合は「上記にご同意の上 確認画面へ進む」のボタンをクリックしてください。
個人情報の取り扱いについて
皆さまが送付された個人情報はアットホーム(株)のサーバを経由し、お問い合わせ先の不動産会社にメールまたはFAXにて転送されるためアットホーム(株)にも保管されます。アットホーム(株)で保管された個人情報の取り扱いについては、【こちら】をご覧ください。
また、本画面でご記入いただいた個人情報は、お問い合わせ先の不動産会社でも保管します。 お問い合わせ先の不動産会社が保管する個人情報の取り扱いについては、不動産会社に直接お問い合わせください。
(株)水都大阪府知事免許(4)第55276号 |
|---|
- 交通:
- 地下鉄四つ橋線/西梅田駅
- 大阪府大阪市北区堂島2丁目1-39 日食物産ビル4階
- TEL:
- 06-6442-0133
- 所属団体:
- (一社)大阪府宅地建物取引業協会会員(公社)近畿地区不動産公正取引協議会加盟
取引態様:専属専任媒介 |
- 提携サイト等より掲載されている物件情報につきましては、不動産会社詳細情報にリンクされていないものがあります。
- 物件に関するお問合せは、物件詳細ページの「情報提供会社」に表示されている不動産会社へ直接お願いいたします。
- 間取図は、現況を優先させていただきます。
- 映像は物件の一部を撮影したものです。物件の契約にあたっての最終判断はご自身の判断に基づいて行ってください。
- 仲介手数料について

アットホームは物件情報の適正化に努めております。
内容に誤りがある場合にはこちらへご連絡ください。