広島県大竹市玖波6丁目(玖波駅)の一戸建て:物件詳細
交通 所在地 |
駅徒歩 |
価格 |
間取り 建物面積 |
土地面積 私道負担面積 |
物件種目 築年月 |
|
JR山陽本線/玖波
広島県大竹市玖波6丁目
|
3分
|
1,500万円
|
8SLDK
236.19m²
|
363.84m²
-
|
中古一戸建て
1926年12月(築99年1ヶ月)
|
|
駐車場3台分以上、閑静な住宅街、庭10坪以上
|
|
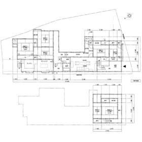
間取図
|
|
<
その他の画像
>
|
| 交通 | JR山陽本線 玖波駅 徒歩3分 |
| 所在地 |
広島県大竹市玖波6丁目
|
| 物件種目 |
中古一戸建て |
| 価格 |
1,500万円 |
借地期間・地代(月額) |
- |
| 権利金 |
- |
敷金または保証金 |
- / - |
| 維持費等 |
- |
その他一時金 |
- |
| 間取り |
8SLDK(和 8・8・8・8・6・6・4 洋 13 LDK 16 S 6) |
建物面積 |
236.19m² |
| 土地権利 |
所有権 |
建物構造 |
木造 |
| 土地面積 |
363.84m²(公簿) |
私道負担面積 |
- |
| 築年月 |
1926年12月(築99年1ヶ月)
|
都市計画 |
市街化区域 |
| 建物名 |
玖波売家戸建 |
建築確認番号 |
- |
| 用途地域 |
1種中高 |
駐車場 |
有 無料 |
| 建ぺい率 |
60% |
容積率 |
200% |
| 階建 |
2階建 |
接道状況 |
南西 4.5m 公道 接面16.7m
・ 北西 3.2m 公道 接面31.4m
・ 二方道路
|
| 地目 |
宅地 |
地勢 |
平坦 |
| 国土法届出 |
- |
セットバック |
要 |
| アピールポイント |
歴史のある文化住宅ならではの風情が、独特の魅力を醸し出します。詳細情報や見学のご予約は、お気軽にお問い合わせください。 |
| リフォーム履歴 |
- |
| リノベーション履歴 |
- |
| 瑕疵保証 |
- |
| 瑕疵保険 |
- |
| 評価・証明書 |
- |
| 備考 |
主要採光面:南東向き
■主要建物 木造瓦葺2階建:昭和元年築(建物前方)・平成2年増築(建物後方)
■附属建物 木造セメント瓦葺高床式平屋建:築年不詳(建物後方)
■建物は現況渡しになります。
■駐車場について、表側2台、裏側1台可。
■歴史のある文化住宅ならではの風情が、独特の魅力を醸し出します。詳細情報や見学のご予約は、お気軽にお問い合わせください。
|
| エネルギー消費性能 |
- |
| 断熱性能 |
- |
| 目安光熱費 |
- |
| バス・トイレ |
- |
| キッチン |
システムキッチン |
| 設備・サービス |
上水道、下水道、プロパンガス |
| その他 |
- |
| 現況 |
空家 |
引渡可能時期 |
相談 |
| 物件番号 |
6985035106 |
|
|
| 情報公開日 |
2025年12月15日 |
次回更新予定日 |
2025年12月29日 |
| ケータイ用バーコード |
- スマートフォンでこの物件を見る
- スマートフォンからもこの物件をご覧になれます。
|
※「-」と表示されている項目については、情報提供会社にご確認ください。
| 周辺施設 |
ニューヤマザキデイリーストア大竹玖波店 |
| 距離 |
805m |
ここから簡単にお問い合わせをすることができます。
(SSLでの暗号化での送信を希望されるお客さまは
こちら
よりお問い合わせください)
お問い合わせを行う前に
「個人情報の取り扱いについて」を必ずお読みください。
「個人情報の取り扱いについて」に同意いただいた場合は「上記にご同意の上 確認画面へ進む」のボタンをクリックしてください。
個人情報の取り扱いについて
皆さまが送付された個人情報はアットホーム(株)のサーバを経由し、お問い合わせ先の不動産会社にメールまたはFAXにて転送されるためアットホーム(株)にも保管されます。アットホーム(株)で保管された個人情報の取り扱いについては、【こちら】をご覧ください。
また、本画面でご記入いただいた個人情報は、お問い合わせ先の不動産会社でも保管します。 お問い合わせ先の不動産会社が保管する個人情報の取り扱いについては、不動産会社に直接お問い合わせください。
広島県知事免許(11)第5085号 |
|---|
- 交通:
- JR山陽本線/大竹駅 徒歩5分
- 広島県大竹市油見1丁目1-6
- TEL:
- 0827-53-0041
- FAX:
- 0827-53-4446
- 所属団体:
- (公社)広島県宅地建物取引業協会会員中国地区不動産公正取引協議会加盟
取引態様:媒介  - 50022393
|
- スマートフォンで
この不動産会社を見る

|
- 提携サイト等より掲載されている物件情報につきましては、不動産会社詳細情報にリンクされていないものがあります。
- 物件に関するお問合せは、物件詳細ページの「情報提供会社」に表示されている不動産会社へ直接お願いいたします。
- 間取図は、現況を優先させていただきます。
- 映像は物件の一部を撮影したものです。物件の契約にあたっての最終判断はご自身の判断に基づいて行ってください。
- 仲介手数料について

アットホームは物件情報の適正化に努めております。
内容に誤りがある場合にはこちらへご連絡ください。