熊本県水俣市浜町2丁目(水俣駅)の一戸建て:物件詳細
交通 所在地 |
駅徒歩 |
価格 |
間取り 建物面積 |
土地面積 私道負担面積 |
物件種目 築年月 |
|
肥薩おれんじ鉄道/水俣 [バス利用可] バス 水俣郵便局前 停歩3分
熊本県水俣市浜町2丁目
|
15分
|
2,899万円
|
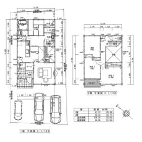
4LDK
109.30m²
|
175.95m²
-
|
新築一戸建て
2025年8月
|
|
駐車場3台分以上、バス1坪以上、24時間換気システム、吹抜、オール電化
|
|
間取図
|
外観
|
<
その他の画像
>
|
| 交通 | 肥薩おれんじ鉄道 水俣駅 徒歩15分 [バス利用可] バス 水俣郵便局前 停歩3分 |
|---|
| その他の交通 | 九州新幹線 新水俣駅 徒歩38分 |
| 所在地 |
熊本県水俣市浜町2丁目
|
| 物件種目 |
新築一戸建て |
| 価格 |
2,899万円 |
借地期間・地代(月額) |
- |
| 権利金 |
- |
敷金または保証金 |
- / - |
| 維持費等 |
- |
その他一時金 |
- |
| 間取り |
4LDK(和 4.5 洋 6・6・6.4) |
建物面積 |
109.30m² |
| 土地権利 |
所有権 |
建物構造 |
木造 |
| 土地面積 |
175.95m²(公簿) |
私道負担面積 |
- |
| 築年月 |
2025年8月
|
都市計画 |
非線引区域 |
| 建物名 |
|
建築確認番号 |
熊建第1241169号 |
| 用途地域 |
- |
駐車場 |
- |
| 建ぺい率 |
- |
容積率 |
- |
| 階建 |
2階建 |
接道状況 |
南西 5.0m 公道
・ 北東 5.0m 公道
|
| 地目 |
宅地 |
地勢 |
- |
| 国土法届出 |
- |
セットバック |
- |
| アピールポイント |
★家事楽動線の間取り★スキップフロアがあるお家(^^)/★広々LDK19帖★開放感ある吹抜け★駐車3台可能★シューズクローク付(^^♪★省令準耐火構造★耐熱性能等級4★一次エネルギー消費量等級6(^^)/★随所にタイル張り施工を施したこだわりのある建売モデル(^^)/★大工歴30年のハウスメーカー大工がつくったお洒落ハウス★複層ガラス採用♪十分なサイズでリラックスできる広さ1坪以上の浴室なので、上質のリラックスタイムが叶います♪鏡面保護シールが初々しい新築の建物♪エコ意識が自然と高まるオール電化仕様につき、IHで夏場でも汗ビッショリにならず涼しく料理できます♪システムキッチン付♪家族というコミュニティを支える4LDK♪是非その目でお確かめください♪ |
| リフォーム履歴 |
- |
| リノベーション履歴 |
- |
| 瑕疵保証 |
- |
| 瑕疵保険 |
- |
| 評価・証明書 |
- |
| 備考 |
-
|
| エネルギー消費性能 |
- |
| 断熱性能 |
- |
| 目安光熱費 |
- |
| バス・トイレ |
追焚機能、シャワー付洗面化粧台、トイレ2ヶ所 |
| キッチン |
システムキッチン、食器洗浄乾燥機、IHクッキングヒーター、3口以上コンロ |
| 設備・サービス |
シューズインクローゼット、クローゼット、モニター付インターホン、ディンプルキー、ダブルロックドア、上水道、下水道、電気、側溝、照明器具、火災警報器(報知機)、複層ガラス、Low-E ガラス |
| その他 |
- |
| 現況 |
完成済 |
引渡可能時期 |
相談 |
| 物件番号 |
6985134198 |
|
|
| 情報公開日 |
2025年2月23日 |
次回更新予定日 |
2025年12月29日 |
| ケータイ用バーコード |
- スマートフォンでこの物件を見る
- スマートフォンからもこの物件をご覧になれます。
|
※「-」と表示されている項目については、情報提供会社にご確認ください。
| 周辺施設 |
ファミリーマート水俣大黒店 |
| 距離 |
280m |
| 周辺施設 |
国保水俣市立総合医療センター |
| 距離 |
550m |
| 周辺施設 |
熊本中央信用金庫水俣支店 |
| 距離 |
240m |
ここから簡単にお問い合わせをすることができます。
(SSLでの暗号化での送信を希望されるお客さまは
こちら
よりお問い合わせください)
お問い合わせを行う前に
「個人情報の取り扱いについて」を必ずお読みください。
「個人情報の取り扱いについて」に同意いただいた場合は「上記にご同意の上 確認画面へ進む」のボタンをクリックしてください。
個人情報の取り扱いについて
皆さまが送付された個人情報はアットホーム(株)のサーバを経由し、お問い合わせ先の不動産会社にメールまたはFAXにて転送されるためアットホーム(株)にも保管されます。アットホーム(株)で保管された個人情報の取り扱いについては、【こちら】をご覧ください。
また、本画面でご記入いただいた個人情報は、お問い合わせ先の不動産会社でも保管します。 お問い合わせ先の不動産会社が保管する個人情報の取り扱いについては、不動産会社に直接お問い合わせください。
熊本県知事免許(1)第5741号 |
|---|
- 交通:
- 【バス】 今吉野 停歩4分
- 熊本県熊本市南区城南町さんさん1丁目10番地1
- TEL:
- 0964-42-9255
- FAX:
- 0964-42-8677
- 所属団体:
- (公社)全日本不動産協会会員(一社)九州不動産公正取引協議会加盟
取引態様:媒介  - 80501308
|
- スマートフォンで
この不動産会社を見る

|
- 提携サイト等より掲載されている物件情報につきましては、不動産会社詳細情報にリンクされていないものがあります。
- 物件に関するお問合せは、物件詳細ページの「情報提供会社」に表示されている不動産会社へ直接お願いいたします。
- 間取図は、現況を優先させていただきます。
- 映像は物件の一部を撮影したものです。物件の契約にあたっての最終判断はご自身の判断に基づいて行ってください。
- 仲介手数料について

アットホームは物件情報の適正化に努めております。
内容に誤りがある場合にはこちらへご連絡ください。