埼玉県熊谷市中央2丁目(熊谷駅)の一戸建て:物件詳細
交通 所在地 |
駅徒歩 |
価格 |
間取り 建物面積 |
土地面積 私道負担面積 |
物件種目 築年月 |
|
湘南新宿ライン(前橋〜小田原)/熊谷 [バス利用可] バス 6分 富士見中入り口 停歩4分
埼玉県熊谷市中央2丁目
|
23分
|
10,000万円
|
2SLDK
98.25m²
|
569.00m²
なし
|
中古一戸建て
2021年11月(築4年2ヶ月)
|
|
デザイナーズ、駐車場3台分以上、バス1坪以上、2面採光、閑静な住宅街、区画整理地内、整形地、庭10坪以上、設計住宅性能評価書あり、建設住宅性能評価書あり、前面棟無、隣接建物距離2m以上
|
|
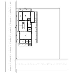
間取図
|
|
<
その他の画像
>
|
| 交通 | 湘南新宿ライン(前橋〜小田原) 熊谷駅 徒歩23分 [バス利用可] バス 6分 富士見中入り口 停歩4分 |
| 所在地 |
埼玉県熊谷市中央2丁目
|
| 物件種目 |
中古一戸建て |
| 価格 |
10,000万円 |
借地期間・地代(月額) |
- |
| 権利金 |
- |
敷金または保証金 |
- / - |
| 維持費等 |
- |
その他一時金 |
なし |
| 間取り |
2SLDK(洋 10・10 LDK 16 S 5.4・3.2) |
建物面積 |
98.25m² |
| 土地権利 |
所有権 |
建物構造 |
木造 |
| 土地面積 |
569.00m²(公簿) |
私道負担面積 |
なし |
| 築年月 |
2021年11月(築4年2ヶ月)
|
都市計画 |
市街化区域 |
| 建物名 |
|
建築確認番号 |
- |
| 用途地域 |
1種低層 |
駐車場 |
有 無料 |
| 建ぺい率 |
50% |
容積率 |
80% |
| 階建 |
平屋建 |
接道状況 |
南 4.0m 公道
・ 西 6.0m 公道
|
| 地目 |
宅地 |
地勢 |
平坦 |
| 国土法届出 |
- |
セットバック |
- |
| アピールポイント |
自宅でスパ体験ができるミストサウナ付、更にワンタッチでおまかせのオートバスだから、お風呂準備もオートマチック。また広々とした延床面積98.25㎡の居室空間で、その上閑静な住宅街立地の物件だから、騒々しい街の喧噪から離れて生活できます。ちなみに10坪以上の庭のある住まいです。家族が帰宅を焦がれる2SLDK。実際の空間をご自身で体感ください。 |
| リフォーム履歴 |
- |
| リノベーション履歴 |
- |
| 瑕疵保証 |
- |
| 瑕疵保険 |
- |
| 評価・証明書 |
- |
| 備考 |
主要採光面:南東向き
建築確認完了検査済証あり
|
| エネルギー消費性能 |
- |
| 断熱性能 |
- |
| 目安光熱費 |
- |
| バス・トイレ |
ミストサウナ、浴室暖房、浴室乾燥機、オートバス、追焚機能、シャワー付洗面化粧台、温水洗浄便座 |
| キッチン |
アイランドキッチン、システムキッチン、食器洗浄乾燥機、浄水器、IHクッキングヒーター、3口以上コンロ |
| 設備・サービス |
全居室収納、ウォークインクローゼット、シューズインクローゼット、クローゼット、モニター付インターホン、ディンプルキー、電動シャッター、全居室フローリング、上水道、下水道、都市ガス、電気、エアコン、庭、ウッドデッキ、人感センサー付照明、ダウンライト、照明器具、火災警報器(報知機)、インターネット対応、光ファイバー、BS端子、複層ガラス、Low-E ガラス |
| その他 |
- |
| 現況 |
空家 |
引渡可能時期 |
相談 |
| 物件番号 |
6985420696 |
仲介手数料 |
売買代金の3% |
| 情報公開日 |
2025年7月11日 |
次回更新予定日 |
2026年1月9日 |
| ケータイ用バーコード |
- スマートフォンでこの物件を見る
- スマートフォンからもこの物件をご覧になれます。
|
※「-」と表示されている項目については、情報提供会社にご確認ください。
| 周辺施設 |
ベルクフォルテ上之店 |
| 距離 |
841m |
写真を見る |
| 周辺施設 |
ローソン熊谷上之店 |
| 距離 |
714m |
写真を見る |
| 周辺施設 |
ドラッグセイムス熊谷中央店 |
| 距離 |
175m |
写真を見る |
| 周辺施設 |
熊谷市立富士見中学校 |
| 距離 |
408m |
写真を見る |
| 周辺施設 |
熊谷市立熊谷西小学校 |
| 距離 |
621m |
写真を見る |
| 周辺施設 |
まことこども園 |
| 距離 |
848m |
写真を見る |
| 周辺施設 |
医療法人熊谷総合病院 |
| 距離 |
957m |
写真を見る |
| 周辺施設 |
熊谷市役所 |
| 距離 |
1336m |
写真を見る |
ここから簡単にお問い合わせをすることができます。
(SSLでの暗号化での送信を希望されるお客さまは
こちら
よりお問い合わせください)
お問い合わせを行う前に
「個人情報の取り扱いについて」を必ずお読みください。
「個人情報の取り扱いについて」に同意いただいた場合は「上記にご同意の上 確認画面へ進む」のボタンをクリックしてください。
個人情報の取り扱いについて
皆さまが送付された個人情報はアットホーム(株)のサーバを経由し、お問い合わせ先の不動産会社にメールまたはFAXにて転送されるためアットホーム(株)にも保管されます。アットホーム(株)で保管された個人情報の取り扱いについては、【こちら】をご覧ください。
また、本画面でご記入いただいた個人情報は、お問い合わせ先の不動産会社でも保管します。 お問い合わせ先の不動産会社が保管する個人情報の取り扱いについては、不動産会社に直接お問い合わせください。
埼玉県知事免許(3)第22020号 |
|---|
- 交通:
- JR高崎線/熊谷駅 徒歩19分
- 埼玉県熊谷市中央2丁目247-1
- TEL:
- 048-598-6425
- FAX:
- 048-598-6426
- 所属団体:
- (公社)埼玉県宅地建物取引業協会会員(公社)首都圏不動産公正取引協議会加盟
取引態様:専任媒介  - 00104465
|
- スマートフォンで
この不動産会社を見る

|
- 提携サイト等より掲載されている物件情報につきましては、不動産会社詳細情報にリンクされていないものがあります。
- 物件に関するお問合せは、物件詳細ページの「情報提供会社」に表示されている不動産会社へ直接お願いいたします。
- 間取図は、現況を優先させていただきます。
- 映像は物件の一部を撮影したものです。物件の契約にあたっての最終判断はご自身の判断に基づいて行ってください。
- 仲介手数料について

アットホームは物件情報の適正化に努めております。
内容に誤りがある場合にはこちらへご連絡ください。