千葉県流山市鰭ケ崎(南流山駅)の一戸建て:物件詳細
交通 所在地 |
駅徒歩 |
価格 |
間取り 建物面積 |
土地面積 私道負担面積 |
物件種目 築年月 |
つくばエクスプレス/南流山
千葉県流山市鰭ケ崎
|
14分
|
3,480万円
|
2SLDK
81.56m²
|
107.92m²
なし
|
中古一戸建て
2008年9月(築17年2ヶ月)
|
駐車場2台分、バス1坪以上、閑静な住宅街
|
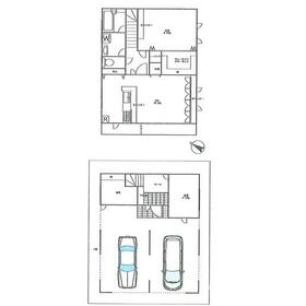
間取図
|
洗面
|
<
その他の画像
>
|
交通 | つくばエクスプレス 南流山駅 徒歩14分 |
---|
その他の交通 | JR武蔵野線 南流山駅 徒歩14分 流鉄流山線 鰭ヶ崎駅 徒歩4分 |
所在地 |
千葉県流山市鰭ケ崎
|
物件種目 |
中古一戸建て |
価格 |
3,480万円 |
借地期間・地代(月額) |
- |
権利金 |
- |
敷金または保証金 |
- / - |
維持費等 |
- |
その他一時金 |
- |
間取り |
2SLDK |
建物面積 |
81.56m² |
土地権利 |
所有権 |
建物構造 |
木造 |
土地面積 |
107.92m² |
私道負担面積 |
なし |
築年月 |
2008年9月(築17年2ヶ月)
|
都市計画 |
市街化区域 |
建物名 |
|
建築確認番号 |
- |
用途地域 |
1種中高 |
駐車場 |
有 無料 |
建ぺい率 |
60% |
容積率 |
200% |
階建 |
2階建 |
接道状況 |
南西 6.0m 公道 接面9.6m
|
地目 |
宅地 |
地勢 |
平坦 |
国土法届出 |
- |
セットバック |
- |
アピールポイント |
お家を購入する際には物件価格のほかにも、『登記代』『手付金』『保証料』などの様々な費用が発生することはご存じでしょうか?
一般的には物件価格の1割~2割が物件価格に上乗せで必要です。
しかし、それらを全て自己資金でカバーするのは難しい!!!!
ご安心ください!『株式会社 六華リアルエステート』は資金調達に自信があります!
☆他社で断られた・転職したて・借入がある・年収が不安な方ご相談ください♪
☆住宅ローン通過率90%以上!
☆頭金0円全額ローン可能♪
☆転職したて・借入がある・年収が不安な方ご相談ください♪
☆単身者・シングルマザーの方もお任せください! |
リフォーム履歴 |
■外装:2022年1月 外壁、屋根 ※実施年月は最も古い履歴を表示 |
リノベーション履歴 |
- |
瑕疵保証 |
- |
瑕疵保険 |
- |
評価・証明書 |
- |
備考 |
主要採光面:南西向き
|
エネルギー消費性能 |
- |
断熱性能 |
- |
目安光熱費 |
- |
バス・トイレ |
温水洗浄便座 |
キッチン |
カウンターキッチン、システムキッチン、3口以上コンロ |
設備・サービス |
ウォークインクローゼット、モニター付インターホン、上水道、下水道、都市ガス、ワイドバルコニー |
その他 |
- |
現況 |
空家 |
引渡可能時期 |
相談 |
物件番号 |
6985502309 |
|
|
情報公開日 |
2025年3月8日 |
次回更新予定日 |
2025年10月24日 |
ケータイ用バーコード |
- スマートフォンでこの物件を見る
- スマートフォンからもこの物件をご覧になれます。
|
※「-」と表示されている項目については、情報提供会社にご確認ください。
周辺施設 |
ローソン流山鰭ケ崎駅前店 |
距離 |
360m |
周辺施設 |
医療法人社団愛友会千葉愛友会記念病院 |
距離 |
492m |
ここから簡単にお問い合わせをすることができます。
(SSLでの暗号化での送信を希望されるお客さまは
こちら
よりお問い合わせください)
お問い合わせを行う前に
「個人情報の取り扱いについて」を必ずお読みください。
「個人情報の取り扱いについて」に同意いただいた場合は「上記にご同意の上 確認画面へ進む」のボタンをクリックしてください。
個人情報の取り扱いについて
皆さまが送付された個人情報はアットホーム(株)のサーバを経由し、お問い合わせ先の不動産会社にメールまたはFAXにて転送されるためアットホーム(株)にも保管されます。アットホーム(株)で保管された個人情報の取り扱いについては、【こちら】をご覧ください。
また、本画面でご記入いただいた個人情報は、お問い合わせ先の不動産会社でも保管します。 お問い合わせ先の不動産会社が保管する個人情報の取り扱いについては、不動産会社に直接お問い合わせください。
千葉県知事免許(2)第17494号 |
---|
- 交通:
- JR常磐線/柏駅 【バス】15分 大津ヶ丘二丁 停歩6分
- 千葉県柏市大島田423-1
- TEL:
- 04-7192-7001
- FAX:
- 04-7192-7021
- 所属団体:
- (公社)全日本不動産協会会員(公社)首都圏不動産公正取引協議会加盟
取引態様:媒介  - 00266592
|
- スマートフォンで
この不動産会社を見る

|
- 提携サイト等より掲載されている物件情報につきましては、不動産会社詳細情報にリンクされていないものがあります。
- 物件に関するお問合せは、物件詳細ページの「情報提供会社」に表示されている不動産会社へ直接お願いいたします。
- 間取図は、現況を優先させていただきます。
- 映像は物件の一部を撮影したものです。物件の契約にあたっての最終判断はご自身の判断に基づいて行ってください。
- 仲介手数料について

アットホームは物件情報の適正化に努めております。
内容に誤りがある場合にはこちらへご連絡ください。