福井県坂井市丸岡町坪江(丸岡駅)の一戸建て:物件詳細
交通 所在地 |
駅徒歩 |
価格 |
間取り 建物面積 |
土地面積 私道負担面積 |
物件種目 築年月 |
|
ハピラインふくい/丸岡
福井県坂井市丸岡町坪江
|
6000m
|
1,050万円
|
12SLDK
332.68m²
|
1,017.52m²
なし
|
中古一戸建て
1953年4月(築72年9ヶ月)
|
|
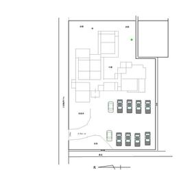
駐車場3台分以上、南向き、バス1坪以上、庭10坪以上、前面棟無、隣接建物距離2m以上
|
|
間取図
|
概略配置図
|
<
その他の画像
>
|
| 交通 | ハピラインふくい 丸岡駅 徒歩6000m |
|---|
| その他の交通 | JR北陸新幹線 芦原温泉駅 徒歩8000m えちぜん鉄道三国線 下兵庫こうふく駅 徒歩9000m |
| 所在地 |
福井県坂井市丸岡町坪江
|
| 物件種目 |
中古一戸建て |
| 価格 |
1,050万円 |
借地期間・地代(月額) |
- |
| 権利金 |
- |
敷金または保証金 |
- / - |
| 維持費等 |
- |
その他一時金 |
- |
| 間取り |
12SLDK(和 12.5・8・8・8・6・6・6・6 洋 10・9・7・4.5 LDK 30 S 3) |
建物面積 |
332.68m² |
| 土地権利 |
所有権 |
建物構造 |
木造 |
| 土地面積 |
1,017.52m²(公簿) |
私道負担面積 |
なし |
| 築年月 |
1953年4月(築72年9ヶ月)
|
都市計画 |
非線引区域 |
| 建物名 |
丸岡町坪江の古民家 |
建築確認番号 |
- |
| 用途地域 |
無指定 |
駐車場 |
有 無料 |
| 建ぺい率 |
60% |
容積率 |
200% |
| 階建 |
2階建 |
接道状況 |
北 4.4m 公道 接面43.7m
|
| 地目 |
宅地 |
地勢 |
平坦 |
| 国土法届出 |
- |
セットバック |
- |
| アピールポイント |
広々とした延床面積332.68㎡の居室空間、更にウッドチェアやデッキが置けちゃう10坪以上の庭有の住居だから、朝一番の深呼吸も大きな伸びと共にリフレッシュ。またごろんと寝転べりたくなるのどかな縁側付で、その上デトックス効果が期待できるサウナ付なので、毎日こまめにストレスを吹き飛ばせます。ちなみにシステムキッチン付です。家族みんなのワガママにも応える12SLDK。実際の空間をご自身で体感ください。 |
| リフォーム履歴 |
- |
| リノベーション履歴 |
- |
| 瑕疵保証 |
- |
| 瑕疵保険 |
- |
| 評価・証明書 |
- |
| 備考 |
主要採光面:南向き
空き家バンク登録物件
●坪江は南は竹田川の豊かな水資源と肥沃な土壌、北はあわら市東山(海抜約200mの低山
)の裾野の緑地といったいとなった潤いのある景観の地です。
●当古民家は先々大が本宅を新築、昭和、平成に離れ及びLDK水回りを増改築したものです。
●アプローチ進入路より広い空地があり、車10台は駐車可能です。
●IT系企業の住まい兼オフィスに、社員保養施設に
●趣味悠々、田舎暮らしを希望の方に
|
| エネルギー消費性能 |
- |
| 断熱性能 |
- |
| 目安光熱費 |
- |
| バス・トイレ |
温水洗浄便座、トイレ2ヶ所、浴室に窓あり |
| キッチン |
システムキッチン、3口以上コンロ |
| 設備・サービス |
エアコン2台以上、下水道、プロパンガス、電気、側溝、庭、縁側、サンルーム、照明器具、ケーブルTV |
| その他 |
- |
| 現況 |
空家 |
引渡可能時期 |
相談 |
| 物件番号 |
6985718699 |
仲介手数料 |
売買代金の3%+6万円 |
| 情報公開日 |
2025年10月8日 |
次回更新予定日 |
2025年12月13日 |
| ケータイ用バーコード |
- スマートフォンでこの物件を見る
- スマートフォンからもこの物件をご覧になれます。
|
※「-」と表示されている項目については、情報提供会社にご確認ください。
| 周辺施設 |
ファッションセンターしまむら丸岡店 |
| 距離 |
2471m |
| 周辺施設 |
クスリのアオキ丸岡北店 |
| 距離 |
2577m |
ここから簡単にお問い合わせをすることができます。
(SSLでの暗号化での送信を希望されるお客さまは
こちら
よりお問い合わせください)
お問い合わせを行う前に
「個人情報の取り扱いについて」を必ずお読みください。
「個人情報の取り扱いについて」に同意いただいた場合は「上記にご同意の上 確認画面へ進む」のボタンをクリックしてください。
個人情報の取り扱いについて
皆さまが送付された個人情報はアットホーム(株)のサーバを経由し、お問い合わせ先の不動産会社にメールまたはFAXにて転送されるためアットホーム(株)にも保管されます。アットホーム(株)で保管された個人情報の取り扱いについては、【こちら】をご覧ください。
また、本画面でご記入いただいた個人情報は、お問い合わせ先の不動産会社でも保管します。 お問い合わせ先の不動産会社が保管する個人情報の取り扱いについては、不動産会社に直接お問い合わせください。
福井県知事免許(3)第1542号 |
|---|
- 交通:
- えちぜん鉄道勝山線/松岡駅 徒歩10分
- 福井県吉田郡永平寺町松岡春日2丁目130
- TEL:
- 0776-61-3254
- FAX:
- 0776-61-3274
- 所属団体:
- (公社)全日本不動産協会会員北陸不動産公正取引協議会加盟
取引態様:専任媒介  - 40404530
|
- スマートフォンで
この不動産会社を見る

|
- 提携サイト等より掲載されている物件情報につきましては、不動産会社詳細情報にリンクされていないものがあります。
- 物件に関するお問合せは、物件詳細ページの「情報提供会社」に表示されている不動産会社へ直接お願いいたします。
- 間取図は、現況を優先させていただきます。
- 映像は物件の一部を撮影したものです。物件の契約にあたっての最終判断はご自身の判断に基づいて行ってください。
- 仲介手数料について

アットホームは物件情報の適正化に努めております。
内容に誤りがある場合にはこちらへご連絡ください。