福岡県北九州市八幡西区下上津役元町(三ヶ森駅)の一戸建て:物件詳細
交通 所在地 |
駅徒歩 |
価格 |
間取り 建物面積 |
土地面積 私道負担面積 |
物件種目 築年月 |
|
筑豊電気鉄道/三ヶ森 [バス利用可] バス 西鉄バス「下上津役二丁目」 停歩5分
福岡県北九州市八幡西区下上津役元町
|
12分
|
3,780万円
|
3LDK
102.90m²
|
169.95m²
-
|
未入居一戸建て
2024年2月(築1年9ヶ月)
|
|
駐車場3台分以上、高気密高断熱住宅、2×4工法、24時間換気システム、オール電化、設計住宅性能評価書あり、建設住宅性能評価書あり、分譲地内
|
|
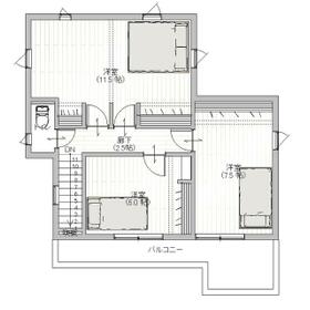
間取図
1階間取り図です!
|
間取図
2階間取り図です!
|
<
その他の画像
>
|
| 交通 | 筑豊電気鉄道 三ヶ森駅 徒歩12分 [バス利用可] バス 西鉄バス「下上津役二丁目」 停歩5分 |
| 所在地 |
福岡県北九州市八幡西区下上津役元町
|
| 物件種目 |
未入居一戸建て |
| 価格 |
3,780万円 |
借地期間・地代(月額) |
- |
| 権利金 |
- |
敷金または保証金 |
- / - |
| 維持費等 |
- |
その他一時金 |
- |
| 間取り |
3LDK(洋 11.5・7.5・6 LDK 19.4) |
建物面積 |
102.90m² |
| 土地権利 |
所有権 |
建物構造 |
木造 |
| 土地面積 |
169.95m²(公簿) |
私道負担面積 |
- |
| 築年月 |
2024年2月(築1年9ヶ月)
|
都市計画 |
市街化区域 |
| 建物名 |
ポコタウン三ヶ森Ⅳ |
建築確認番号 |
第R05確認建築福住セ北00569号 |
| 用途地域 |
1種中高 |
駐車場 |
有 無料 |
| 建ぺい率 |
60% |
容積率 |
200% |
| 階建 |
2階建 |
接道状況 |
-
|
| 地目 |
宅地 |
地勢 |
- |
| 国土法届出 |
- |
セットバック |
- |
| リフォーム履歴 |
- |
| リノベーション履歴 |
- |
| 瑕疵保証 |
- |
| 瑕疵保険 |
- |
| 評価・証明書 |
- |
| 備考 |
施工会社:辰巳開発株式会社
BELS/省エネ基準適合認定
|
| エネルギー消費性能 |
- |
| 断熱性能 |
- |
| 目安光熱費 |
- |
| バス・トイレ |
浴室暖房、浴室乾燥機、追焚機能、シャワー付洗面化粧台、温水洗浄便座、タンクレストイレ、トイレ2ヶ所、浴室に窓あり |
| キッチン |
カウンターキッチン、システムキッチン、食器洗浄乾燥機、浄水器、IHクッキングヒーター |
| 設備・サービス |
全居室収納、EV車充電設備、エアコン2台以上、クローゼット、床下収納、モニター付インターホン、ディンプルキー、ダブルロックドア、電動シャッター、省エネ給湯器、全居室フローリング、上水道、下水道、電気、エアコン、ウッドデッキ、人感センサー付照明、フットライト、ダウンライト、間接照明、照明器具、火災警報器(報知機)、複層ガラス、Low-E ガラス |
| その他 |
- |
| 現況 |
完成済 |
引渡可能時期 |
相談 |
| 物件番号 |
6985797720 |
|
|
| 情報公開日 |
2025年4月28日 |
次回更新予定日 |
2025年11月7日 |
| ケータイ用バーコード |
- スマートフォンでこの物件を見る
- スマートフォンからもこの物件をご覧になれます。
|
※「-」と表示されている項目については、情報提供会社にご確認ください。
| 周辺施設 |
北九州市立塔野小学校 |
| 距離 |
146m |
写真を見る |
| 周辺施設 |
北九州市立沖田中学校 |
| 距離 |
772m |
写真を見る |
| 周辺施設 |
下上津役幼稚園 |
| 距離 |
478m |
写真を見る |
| 周辺施設 |
ハローデイ下上津役店 |
| 距離 |
483m |
写真を見る |
| 周辺施設 |
サンリブ三ヶ森店 |
| 距離 |
574m |
写真を見る |
ここから簡単にお問い合わせをすることができます。
(SSLでの暗号化での送信を希望されるお客さまは
こちら
よりお問い合わせください)
お問い合わせを行う前に
「個人情報の取り扱いについて」を必ずお読みください。
「個人情報の取り扱いについて」に同意いただいた場合は「上記にご同意の上 確認画面へ進む」のボタンをクリックしてください。
個人情報の取り扱いについて
皆さまが送付された個人情報はアットホーム(株)のサーバを経由し、お問い合わせ先の不動産会社にメールまたはFAXにて転送されるためアットホーム(株)にも保管されます。アットホーム(株)で保管された個人情報の取り扱いについては、【こちら】をご覧ください。
また、本画面でご記入いただいた個人情報は、お問い合わせ先の不動産会社でも保管します。 お問い合わせ先の不動産会社が保管する個人情報の取り扱いについては、不動産会社に直接お問い合わせください。
福岡県知事免許(12)第7398号 |
|---|
- 交通:
- JR鹿児島本線/折尾駅 徒歩25分
- 福岡県北九州市八幡西区幸神4丁目7-6
- TEL:
- 0120-700-270
- FAX:
- 093-644-3123
- 所属団体:
- (公社)全日本不動産協会会員(一社)全国住宅産業協会会員(一社)九州不動産公正取引協議会加盟
取引態様:売主  - 80503119
|
- スマートフォンで
この不動産会社を見る

|
- 提携サイト等より掲載されている物件情報につきましては、不動産会社詳細情報にリンクされていないものがあります。
- 物件に関するお問合せは、物件詳細ページの「情報提供会社」に表示されている不動産会社へ直接お願いいたします。
- 間取図は、現況を優先させていただきます。
- 映像は物件の一部を撮影したものです。物件の契約にあたっての最終判断はご自身の判断に基づいて行ってください。
- 仲介手数料について

アットホームは物件情報の適正化に努めております。
内容に誤りがある場合にはこちらへご連絡ください。