神奈川県川崎市麻生区片平5丁目(五月台駅)の一戸建て:物件詳細
交通 所在地 |
駅徒歩 |
価格 |
間取り 建物面積 |
土地面積 私道負担面積 |
物件種目 築年月 |
|
小田急多摩線/五月台
神奈川県川崎市麻生区片平5丁目
|
10分
|
5,380万円
|
3LDK
105.16m²
|
162.73m²
-
|
新築一戸建て
2025年11月
|
|
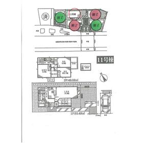
間取図
全13棟現場の11号棟、49坪、105㎡の3LDK、LDK21帖以上
|
11号棟【5380万円】、49坪、105㎡の3LDK、LDK21帖以上
|
<
その他の画像
>
|
| 交通 | 小田急多摩線 五月台駅 徒歩10分 |
| 所在地 |
神奈川県川崎市麻生区片平5丁目
|
| 物件種目 |
新築一戸建て |
| 価格 |
5,380万円 |
借地期間・地代(月額) |
- |
| 権利金 |
- |
敷金または保証金 |
- / - |
| 維持費等 |
- |
その他一時金 |
- |
| 間取り |
3LDK(洋 8・6・5.7 LDK 21.2) |
建物面積 |
105.16m² |
| 土地権利 |
所有権 |
建物構造 |
木造 |
| 土地面積 |
162.73m²(実測) |
私道負担面積 |
- |
| 築年月 |
2025年11月
|
都市計画 |
市街化区域 |
| 建物名 |
|
建築確認番号 |
- |
| 用途地域 |
1種低層 |
駐車場 |
有 無料 |
| 建ぺい率 |
40% |
容積率 |
80% |
| 階建 |
2階建 |
接道状況 |
南西 16.0m 公道
|
| 地目 |
- |
地勢 |
- |
| 国土法届出 |
- |
セットバック |
- |
| アピールポイント |
★COLORでは、キャンペーン中の為、この物件についても『仲介手数料無料』(本来、約184万円の仲介手数料が、COLORでは0円!)で御紹介しています!【キャンペーンの詳細については当社ホームページを御覧下さい!】 |
| リフォーム履歴 |
- |
| リノベーション履歴 |
- |
| 瑕疵保証 |
- |
| 瑕疵保険 |
- |
| 評価・証明書 |
- |
| 備考 |
全12棟現場の11号棟
|
| エネルギー消費性能 |
- |
| 断熱性能 |
- |
| 目安光熱費 |
- |
| バス・トイレ |
- |
| キッチン |
カウンターキッチン |
| 設備・サービス |
都市ガス |
| その他 |
- |
| 現況 |
完成済 |
引渡可能時期 |
即時 |
| 物件番号 |
6985964846 |
|
|
| 情報公開日 |
2025年10月18日 |
次回更新予定日 |
2025年12月18日 |
| ケータイ用バーコード |
- スマートフォンでこの物件を見る
- スマートフォンからもこの物件をご覧になれます。
|
※「-」と表示されている項目については、情報提供会社にご確認ください。
| 周辺施設 |
歩いて7分の小学校【片平小学校】 |
| 距離 |
550m |
写真を見る |
| 周辺施設 |
歩いて7分の中学校【白鳥中学校】 |
| 距離 |
550m |
写真を見る |
| 周辺施設 |
歩いて1分のコンビニ【ローソン 片平6丁目店】 |
| 距離 |
110m |
写真を見る |
| 周辺施設 |
歩いて5分のコンビニ【セブンイレブン 片平7丁目店】 |
| 距離 |
400m |
写真を見る |
| 周辺施設 |
歩いて9分のスーパー【スーパーフジ 五月台駅前店】 |
| 距離 |
720m |
写真を見る |
| 周辺施設 |
歩いて10分のドラッグストア【ツルハドラッグ 五月台駅前】 |
| 距離 |
800m |
写真を見る |
| 周辺施設 |
歩いて8分の大きな公園【片平公園】 |
| 距離 |
650m |
写真を見る |
ここから簡単にお問い合わせをすることができます。
(SSLでの暗号化での送信を希望されるお客さまは
こちら
よりお問い合わせください)
お問い合わせを行う前に
「個人情報の取り扱いについて」を必ずお読みください。
「個人情報の取り扱いについて」に同意いただいた場合は「上記にご同意の上 確認画面へ進む」のボタンをクリックしてください。
個人情報の取り扱いについて
皆さまが送付された個人情報はアットホーム(株)のサーバを経由し、お問い合わせ先の不動産会社にメールまたはFAXにて転送されるためアットホーム(株)にも保管されます。アットホーム(株)で保管された個人情報の取り扱いについては、【こちら】をご覧ください。
また、本画面でご記入いただいた個人情報は、お問い合わせ先の不動産会社でも保管します。 お問い合わせ先の不動産会社が保管する個人情報の取り扱いについては、不動産会社に直接お問い合わせください。
東京都知事免許(4)第86169号 |
|---|
- 交通:
- 小田急小田原線/鶴川駅 徒歩22分
- 東京都町田市広袴町49-3
- TEL:
- 042-814-7559
- FAX:
- 042-814-8974
- 所属団体:
- (公社)東京都宅地建物取引業協会会員(公社)首都圏不動産公正取引協議会加盟
取引態様:媒介  - 00014847
|
- スマートフォンで
この不動産会社を見る

|
- 提携サイト等より掲載されている物件情報につきましては、不動産会社詳細情報にリンクされていないものがあります。
- 物件に関するお問合せは、物件詳細ページの「情報提供会社」に表示されている不動産会社へ直接お願いいたします。
- 間取図は、現況を優先させていただきます。
- 映像は物件の一部を撮影したものです。物件の契約にあたっての最終判断はご自身の判断に基づいて行ってください。
- 仲介手数料について

アットホームは物件情報の適正化に努めております。
内容に誤りがある場合にはこちらへご連絡ください。