秋田県秋田市旭川南町(泉外旭川駅)の一戸建て:物件詳細
交通 所在地 |
駅徒歩 |
価格 |
間取り 建物面積 |
土地面積 私道負担面積 |
物件種目 築年月 |
|
JR奥羽本線/泉外旭川 [バス利用可] バス 旭川小学校前 停歩4分
秋田県秋田市旭川南町
|
30分
|
1,999万円
|
4SLDK
142.90m²
|
532.39m²
有 771.00m²(共有持分2/54)
|
中古一戸建て
1999年7月(築26年9ヶ月)
|
|
駐車場2台分、駐車場3台分以上、南向き、バス1坪以上、24時間換気システム
|
|
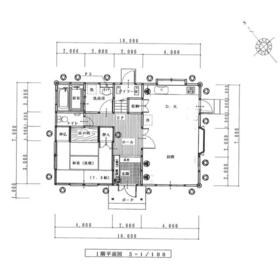
間取図
1階間取り
|
間取図
2階間取り
|
<
その他の画像
>
|
| 交通 | JR奥羽本線 泉外旭川駅 徒歩30分 [バス利用可] バス 旭川小学校前 停歩4分 |
| 所在地 |
秋田県秋田市旭川南町
|
| 物件種目 |
中古一戸建て |
| 価格 |
1,999万円 |
借地期間・地代(月額) |
- |
| 権利金 |
- |
敷金または保証金 |
- / - |
| 維持費等 |
- |
その他一時金 |
- |
| 間取り |
4SLDK(和 7.3 洋 9.7・9.7・7.3 LDK 17 S 5.4) |
建物面積 |
142.90m² |
| 土地権利 |
所有権 |
建物構造 |
木造 |
| 土地面積 |
532.39m²(公簿) |
私道負担面積 |
有 771.00m²(共有持分2/54) |
| 築年月 |
1999年7月(築26年9ヶ月)
|
都市計画 |
市街化区域 |
| 建物名 |
|
建築確認番号 |
- |
| 用途地域 |
1種低層 |
駐車場 |
有 |
| 建ぺい率 |
50% |
容積率 |
80% |
| 階建 |
2階建 |
接道状況 |
東 4.0m 私道
・ 西 4.0m 私道 位置指定有
|
| 地目 |
宅地 |
地勢 |
- |
| 国土法届出 |
- |
セットバック |
- |
| アピールポイント |
旭川小学校まで徒歩圏内の立地で、毎日の通学も安心な中古住宅です。宅地面積はゆとりある532.39㎡、広々とした敷地にはアスファルト舗装済みの駐車スペースが確保されており、複数台の駐車や来客時にも対応可能です。建物は外壁・屋根の塗装を実施済みで、美観と耐久性を兼ね備えています。お子様の成長に合わせた庭づくりなど、多様なライフスタイルを楽しめる点も魅力です。快適な住環境と安心のメンテナンス状況を兼ね備えたおすすめの一邸です。2023年7月の秋田市豪雨災害では被害はありませんでした。 |
| リフォーム履歴 |
■水回り:2025年4月 トイレ、洗面所 ●トイレ:一式交換 ●洗面台交換 ■内装:2025年4月 全室クロス張替え ■外装:2025年4月 外壁、屋根 外壁塗装、屋根塗装 ■その他:2025年4月 ●照明器具交換 リビング・洋室 ●2階廊下 ホスクリーン(物干し)設置 ●エアコン交換工事 リビング ●網戸新設箇所あり ●外構 アスファルト舗装工事済み ※実施年月は最も古い履歴を表示 |
| リノベーション履歴 |
- |
| 瑕疵保証 |
- |
| 瑕疵保険 |
- |
| 評価・証明書 |
■建物状況調査 実施済み(報告書あり) 建物検査実施日:2025年06月04日 検査料:買主負担なし |
| 備考 |
主要採光面:南向き
施工会社:㈱トウエイハウス(廃業)
|
| エネルギー消費性能 |
- |
| 断熱性能 |
- |
| 目安光熱費 |
- |
| バス・トイレ |
浴室暖房、浴室乾燥機、追焚機能、トイレ2ヶ所、浴室に窓あり |
| キッチン |
3口以上コンロ、2口コンロ |
| 設備・サービス |
エアコン2台以上、モニター付インターホン、省エネ給湯器、室内物干し、上水道、下水道、都市ガス、電気、エアコン、照明器具、インターネット対応、複層ガラス |
| その他 |
- |
| 現況 |
空家 |
引渡可能時期 |
相談 |
| 物件番号 |
6986007084 |
|
|
| 情報公開日 |
2025年8月25日 |
次回更新予定日 |
2026年3月24日 |
| ケータイ用バーコード |
- スマートフォンでこの物件を見る
- スマートフォンからもこの物件をご覧になれます。
|
※「-」と表示されている項目については、情報提供会社にご確認ください。
ここから簡単にお問い合わせをすることができます。
(SSLでの暗号化での送信を希望されるお客さまは
こちら
よりお問い合わせください)
お問い合わせを行う前に
「個人情報の取り扱いについて」を必ずお読みください。
「個人情報の取り扱いについて」に同意いただいた場合は「上記にご同意の上 確認画面へ進む」のボタンをクリックしてください。
個人情報の取り扱いについて
皆さまが送付された個人情報はアットホーム(株)のサーバを経由し、お問い合わせ先の不動産会社にメールまたはFAXにて転送されるためアットホーム(株)にも保管されます。アットホーム(株)で保管された個人情報の取り扱いについては、【こちら】をご覧ください。
また、本画面でご記入いただいた個人情報は、お問い合わせ先の不動産会社でも保管します。 お問い合わせ先の不動産会社が保管する個人情報の取り扱いについては、不動産会社に直接お問い合わせください。
秋田県知事免許(14)第529号 |
|---|
- 交通:
- JR羽越本線/秋田駅 徒歩5分
- 秋田県秋田市千秋城下町5-1 twotrees城下町1F
- TEL:
- 018-853-0885
- FAX:
- 018-853-0886
- 所属団体:
- (公社)秋田県宅地建物取引業協会会員東北地区不動産公正取引協議会加盟
取引態様:売主  - 20002270
|
- スマートフォンで
この不動産会社を見る

|
- 提携サイト等より掲載されている物件情報につきましては、不動産会社詳細情報にリンクされていないものがあります。
- 物件に関するお問合せは、物件詳細ページの「情報提供会社」に表示されている不動産会社へ直接お願いいたします。
- 間取図は、現況を優先させていただきます。
- 映像は物件の一部を撮影したものです。物件の契約にあたっての最終判断はご自身の判断に基づいて行ってください。
- 仲介手数料について

アットホームは物件情報の適正化に努めております。
内容に誤りがある場合にはこちらへご連絡ください。