埼玉県幸手市東5丁目(幸手駅)の一戸建て:物件詳細
交通 所在地 |
駅徒歩 |
価格 |
間取り 建物面積 |
土地面積 私道負担面積 |
物件種目 築年月 |
|
東武日光線/幸手
埼玉県幸手市東5丁目
|
26分
|
890万円
|
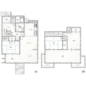
4LDK
114.68m²
|
180.00m²
なし
|
中古一戸建て
1973年10月(築52年5ヶ月)
|
|
南向き
|
|
間取図
|
外観
|
<
その他の画像
>
|
| 交通 | 東武日光線 幸手駅 徒歩26分 |
| 所在地 |
埼玉県幸手市東5丁目
|
| 物件種目 |
中古一戸建て |
| 価格 |
890万円 |
借地期間・地代(月額) |
- |
| 権利金 |
- |
敷金または保証金 |
- / - |
| 維持費等 |
- |
その他一時金 |
- |
| 間取り |
4LDK(和 6・6 洋 12・6 LDK 19.7) |
建物面積 |
114.68m² |
| 土地権利 |
所有権 |
建物構造 |
木造 |
| 土地面積 |
180.00m²(公簿) |
私道負担面積 |
なし |
| 築年月 |
1973年10月(築52年5ヶ月)
|
都市計画 |
市街化区域 |
| 建物名 |
|
建築確認番号 |
第11 326号 |
| 用途地域 |
1種住居 |
駐車場 |
有 無料 |
| 建ぺい率 |
60% |
容積率 |
200% |
| 階建 |
2階建 |
接道状況 |
北 4.2m 公道 接面11.5m
|
| 地目 |
宅地 |
地勢 |
平坦 |
| 国土法届出 |
- |
セットバック |
- |
| アピールポイント |
閑静な住宅街で徒歩圏内にスーパーやドラッグストアが多数あります。
幸手市・久喜市・杉戸町・宮代町でのお住まい探しは、三陽不動産にお任せ下さい。土地・建物・マンション仲介・売買・注文住宅・リフォーム・賃貸管理・賃貸仲介の他に、土地建物買取・開発・分譲もやっております。 |
| リフォーム履歴 |
■内装:2019年1月 1F廊下、リビング、キッチン、フロア 2F子供部屋、洋間12帖クロス張替え 1F天井塗装 畳表替え トイレ床張り替え ※実施年月は最も古い履歴を表示 |
| リノベーション履歴 |
- |
| 瑕疵保証 |
- |
| 瑕疵保険 |
- |
| 評価・証明書 |
- |
| 備考 |
主要採光面:南向き
|
| エネルギー消費性能 |
- |
| 断熱性能 |
- |
| 目安光熱費 |
- |
| バス・トイレ |
シャワー付洗面化粧台、浴室に窓あり |
| キッチン |
システムキッチン、3口以上コンロ、グリル |
| 設備・サービス |
シューズインクローゼット、クローゼット、上水道、下水道、都市ガス、電気、エアコン、照明器具 |
| その他 |
- |
| 現況 |
空家 |
引渡可能時期 |
相談 |
| 物件番号 |
6986103979 |
|
|
| 情報公開日 |
2025年4月27日 |
次回更新予定日 |
2026年2月16日 |
| ケータイ用バーコード |
- スマートフォンでこの物件を見る
- スマートフォンからもこの物件をご覧になれます。
|
※「-」と表示されている項目については、情報提供会社にご確認ください。
| 周辺施設 |
幸手市立さくら小学校 |
| 距離 |
1249m |
写真を見る |
| 周辺施設 |
幸手市立幸手中学校 |
| 距離 |
1303m |
写真を見る |
| 周辺施設 |
フードオアシスOTANI幸手店 |
| 距離 |
389m |
写真を見る |
| 周辺施設 |
ベルク幸手北店 |
| 距離 |
807m |
写真を見る |
| 周辺施設 |
セブンイレブン幸手東3丁目店 |
| 距離 |
586m |
写真を見る |
| 周辺施設 |
幸手郵便局 |
| 距離 |
1192m |
写真を見る |
ここから簡単にお問い合わせをすることができます。
(SSLでの暗号化での送信を希望されるお客さまは
こちら
よりお問い合わせください)
お問い合わせを行う前に
「個人情報の取り扱いについて」を必ずお読みください。
「個人情報の取り扱いについて」に同意いただいた場合は「上記にご同意の上 確認画面へ進む」のボタンをクリックしてください。
個人情報の取り扱いについて
皆さまが送付された個人情報はアットホーム(株)のサーバを経由し、お問い合わせ先の不動産会社にメールまたはFAXにて転送されるためアットホーム(株)にも保管されます。アットホーム(株)で保管された個人情報の取り扱いについては、【こちら】をご覧ください。
また、本画面でご記入いただいた個人情報は、お問い合わせ先の不動産会社でも保管します。 お問い合わせ先の不動産会社が保管する個人情報の取り扱いについては、不動産会社に直接お問い合わせください。
埼玉県知事免許(15)第3315号 |
|---|
- 交通:
- 東武日光線/幸手駅 徒歩10分
- 埼玉県幸手市東2丁目19-26
- TEL:
- 0480-42-4485
- FAX:
- 0480-43-3589
- 所属団体:
- (公社)埼玉県宅地建物取引業協会会員(公社)首都圏不動産公正取引協議会加盟
取引態様:一般媒介  - 00210794
|
- スマートフォンで
この不動産会社を見る

|
- 提携サイト等より掲載されている物件情報につきましては、不動産会社詳細情報にリンクされていないものがあります。
- 物件に関するお問合せは、物件詳細ページの「情報提供会社」に表示されている不動産会社へ直接お願いいたします。
- 間取図は、現況を優先させていただきます。
- 映像は物件の一部を撮影したものです。物件の契約にあたっての最終判断はご自身の判断に基づいて行ってください。
- 仲介手数料について

アットホームは物件情報の適正化に努めております。
内容に誤りがある場合にはこちらへご連絡ください。