宮崎県北諸県郡三股町大字樺山(三股駅)の一戸建て:物件詳細
交通 所在地 |
駅徒歩 |
価格 |
間取り 建物面積 |
土地面積 私道負担面積 |
物件種目 築年月 |
|
JR日豊本線/三股 [バス利用可] バス 谷 停歩1分
宮崎県北諸県郡三股町大字樺山
|
2600m
|
1,300万円
|
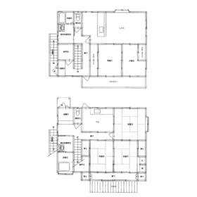
5LDK
167.92m²
|
672.73m²
-
|
中古一戸建て
2002年1月(築24年5ヶ月)
|
|
二世帯向き
|
| 交通 | JR日豊本線 三股駅 徒歩2600m [バス利用可] バス 谷 停歩1分 |
| 所在地 |
宮崎県北諸県郡三股町大字樺山
|
| 物件種目 |
中古一戸建て |
| 価格 |
1,300万円 |
借地期間・地代(月額) |
- |
| 権利金 |
- |
敷金または保証金 |
- / - |
| 維持費等 |
- |
その他一時金 |
- |
| 間取り |
5LDK(和 8・6・6) |
建物面積 |
167.92m² |
| 土地権利 |
所有権 |
建物構造 |
軽量鉄骨造 |
| 土地面積 |
672.73m² |
私道負担面積 |
- |
| 築年月 |
2002年1月(築24年5ヶ月)
|
都市計画 |
- |
| 建物名 |
|
建築確認番号 |
- |
| 用途地域 |
- |
駐車場 |
- |
| 建ぺい率 |
- |
容積率 |
- |
| 階建 |
2階建 |
接道状況 |
-
|
| 地目 |
- |
地勢 |
- |
| 国土法届出 |
- |
セットバック |
- |
| アピールポイント |
《当社自社物件につき、エンド向け手数料無料です!!》
お客様からのメールでのお問い合わせについて弊社からの対応は電話を前提とさせていただきます。あらかじめご了承いただきますようお願いいたします。 |
| リフォーム履歴 |
- |
| リノベーション履歴 |
- |
| 瑕疵保証 |
- |
| 瑕疵保険 |
- |
| 評価・証明書 |
- |
| 備考 |
広々敷地! 200坪!!
【2世帯住宅向き】
●1階部分:3DK ●2階部分:2LDK
洗面・トイレ・浴室各階にあります!!
●令和7年度評価証明額
土地:約265万円 家屋:313万円
|
| エネルギー消費性能 |
- |
| 断熱性能 |
- |
| 目安光熱費 |
- |
| バス・トイレ |
- |
| キッチン |
- |
| 設備・サービス |
- |
| その他 |
- |
| 現況 |
空家 |
引渡可能時期 |
即時 |
| 物件番号 |
6986126435 |
|
|
| 情報公開日 |
2026年2月13日 |
次回更新予定日 |
2026年5月14日 |
| ケータイ用バーコード |
- スマートフォンでこの物件を見る
- スマートフォンからもこの物件をご覧になれます。
|
※「-」と表示されている項目については、情報提供会社にご確認ください。
| 周辺施設 |
ミートショップながやま三股駅前店 |
| 距離 |
2184m |
| 周辺施設 |
ヤマザキショップ東村店 |
| 距離 |
1252m |
ここから簡単にお問い合わせをすることができます。
(SSLでの暗号化での送信を希望されるお客さまは
こちら
よりお問い合わせください)
お問い合わせを行う前に
「個人情報の取り扱いについて」を必ずお読みください。
「個人情報の取り扱いについて」に同意いただいた場合は「上記にご同意の上 確認画面へ進む」のボタンをクリックしてください。
個人情報の取り扱いについて
皆さまが送付された個人情報はアットホーム(株)のサーバを経由し、お問い合わせ先の不動産会社にメールまたはFAXにて転送されるためアットホーム(株)にも保管されます。アットホーム(株)で保管された個人情報の取り扱いについては、【こちら】をご覧ください。
また、本画面でご記入いただいた個人情報は、お問い合わせ先の不動産会社でも保管します。 お問い合わせ先の不動産会社が保管する個人情報の取り扱いについては、不動産会社に直接お問い合わせください。
宮崎県知事免許(11)第2940号 |
|---|
- 交通:
- JR日豊本線/宮崎駅 徒歩25分 【バス】 中津瀬町 停歩2分
- 宮崎県宮崎市中津瀬町25番地
- TEL:
- 0985-67-6390
- FAX:
- 0985-69-0466
- 所属団体:
- (一社)宮崎県宅地建物取引業協会会員(一社)九州不動産公正取引協議会加盟
取引態様:売主  - 80501560
|
- スマートフォンで
この不動産会社を見る

|
- 提携サイト等より掲載されている物件情報につきましては、不動産会社詳細情報にリンクされていないものがあります。
- 物件に関するお問合せは、物件詳細ページの「情報提供会社」に表示されている不動産会社へ直接お願いいたします。
- 間取図は、現況を優先させていただきます。
- 映像は物件の一部を撮影したものです。物件の契約にあたっての最終判断はご自身の判断に基づいて行ってください。
- 仲介手数料について

アットホームは物件情報の適正化に努めております。
内容に誤りがある場合にはこちらへご連絡ください。